Charmerende sommerhus med stor terrasse på Rømø

Sommerhus - 8 personer - Ivigtut - Kongsmark - 6792 - Rømø

8 personer
Emne nr.: 121-29-1946
Skønt sommerhus i Kongsmark med stor terrasse, naturgrund og plads til hunde.
  • Soverum 4
  • Badeværelser 1
  • Boligareal 99 m²
  • Grundareal 2.400 m²
  • Husdyr 2
  • Tilbyder miniferie Ja
  • Afstand vand 700 m
  • Afstand indkøb 4.800 m
  • Internet Ja
  • Brændeovn Ja
  • Vaskemaskine Ja
  • Ikkeryger Ja
  • Energivenligt Ja

Beskrivelse

På en stor og rolig grund finder du dette hus med den skønneste store terrasse. Her er plads til den store familie eller 2 mindre familier med hunde.

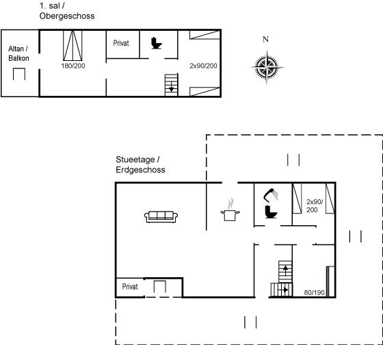
Indretning
Sommerhuset egner sig til 8 personer samt 1 barn op til 3 år. Ferieboligen er på 99 m², er i 2 plan, og er bygget i 1969. I 2004 gennemgik ferieboligen en delvis renovering. Det er tilladt at medbringe 2 husdyr. Ferieboligen er udstyret med energibesparende luft til luft varmepumpe. Ferieboligen har vaskemaskine. Frysekapacitet på 93 liter. Der er desuden brændeovn. Til de små er der 1 stk. barnestol.

Udenfor
Ferieboligen er beliggende på en 2400 m² stor naturgrund. Der er 3300 m til havet. Der er 700 m til Vadehavet. Nærmeste forretning er beliggende i en afstand af 4800 m. Til ferieboligen hører åbent terrasseareal. Grill til rådighed. Parkering ved ferieboligen.

Soveforhold
Der er i alt 4 soveværelser. Sovepladserne fordeler sig på: 2 sovepladser i dobbeltseng. 4 sovepladser i enkeltsenge. 2 sovepladser i køjeseng. Derudover er der 1 stk. barneseng.

Køkken
Køkkenet er udstyret med 1 køleskab. I skuret er der et ekstra køleskab med fryser. Der er 4 keramiske kogeplader, varmluftovn.

Toilet og bad
Der er 1 badeværelse med bruseniche og 2 toiletter, heraf 1 gæstetoilet.

Multimedier
1 Smart-TV.1 Chromecast. Radio. Der er 1-3 danske kanaler. 1-3 tyske kanaler. Der er trådløst internet til rådighed.

Værd at vide
Ingen udlejning til ungdomsgrupper, hvor alle er 15-25 år. Rygning ikke tilladt. Ved overtrædelse af forbuddet opkræves et gebyr på minimum DKK 3.000,-.

Vores gæsteanmeldelser Eksterne anmeldelser

4,0
Baseret på 1 vurdering
Vurderet d. 09-11-2024
5
(0)
4
(1)
3
(0)
2
(0)
1
(0)
Kommentarer
Ingen vurderinger har kommentarer.
4,4
Generelt:
4,1
Service på stedet:
4,5
Værdi for pengene:
4,3
Beliggenhed:
4,7
5 eksterne anmeldelser
5,0
Generelt:
5
Service på stedet:
5
Værdi for pengene:
5
Beliggenhed:
5
Generel:
Ein wirklich schönes, gemütliches Haus für größere Personengruppen. Das liegt in einem waldigen Ferienhausgebiet, sehr ruhig. Das Meer ist in wenigen Autominuten erreicht, dort gibt es einen schönen Strand (auch für Hunde), Dünen und Einkaufsmöglichkeiten. Das Haus war sehr sauber, gut ausgestatt und rundum gemütlich. Wir kommen sehr gerne wieder!
5,0
Generelt:
5
Service på stedet:
5
Værdi for pengene:
5
Beliggenhed:
5
Generel:
Wir hatten tolle Tage. Das Haus war super gemütlich.
1,8
Generelt:
2
Service på stedet:
1
Værdi for pengene:
1
Beliggenhed:
3
Generel:
Ein schön eingerichtetes Haus, sehr sauber und toll gelegen. Aber eine Buchung sollte man sich sehr gut überlegen. Wir verbrachten Mitte November ein Wochenende in Ivigtut 2, anfangs nahmen wir einen beißenden Geruch war, der sich leider nicht wegheizen ließ. Das Haus ist extrem feucht, selbst mehrere Säcke Holz und die kontinuierliche Wärmepumpenbeheizung verbesserten die Situation nicht. Wir mieten seit über 25 Jahren Ferienhäuser, auch im Winter, und manchmal nimmt man einen leichten Muffgeruch war. Doch hier ist es Schimmel pur, wahrscheinlich unterm Dach. Die Kinder wollten gleich wieder nach Hause, als wir ankamen. Koffer, Jacken und Bettwäsche rochen auch nach mehrmaligem Waschen und zwei Wochen Lüften noch so stark, dass man sie nicht nutzen konnte. So stark ist dieser Muff-/Schimmelgeruch. Im OG krochen sogar kleine rote Würmer an der Decke… Wir reisten deshalb eine Nacht eher ab. Bekamen jetzt für zwei Nächte eine gepfefferte Verbrauchsabrechnung und auf Nachfrage wurde das Problem nur schön geredet.
3,0
Generelt:
3
Service på stedet:
3
Værdi for pengene:
3
Beliggenhed:
3
4,8
Generelt:
5
Service på stedet:
4
Værdi for pengene:
5
Beliggenhed:
5
Generel:
Es war ein tolles Haus und die Umgebung war auch Klasse das Haus war sauber und ordentlich wir haben uns wohlgefühlt Das was mir gefehlt hat war das einem nicht erklärt gezeigt wurde wie das mit dem Strom und Wasserzähler ablesen funktioniert wenn man das erste Mal in Dänemark ist weiß man das nicht da das für uns nicht das erste Mal ist und wir das wissen war das jetzt das kein Problem der Email Verkehr mit Sonne und Strand bezüglich Zähler ablesen ist auch verbesserungswürdig

Faciliteter

  • Adgang til ferieboligen

    • Nøgleboks med kode
  • Bemærk

    • Fokushus
    • Ingen håndværkere efter anmodning
    • Ingen ungdomsgrupper efter anmodning
    • Rygning er forbudt
  • Indretning

    • 2 niveauer
    • Antal børn (0-3 år)
      1
    • Antal voksne inkl. 4-11 år
      8
    • Bebygget areal
      99 m²
    • Brændeovn
      1
    • Byggeår
      1969
    • Feriebolig
    • Frysekapacitet (antal liter)
      93
    • Husdyr
      2
    • Højstol
      1
    • Renoveringsår
      2004
    • Varmepumpe
    • Varmepumpe luft til luft
    • Vaskemaskine
      1
  • Køkken

    • Antal keramiske kogeplader
      4
    • Køleskab
      1
    • Varmluftovn
      1
  • Multimedier

    • 0-3 danske kanaler
    • 0-3 tyske kanaler
    • Antal tv'er
      1
    • Chromecast
      1
    • Download
      200
    • Radio
    • Smart-Tv
      1
    • Trådløst internet
    • Upload
      200
  • Soveforhold

    • Antal soveværelser
      4
    • Barneseng
      1
    • Dobbeltseng (antal sovepladser)
      2
    • Enkeltseng (antal sovepladser)
      4
    • Køjeseng (antal sovepladser)
      2
  • Toilet og bad

    • Antal badeværelser
      1
    • Antal gæstebadeværelser
      1
    • Antal toiletter
      2
    • Brusekabine
  • Udenfor

    • Butik
      4,8 km
    • Grill
      1
    • Hav
      3,3 km
    • Natursted
    • Parkeringsplads ved huset
    • Størrelse af grunden
      2400 m²
    • Terrasse
    • Vadehavet
      700 m

Miniferie

Der er mulighed for miniferie i udvalgte perioder af året.

Priser og kalender

Kalender

Ankomst
Næste
   Se om emnet er ledigt på den valgte dato
Ledig
Optaget
   Ankomst mulig
Varighed

Pris

Periode
Ankomst
Afrejse
Varighed
1 uge
Personer
Op til 8 personer

Bemærk

Ankomst er ikke valgt.
Aftale- og lejebetingelser