Feriehus med havudsigt i Kongsmark på Rømø

Sommerhus - 8 personer - Havnebyvej 57 M - Kongsmark - 6792 - Rømø

8 personer
Emne nr.: 037-0183
Nyd verdensklasse udsigt over Vadehavet fra dette charmerende feriehus i Kongsmark på Rømø.
  • Soverum 3
  • Badeværelser 2
  • Boligareal 116 m²
  • Grundareal 135 m²
  • Husdyr 2
  • Tilbyder miniferie Ja
  • Afstand vand 25 m
  • Afstand indkøb 4.300 m
  • Spa Ja
  • Highspeed internet Ja
  • Parabol/kabel TV Ja
  • Brændeovn Ja
  • Udsigt til vand Ja
  • Indhegnet område Ja
  • Vaskemaskine Ja
  • Tørretumbler Ja
  • Opvaskemaskine Ja
  • Ikkeryger Ja

Beskrivelse

Når I holder ferie i dette fremragende ferierækkehus, er udsigten simpelthen i verdensklasse. Ferieboligen ligger nemlig i yderste række lige ud til Vadehavet, der er optaget på UNESCO’s verdensarvsliste som et af blot syv attraktioner i Danmark. Sikke et vue at stå op til hver morgen!

Velkommen indenfor
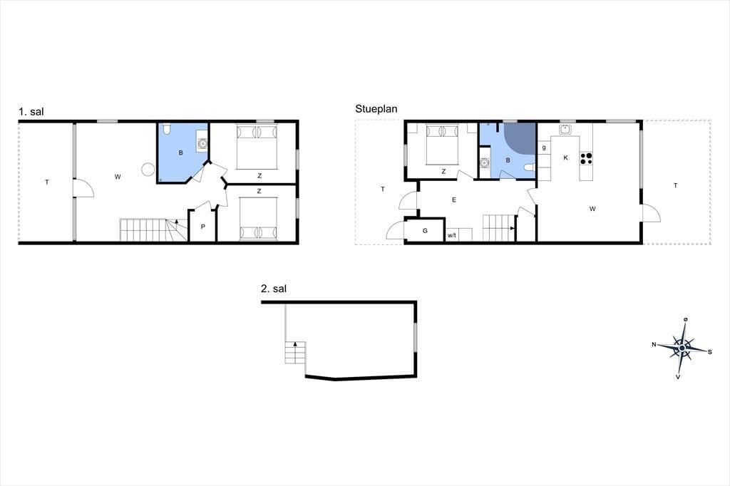
Med så eksklusiv en beliggenhed blev der selvfølgelig gjort meget ud af selve ferieboligen, da den blev opført i 2005. Selvom rækkehusene er en moderne bebyggelse, er stilen holdt i klassisk Rømø-stil med rød murstensfacade og stråtag. Inden døre kan I brede jer på 116 m2 i halvandet plan, der blandt andet byder på tre soveværelser og to komplette badeværelser, hvoraf det ene er udstyret med spabad. På praktisk vis er sovegemakkerne og badeværelserne placeret både i stueplan og på førstesalen, og som supplement er der to madrasser på hemsen, så i alt kan der være otte feriegæster inden døre. Alle kan samles i stueplanets køkken-alrum, hvor I kan nyde den flotte vadehavsudsigt – både når I sidder omkring spisebordet og når I kokkerer i køkkenafdelingen, som byder på amerikanerkøleskab, opvaskemaskine og andre lækre detaljer. Havudsigt og en hyggelig atmosfære er der for øvrigt også i førstesalens stue, hvor I kan slappe af i sofaen nær brændeovnen.

Nyd livet udenfor
Det flotte kystlandskab har I også rig mulighed for at beundre i det fri, hvor I råder over en overdækket altan og to terrasser. I løbet af dagen kan I følge med i, hvordan tidevandet får Vadehavet til at skifte karakter – og hvis I er fugleinteresserede, kan det anbefales at medbringe en kikkert, så I kan følge med i det mangfoldige fugleliv, mens I sidder behageligt i havemøblerne.

Kom tæt på de lokale oplevelser
Når I bor så fremragende, kan I samle store naturoplevelser til jer helt uden at forlade matriklen. Der er nu også god grund til at bevæge sig en smule væk fra sommerhuset, for Rømø byder på mange flere flotte områder og sjove ferieaktiviteter, som er værd at udforske. Får I lyst til at bade, kan det anbefales at tage over på vestkysten, hvor I kan boltre jer på Lakolk Strand og i Vesterhavet, mens Havneby er den rette destination, hvis I vil spille golf, købe delikatesser i fiskebutikken eller tage færgen videre til naboøen Sild. Tættere på sommerhuset ligger den dejlige Kirkeby Plantage, og på den anden side af vejen finder I Rømøs populære slagter, der er en af flere gode indkøbsmuligheder på Rømø.

Vores gæsteanmeldelser Eksterne anmeldelser

2,5
Baseret på 2 vurderinger
Sidste vurdering fra d. 08-08-2021
5
(0)
4
(0)
3
(1)
2
(1)
1
(0)
Kommentarer
1 vurdering har kommentar på dansk.
1 vurdering har kommentar på et andet sprog.
3 voksne 1 barn 0 husdyr 7 overnatninger 2021 juli
Lidt slidt og ikke rengjort i “hjørner” tabte noget under sengen og der var ikke støvsuget længe. Vidunderlig udsigt.

Faciliteter

  • Hus Info

    • 2 x Bruser
    • 2 x WC
    • Antal husdyr
      2
    • Antal voksne
      8
    • Byggeår
      2005
    • Grundareal / Fælles grund
      135 m²
    • Havudsigt
    • Husareal
      116 m²
    • Indendørs spabad
  • Afstande

    • Afstand golfbane
      6 km
    • Afstand indkøb / Helårsbutik
      4,3 km
    • Afstand restaurant
      7 km
    • Afstand strand / Sandstrand
      3 km
    • Afstand vadehav
      25 m
  • Energi / Opvarmning

    • Brændeovn
    • Elvarme
  • Hårde hvidevarer

    • Elkedel
    • Emhætte
    • Fryser
      10
    • Kaffemaskine
    • Kogeplader
    • Køleskab
    • Mikroovn
    • Opvaskemaskine
    • Ovn
    • Tørretumbler
    • Vaskemaskine
  • Multimedier

    • Dansk tv
    • Gratis Wi-Fi - Over 20 Mbit
    • Kabel-TV
    • TV
    • Tysk TV
  • Ekstra

    • Barnestol
    • Golfferie
    • Vandrevenlig
  • Udenfor

    • Fælles parkering
    • Grill
    • Havemøbler
    • Lukket have/grund
    • Parasol
      1
  • Diverse

    • 2 x Gulvvarme
    • 2 x madras
      90x200
    • 3 x Dobbeltseng 180x200
    • Afmærkede vandreruter i nærheden
  • Regler

    • Husdyr: alle slags husdyr tilladt
    • Opladning af elbil ikke tilladt
    • Rygning ikke tilladt
  • Pris inklusiv

    • Slutrengøring inkl.
  • GAMMEL

    • CD
    • DVD
    • Radio

Miniferie

Der er mulighed for miniferie hele året.

Priser og kalender

Kalender

Ankomst
Næste
  • februar 2026
    mationtofr
    51
    62345678
    79101112131415
    816171819202122
    9232425262728
    10
  • marts 2026
    mationtofr
    91
    102345678
    119101112131415
    1216171819202122
    1323242526272829
    143031
   Se om emnet er ledigt på den valgte dato
Ledig
Optaget
   Ankomst mulig
Varighed

Pris

Periode
Ankomst
Afrejse
Varighed
1 uge
Personer
Op til 8 personer

Bemærk

Ankomst er ikke valgt.
Aftale- og lejebetingelser