Skønt sommerhus med terrasse og brændeovn

Sommerhus - 6 personer - Havbovej - Vorupør - 7700 - Thisted

6 personer
Emne nr.: 089-1338
Charmerende sommerhus i Vorupør med terrasse, brændeovn og el-lader nær Vesterhavet.
  • Soverum 3
  • Badeværelser 1
  • Boligareal 106 m²
  • Grundareal 1.001 m²
  • Husdyr Ikke tilladt
  • Tilbyder miniferie Ja
  • Afstand vand 300 m
  • Afstand indkøb 750 m
  • Highspeed internet Ja
  • Parabol/kabel TV Ja
  • Brændeovn Ja
  • Vaskemaskine Ja
  • Tørretumbler Ja
  • Opvaskemaskine Ja
  • Ikkeryger Ja
  • Ladestander til elbil Ja
  • Energivenligt Ja

Beskrivelse

Et skønt fristed med lækre terrasser, brændeovn og el-lader

Velkommen indenfor
Der er noget særligt over sommerhuset på Havbovej 15 i Vorupør. Med sin lyse fremtoning og varme atmosfære rammer det en sjælden balance mellem luksus og hygge. Det begynder allerede, når du træder ind ad døren og mødes af rummelige omgivelser og en indretning, der oser af kvalitet. Her er tre gode soveværelser, hvor komfortable senge indbyder til ro og hvile efter en dag i den friske havluft. I det åbne opholdsrum kan familien samles foran brændeovnen, mens flammerne knitrer og stemningen breder sig som en varm dyne over rummet. Køkkenet er veludstyret og gør det nemt at trylle lækre måltider frem – uanset om det er hurtig morgenmad før en surfetur eller en lang, hyggelig middag med vin og samtaler ved spisebordet. Alt i huset er præget af gennemtænkte løsninger og sans for detaljen, hvilket gør det til en fornøjelse at opholde sig både for store og små.

Nyd livet udenfor
Når solen skinner, og vinden dufter af saltvand og marehalm, er det oplagt at rykke ferielivet udendørs. På Havbovej 15 er der flere gode muligheder for netop det. De indbydende terrasser omkranser huset og giver dig frit valg mellem sol, skygge og læ – alt efter temperament og tidspunkt på dagen. Måske starter du morgenen med en kop kaffe i solen og slutter aftenen med et glas rødvin under stjernerne. Den udendørs bruser gør det ekstra nemt at skylle strandens sand og havets salt af huden, og det giver en næsten sydlandsk følelse at tage sit bad under åben himmel. Huset er også udstyret med en ladestander til elbil, så du nemt og bekvemt kan komme rundt og opleve området – uden at gå på kompromis med miljøet. Og imens børnene leger på grunden, kan du læne dig tilbage og bare nyde, at du er lige dér, hvor roen begynder.

Kom tæt på de lokale oplevelser
Placeringen på Havbovej er ikke tilfældig. Her bor du midt i det attraktive Vorupør – i gåafstand til både strand og byliv. Det tager kun få minutter at gå ned til Vesterhavet, hvor du kan dyppe tæerne i det brusende vand, finde rav i sandet eller nyde solen med vinden i håret. Lige så kort er der til det levende bymiljø i Vorupør, hvor caféer, små butikker og røgeriet byder på både smagfulde oplevelser og hyggelig stemning. Uanset om du vil prøve kræfter med surfbrættet, tage på opdagelse i Nationalpark Thy eller bare slentre en tur på molen og se fiskerbådene blive trukket op på land, så er det hele inden for rækkevidde. Det er netop kombinationen af nærhed til naturen og adgang til det aktive feriebyliv, der gør dette sommerhus til noget helt særligt – og til et af de mest eftertragtede i området.

Husk, at du altid kan låne trækvogne, barnestole og barnesenge hos os i . Du kan hente dem direkte på bureauet og returnere dem til os igen, når din ferie er vel overstået.


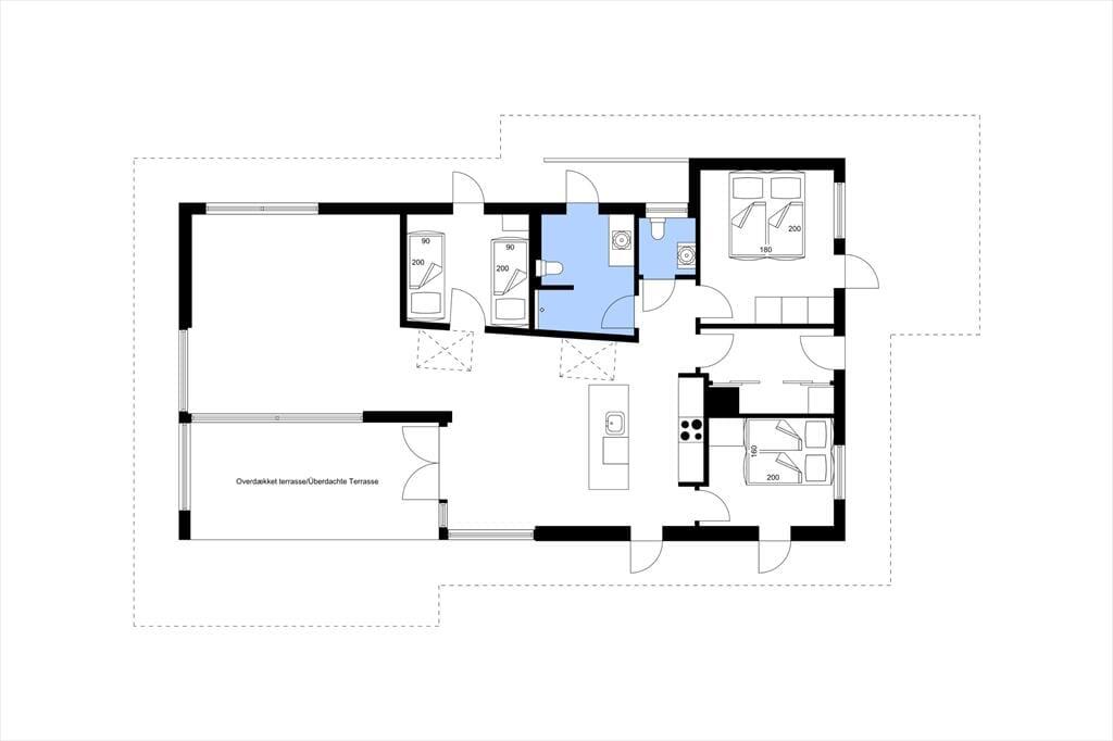
Rumindretning

  • Soveværelse
    • Enkelt seng - 1x90x200
    • Enkelt seng - 1x90x200
  • Soveværelse
    • Dobbeltseng - 1x160x200
  • Soveværelse
    • Dobbeltseng - 1x180x200

Faciliteter

  • Hus Info

    • 2 x WC
    • Antal voksne
      6
    • Bruser
    • Byggeår
      2019
    • Grundareal / Naturgrund
      1001 m²
    • Husareal
      106 m²
  • Afstande

    • Afstand golfbane
      10,9 km
    • Afstand indkøb / Helårsbutik
      750 m
    • Afstand restaurant
      250 m
    • Afstand strand / Sand-/stenstrand
      300 m
  • Energi / Opvarmning

    • Brændeovn
    • Elvarme
    • Varmepumpe
  • Hårde hvidevarer

    • Elkedel
    • Emhætte
    • Kaffemaskine
    • Kogeplader
    • Køleskab med frys
      192/61 L
    • Mikroovn
    • Opvaskemaskine
    • Ovn
    • Tørretumbler
    • Vaskemaskine
  • Multimedier

    • Apple TV
    • Dansk tv
    • Gratis Wi-Fi - Over 100 Mbit
    • Kabel-TV
    • Norsk TV
    • Svensk TV
    • TV
    • Tysk TV
  • Ekstra

    • Barnestol
    • Vandrevenlig
  • Udenfor

    • Grill
      Kul
    • Havemøbler
    • Liggestole
      2
    • Overdækket terrasse
    • Parkering på grunden
    • Udendørs bruser
    • Åben terrasse
  • Diverse

    • Afmærkede vandreruter i nærheden
    • Gulvvarme
    • Tørrestativ / Tørresnor
  • Regler

    • Husdyr ikke tilladt
    • Opladning af elbil tilladt / Lader til elbil forefindes (Type 2 stik, inklusiv kabel)
    • Rygning ikke tilladt
  • Pris inklusiv

    • Gratis adgang til aktiviteter / Tennis
    • Slutrengøring inkl.

Miniferie

Der er mulighed for miniferie i udvalgte perioder af året.

Priser og kalender

Kalender

Ankomst
Forrige Næste
  • maj 2026
    mationtofr
    18123
    1945678910
    2011121314151617
    2118192021222324
    2225262728293031
    23
  • juni 2026
    mationtofr
    231234567
    24891011121314
    2515161718192021
    2622232425262728
    272930
    28
   Se om emnet er ledigt på den valgte dato
Ledig
Optaget
   Ankomst mulig
Varighed

Pris

Periode
Ankomst
Afrejse
Varighed
1 uge
Personer
Op til 6 personer

Bemærk

Ankomst er ikke valgt.
Aftale- og lejebetingelser