Luksussommerhus med pool og sauna på Rømø

Sommerhus - 8 personer - Thadesvej - Toftum - 6792 - Rømø

8 personer
Emne nr.: 037-2005
Oplev afslapning og luksus i dette totalrenoverede sommerhus med pool, sauna og jacuzzi på naturskønne Rømø.
  • Soverum 6
  • Badeværelser 2
  • Boligareal 193 m²
  • Grundareal 3.212 m²
  • Husdyr 2
  • Tilbyder miniferie Nej
  • Afstand vand 2.500 m
  • Afstand indkøb 4 km
  • Swimmingpool inde Ja
  • Spa Ja
  • Sauna Ja
  • Highspeed internet Ja
  • Brændeovn Ja
  • Vaskemaskine Ja
  • Tørretumbler Ja
  • Opvaskemaskine Ja
  • Ikkeryger Ja
  • Ladestander til elbil Ja
  • Energivenligt Ja

Beskrivelse

Thadesvej 14 på Rømø er stedet hvor man finder ”Quality Time” til hele familien. Feriestedet ligger i den autentiske del af Rømø, hvor man kan nyde spadsere- og cykelture i den pragtfulde natur, se på heste og får på markerne og besøge museet ”Kommandørgården” og Danmarks mindste skole som ligger kun 500 meter fra sommerhuset.

Velkommen indenfor
Det er her hvor husets ejer byder gæsterne velkommen med kager til kaffen og ild i brændeovnen og hvor man bliver vist rundt i det totalrenoverede sommerhus med bla. a. swimmingpool med undervandsbelysning og svømmetræner, og sauna og jacuzzi.
Den rummelige stue med den dejlige sofagruppe er pladsen hvor man kan hygge sig ved brændeovnen, spille kort og se fjernsyn med masser af tyske og danske programmer.
Huset er selvfølgelig forsynet med alle moderne installationer der sparer på energien såsom varmepumpe til stuen og lavenergi varmepumpe til pool og spa og et automatisk digitalt klor- og PH anlæg til poolen. Endvidere er der el-lader til bilen.

Nyd livet udenfor
Husets store sydvendte terrasse byder på mange hyggelige timer i solen eller/og med barbecue. Uden for og rundt om huset, kan man boltre sig på den store græsplæne som byder på alle faciliteter til fodbold, badminton og cricket, og hvor man kan hoppe på trampolin, lege i sandkassen eller tage en tur i gyngerne. Thadesvej 14 er virkelig et dejligt feriested til familien.

Kom tæt på de lokale oplevelser
Den nordligste del af Rømø er kendt for sin rå, uspolerede natur med vidtstrakte marker og enge. Området er ideelt til vandreture og især i sensommeren kan du nyde det fascinerende hedelandskab i området Bolilmark. Kommandørgården, et historisk museum, som viser øens gamle søfartstraditioner. Naturen her byder også på ro og mulighed for at opleve det fascinerende Vadehav, som er UNESCO-verdensarv.


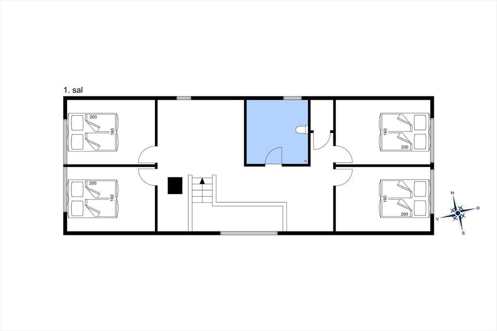
Rumindretning

  • Soveværelse
    • Dobbeltseng - 160 x 200
  • Soveværelse
    • Dobbeltseng - 160 x 200
  • Soveværelse
    • Enkelt seng - 80 x 200
    • Enkelt seng - 80 x 200
  • Soveværelse
    • Enkelt seng - 80 x 200
    • Enkelt seng - 80 x 200
  • Soveværelse
    • Dobbeltseng - 160 x 200
  • Soveværelse
    • Dobbeltseng - 160 x 200

Vores gæsteanmeldelser Eksterne anmeldelser

4,5
Baseret på 4 vurderinger
Sidste vurdering fra d. 02-11-2025
5
(3)
4
(0)
3
(1)
2
(0)
1
(0)
Kommentarer
Ingen vurderinger har kommentarer på dansk
2 vurderinger har komentarer på andre sprog.

Faciliteter

  • Hus Info

    • 2 x Bruser
    • 2 x WC
    • Antal husdyr
      2
    • Antal voksne
      8
    • Byggeår
      1996
    • Grundareal
      3212 m²
    • Husareal
      193 m²
    • Indendørs Pool
      20 m²
    • Indendørs spabad
    • Renoveringsår
      2024
    • Sauna
  • Afstande

    • Afstand golfbane
      12 km
    • Afstand indkøb
      4 km
    • Afstand restaurant
      4 km
    • Afstand strand
      3,3 km
    • Afstand vadehav
      2,5 km
  • Energi / Opvarmning

    • Brændeovn
    • Elvarme
    • Varmepumpe
  • Hårde hvidevarer

    • Elkedel
    • Emhætte
    • Fryser
      98
    • Kaffemaskine
    • Kogeplader
    • Køleskab
      316
    • Mikroovn
    • Opvaskemaskine
    • Ovn
    • Strygebræt
    • Strygejern
    • Tørretumbler
    • Vaskemaskine
  • Multimedier

    • Dansk tv
    • Gratis Wi-Fi - Over 20 Mbit
    • TV
    • Tysk TV
  • Ekstra

    • Barnestol
    • Bordfodbold
    • Vandrevenlig
  • Udenfor

    • Grill
      Kohlegrill
    • Gynge
    • Havemøbler
    • Liggestole
      4
    • Parasol
      1
    • Parkering på grunden
    • Sandkasse
    • Terrasse
  • Diverse

    • 4 x Gulvvarme
    • Afmærkede vandreruter i nærheden
  • Regler

    • Husdyr: Kun hunde tilladt
    • Opladning af elbil tilladt / Lader til elbil forefindes (Type 2 stik, inklusiv kabel)
    • Rygning ikke tilladt
  • Pris inklusiv

    • Slutrengøring inkl.

Priser og kalender

Kalender

Ankomst
Næste
  • april 2026
    mationtofr
    1412345
    156789101112
    1613141516171819
    1720212223242526
    1827282930
    19
  • maj 2026
    mationtofr
    18123
    1945678910
    2011121314151617
    2118192021222324
    2225262728293031
    23
   Se om emnet er ledigt på den valgte dato
Ledig
Optaget
   Ankomst mulig
Varighed

Pris

Periode
Ankomst
Afrejse
Varighed
1 uge
Personer
Op til 8 personer

Bemærk

Ankomst er ikke valgt.
Aftale- og lejebetingelser