Hyggeligt sommerhus med naturgrund og strandnærhed

Sommerhus - 6 personer - Vindgaf - Rindby - 6720 - Fanø

6 personer
Emne nr.: 328-687518
Hyggeligt sommerhus på Fanø med brændeovn, terrasse, naturgrund og ladestik til elbil, kun 600 m fra stranden.
  • Soverum 4
  • Badeværelser 1
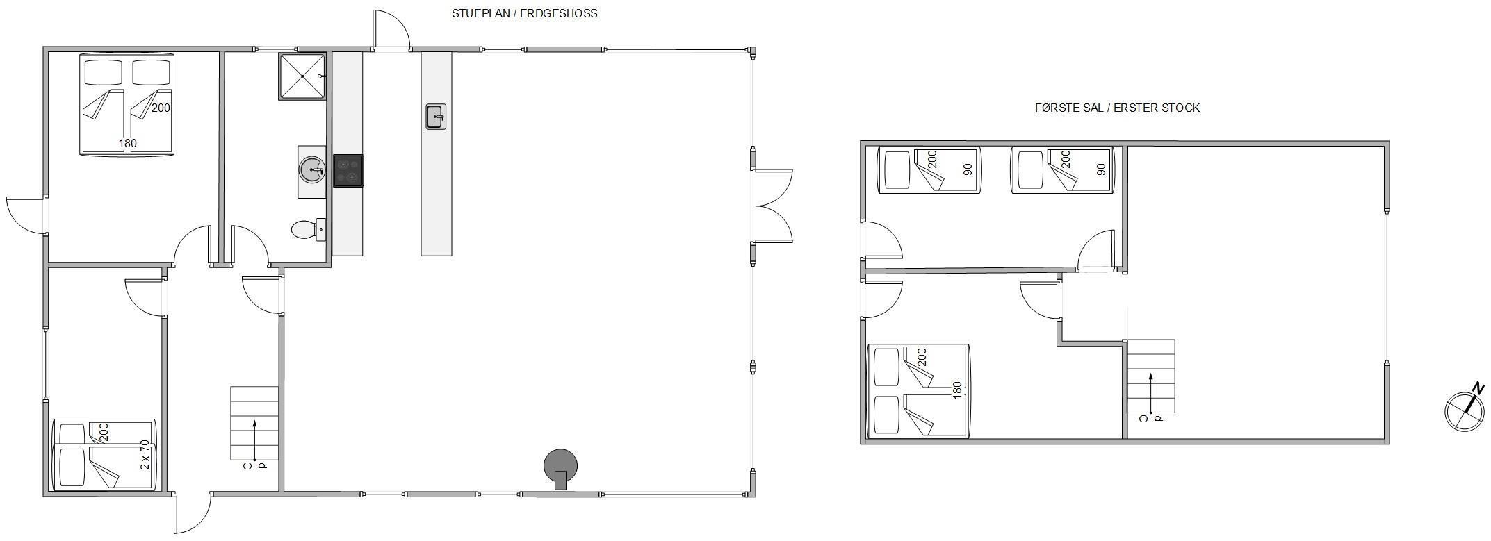
  • Boligareal 114 m²
  • Grundareal 1.800 m²
  • Husdyr Ikke tilladt
  • Tilbyder miniferie Nej
  • Afstand vand 600 m
  • Afstand indkøb 700 m
  • Highspeed internet Ja
  • Brændeovn Ja
  • Vaskemaskine Ja
  • Opvaskemaskine Ja
  • Ikkeryger Ja
  • Ladestander til elbil Ja
  • Energivenligt Ja

Beskrivelse

På Vindgaf 57 på den hyggelige ferieø Fanø, ligger dette fine sommerhus på en skøn naturgrund. Her er der plads til 6 feriegæster, og sommerhuset byder blandt andet på en brændeovn, der skaber en ekstra hyggelig feriestemning på en blæsende efterårsdag. På terrassen kan I nyde sommersolen i havemøbler og liggestole, mens saftige bøffer steges på kulgrillen.

6-personers sommerhus med indbydende indretning

Sommerhuset er moderne indrettet, og sammen med det store vinduesparti i alrummet, skaber det en lys og indbydende atmosfære i feriehuset. Vinduespartiet går op i kip, og her har I en skøn udsigt til den omkringliggende natur. I alrummet kan hele familien samles til mange gode stunder, og den åbne planløsning sørger for, at I får mest mulig tid med hinanden – Selv når der skal laves mad.

Køkkenet er veludstyret, og her er der blandt andet opvaskemaskine, så I ikke selv står med opvasken efter maden. Her kan I i stedet slappe af på sofaen, mens brændeovnen knitrer i baggrunden. Som et ekstra plus er der også en energibesparende varmepumpe i sommerhuset, som sørger for et behageligt indeklima.

På badeværelset er der gulvvarme, og der er desuden en vaskemaskine i sommerhuset, så I kan få frisket jeres håndklæder op i løbet af ferien.

Sommerhusets 114 m² fordeler sig på 2 plan, hvoraf der er 2 soveværelser på hver etage. Der er 2 soveværelser med dobbeltsenge, et soveværelse med 2 enkeltsenge samt et soveværelse med en køjeseng. På førstesalen finder I en ekstra stue, hvorfra I også har en skøn udsigt over området.

Vindgaf 57 - Skøn naturgrund med ladestik til elbil

Sommerhuset ligger på en skøn naturgrund, hvor der til børnene både er sandkasse og gynge. Imens børnene leger, kan I nyde solen på den afskærmede terrasse, hvor både havemøbler og liggestole står klar til jer. Bag huset finder I endnu en terrasse. Den store og åbne træterrasse, giver mulighed for afslapning med et glas vin i hånden, samtidig med, at man kan se børnene lege på gyngerne ved siden af. Til aften kan I tænde op i grillen og holde en hyggelig grillmiddag i solen, inden den går ned bag klitterne.

Er I kørende i elbil, kan den oplades direkte ved sommerhuset. Her er nemlig et ladestik, i skal blot huske at medbringe jeres eget ladekabel.

Nær stranden i Rindby

Sommerhuset ligger i Rindby på Fanø, og herfra har I blot 600 meter til stranden, der er et besøg værd året rundt. På varme sommerdage er her helt perfekt til både badning, solbadning og beachvolley-kampe, mens det om vinteren er oplagt med en lang, frisk gåtur ved vandet.

Fra sommerhuset har I 700 meter til nærmeste indkøbsmulighed, og Rindby byder desuden på hyggelige spisesteder, så I har mulighed for at spise ude en dag eller 2.

Faciliteter

  • Opholdsrum

    • DVD-afspiller
      1
    • Gulv: Træ
    • Brændeovn
    • Fladskærms-TV
      1
  • Soverum

    • Gulv: Træ
    • Dobbeltsenge
      2
    • Enkeltsenge
      2
    • Køjesenge
      1
    • Sovepladser
      6
    • Soverum
      4
  • Køkken

    • Komfur: Induktion m. ovn
    • Køleskab
    • Opvaskemaskine
    • Mikroovn
    • Separat fryser /L
      60
  • Baderum

    • Gulvvarme bad
    • Antal badeværelser
      1
  • Objektinfo - Inde

    • Areal: Hus m²
      114
    • Byggeår
      1982
    • Barneseng
      1
    • Ikke ryger hus
    • Gratis Internet
    • Personantal
      6
    • Renoveret
      2021
    • Tyske tv-programmer
    • Varme: Elvarme
    • Varme: Varmepumpe luft til luft
    • Vaskemaskine
    • Gratis fiber Internet
    • Chromecast
    • Jubilæumsmønt er udleveret
  • Objektinfo - ude

    • Afstand hav
      600 m
    • Afstand indkøb
      700 m
    • Areal: Grund m²
      1800
    • Gynge
    • Sandkasse
    • Grill
    • Havemøbler
    • Solvogne
    • Parasol
    • Terrasse: åben
    • Terrasse: Afskærmet
    • Naturgrund
    • Affald hentes:
      Tirsdag ulige uger
    • Affald: Liter
      140
    • Ladestik til el-bil
  • Koncepter

    • Skiftedag: Fredag
    • Vandaflæsning

Priser og kalender

Kalender

Ankomst
Forrige Næste
  • april 2026
    mationtofr
    1412345
    156789101112
    1613141516171819
    1720212223242526
    1827282930
    19
  • maj 2026
    mationtofr
    18123
    1945678910
    2011121314151617
    2118192021222324
    2225262728293031
    23
   Se om emnet er ledigt på den valgte dato
Ledig
Optaget
   Ankomst mulig
Varighed

Pris

Periode
Ankomst
Afrejse
Varighed
1 uge
Personer
Op til 6 personer

Bemærk

Ankomst er ikke valgt.
Aftale- og lejebetingelser