Alternative emner
Sommerhus med anneks og stor naturgrund på Rømø
Sommerhus - 6 personer - Rimmevej - 6792 - Rømø
6 personer
Emne nr.: 121-29-2595
Dejligt sommerhus på Rømø med anneks, træpilleovn og stor naturgrund nær havet.
- Soverum 3
- Badeværelser 1
- Boligareal 68 m²
- Grundareal 3.370 m²
- Husdyr 1
- Tilbyder miniferie Ja
- Afstand vand 850 m
- Afstand indkøb 2.200 m
- Internet Ja
- Vaskemaskine Ja
- Opvaskemaskine Ja
- Ikkeryger Ja
- Energivenligt Ja
Beskrivelse
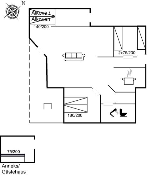
Dette dejlige sommerhus er beliggende på den sydlige del af Rømø, på en ugeneret grund i et naturskønt område. Bemærk: 2 sovepladser i alkove i opholdsstuen. Endvidere findes der et anneks, som dog kun kan anvendes henover sommeren. Annekset er indrettet med køjeseng.
Indretning
Sommerhuset egner sig til 6 personer. Ferieboligen er på 68 m² og er bygget i 1990. I 2014 gennemgik ferieboligen en renovering. Det er tilladt at medbringe 1 husdyr. Ferieboligen er udstyret med energibesparende varmepumpe. Ferieboligen har vaskemaskine. Frysekapacitet på 10 liter. Endvidere træpilleovn.
Udenfor
Ferieboligen er beliggende på en 3370 m² stor naturgrund. Der er 850 m til havet. Der er 2300 m til Vadehavet. Nærmeste forretning er beliggende i en afstand af 2200 m. Der er en golfbane i en afstand af 1800 m. Til ferieboligen hører 10 m² terrasseareal. Desuden er der 15 m² overdækket terrasse. Parkering ved ferieboligen.
Soveforhold
Der er i alt 3 soveværelser. Sovepladserne fordeler sig på: 2 sovepladser i dobbeltseng. 2 sovepladser i enkeltsenge. 2 sovepladser i køjeseng. 2 sovepladser i alkove.- 2 af disse sovepladser befinder sig i et anneks.
Køkken
Køkkenet er udstyret med 1 køleskab. Der er 4 keramiske kogeplader, varmluftovn, mikrobølgeovn samt opvaskemaskine.
Toilet og bad
Der er 1 badeværelse med bruseniche og 1 toilet.. Der er gulvvarme på 1 badeværelse.
Multimedier
I ferieboligen er der 1 TV. DVD-afspiller. Radio. Stereoanlæg. CD-afspiller. Der er 1-3 danske kanaler. Mindst 4 tyske kanaler. Der er trådløst internet til rådighed.
Værd at vide
Ingen udlejning til ungdomsgrupper, hvor alle er 15-25 år. Rygning ikke tilladt. Ved overtrædelse af forbuddet opkræves et gebyr på minimum DKK 3.000,-.
Indretning
Sommerhuset egner sig til 6 personer. Ferieboligen er på 68 m² og er bygget i 1990. I 2014 gennemgik ferieboligen en renovering. Det er tilladt at medbringe 1 husdyr. Ferieboligen er udstyret med energibesparende varmepumpe. Ferieboligen har vaskemaskine. Frysekapacitet på 10 liter. Endvidere træpilleovn.
Udenfor
Ferieboligen er beliggende på en 3370 m² stor naturgrund. Der er 850 m til havet. Der er 2300 m til Vadehavet. Nærmeste forretning er beliggende i en afstand af 2200 m. Der er en golfbane i en afstand af 1800 m. Til ferieboligen hører 10 m² terrasseareal. Desuden er der 15 m² overdækket terrasse. Parkering ved ferieboligen.
Soveforhold
Der er i alt 3 soveværelser. Sovepladserne fordeler sig på: 2 sovepladser i dobbeltseng. 2 sovepladser i enkeltsenge. 2 sovepladser i køjeseng. 2 sovepladser i alkove.- 2 af disse sovepladser befinder sig i et anneks.
Køkken
Køkkenet er udstyret med 1 køleskab. Der er 4 keramiske kogeplader, varmluftovn, mikrobølgeovn samt opvaskemaskine.
Toilet og bad
Der er 1 badeværelse med bruseniche og 1 toilet.. Der er gulvvarme på 1 badeværelse.
Multimedier
I ferieboligen er der 1 TV. DVD-afspiller. Radio. Stereoanlæg. CD-afspiller. Der er 1-3 danske kanaler. Mindst 4 tyske kanaler. Der er trådløst internet til rådighed.
Værd at vide
Ingen udlejning til ungdomsgrupper, hvor alle er 15-25 år. Rygning ikke tilladt. Ved overtrædelse af forbuddet opkræves et gebyr på minimum DKK 3.000,-.
Vores gæsteanmeldelser Eksterne anmeldelser
Faciliteter
-
Adgang til ferieboligen
-
Nøgleboks med kode
-
-
Bemærk
-
Ingen ungdomsgrupper efter anmodning
-
Rygning er forbudt
-
-
Indretning
-
Antal voksne inkl. 4-11 år6
-
Bebygget areal68 m²
-
Byggeår1990
-
Feriebolig
-
Frysekapacitet (antal liter)10
-
Husdyr1
-
Renovering2014
-
Træpilleovn1
-
Varmepumpe
-
Vaskemaskine1
-
-
Køkken
-
Antal keramiske kogeplader4
-
Køleskab1
-
Mikrobølgeovn1
-
Opvaskemaskine1
-
Varmluftovn1
-
-
Multimedier
-
> 3 tyske kanaler
-
0-3 danske kanaler
-
Antal tv'er1
-
CD afspiller
-
DVD1
-
Radio
-
Stereo sæt
-
Trådløst internet
-
-
Soveforhold
-
Alkove (antal sovepladser)2
-
Anneks (antal sovepladser)
-
Antal soveværelser3
-
Dobbeltseng (antal sovepladser)2
-
Enkeltseng (antal sovepladser)2
-
Køjeseng (antal sovepladser)2
-
Soveplads ikke i soveværelset
-
-
Toilet og bad
-
Antal badeværelser1
-
Antal toiletter1
-
Brusekabine
-
Gulvvarme1
-
-
Udenfor
-
Butik2,2 km
-
Golfbane1,8 km
-
Hav850 m
-
Natursted
-
Overdækket terrasse15 m²
-
Parkeringsplads ved huset
-
Størrelse af grunden3370 m²
-
Terrasse10 m²
-
Vadehavet2,3 km
-
Miniferie
Der er begrænset mulighed for miniferie hele året, typisk uden for højsæsonen.
Priser og kalender
Kalender
Varighed
Pris
Periode
- Ankomst
- Afrejse
- Varighed
- 1 uge
Personer
Op til 6 personer
Bemærk
Ankomst er ikke valgt.