Moderne sommerhus med stor terrasse og brændeovn

Sommerhus - 6 personer - Fyrrealle - Lodbjerg Hede - 6950 - Ringkøbing

6 personer
Emne nr.: 328-132832
Moderne sommerhus i Lodbjerg Hede med stor terrasse, brændeovn og opladning til elbil.
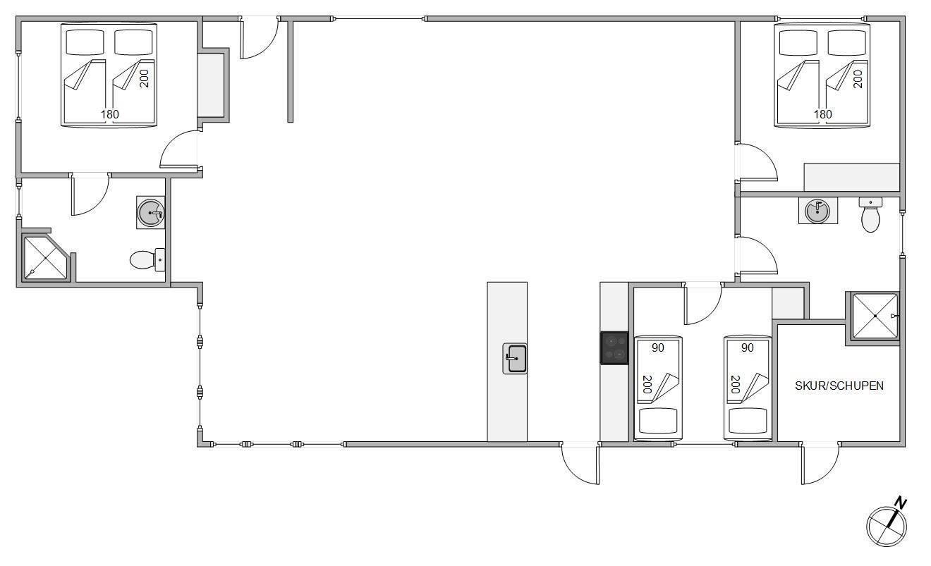
  • Soverum 3
  • Badeværelser 2
  • Boligareal 120 m²
  • Grundareal 2.119 m²
  • Husdyr Ikke tilladt
  • Tilbyder miniferie Nej
  • Afstand vand 1.500 m
  • Afstand indkøb 1 km
  • Highspeed internet Ja
  • Parabol/kabel TV Ja
  • Brændeovn Ja
  • Vaskemaskine Ja
  • Opvaskemaskine Ja
  • Ikkeryger Ja
  • Ladestander til elbil Ja
  • Energivenligt Ja

Beskrivelse

På en naturskøn og ugeneret plet i Lodbjerg Hede ligger dette ferhus til 6 personer. Den moderne feriebolig er opført i 2020 og er indrettet i en smagfuld stil med et skandinavisk præg – lyst, indbydende og med højt til loftet. I får en skøn, stor terrasse med delvis overdækning, og der er ikke langt til diverse oplevelser på Vestkysten. Ankommer I, i elbil er her også mulighed for at lade den op her.

Indbydende Sommerhus med moderne indretning, brændeovn og varmepumpe

Det flotte sommerhus på Fyrreallé 16 emmer af feriehygge. Sommerhus byder på et rummeligt og smagfuldt indre med et skandinavisk præg over sig. Loftet er åbent til kip, og store vinduer sørger for et dejligt lysindfald og giver jer samtidig udsyn til den grønne natur, I er omgivet af. Alt i alt er der skabt en virkelig hyggelig og indbydende atmosfære i sommerhuset.

Den moderne feriebolig er udstyret med alt, hvad der er brug for, når der skal holdes en afslappende ferie. I opholdsrummet står brændeovnen, som altid sikrer god stemning og varme, og i køkkenet står opvaskemaskinen klar til lynhurtigt at afhjælpe oprydningsarbejdet efter middagen. Der er også en energibesparende varmepumpe, så I året rundt har et behageligt rumklima.

Med 2 badeværelser – begge udstyret med gulvvarme – slipper I for lange køer til brusebadet fra morgenstunden af, og der er også en vaskemaskine i sommerhuset.

Stor, delvist overdækket terrasse og ugeneret beliggenhed i Lodbjerg Hede

Sommerhuset har en dejlig beliggenhed på en mere end 2.000 kvadratmeter stor plænegrund i Lodbjerg Hede. Høje træer og tæt buskads afskærmer hele grunden og sørger for, at I helt ugeneret kan nyde feriedagene på den store terrasse – som desuden også har en overdækket del. Det er altså ikke vejret, der skal stå i vejen for, at I kan samle fornyet energi i den friske luft og den grønne natur.

Fyrreallé 16 i Lodbjerg Hede – sommerhus nær strand, fjord og golf

Lodbjerg Hedes ferieområde er særligt kendt for sine rolige og naturskønne omgivelser. Her bor I tæt på både fiskesø, en stor golfbane og den smukke Stadil Fjord, som blandt andet kan betragtes fra den lille, nærliggende fjordhavn, Røjklit Havn. Her finder I også en shelters-plads med bålsted.

På trods af Lodbjerg Hedes rolige atmosfære er der heller ikke langt til andre og alsidige oplevelser. En kort køretur fra jeres ferieadresse ligger Vesterhavet og den brede sandstrand, som altid inviterer til lange gåture. Der er heller ikke mange minutters kørsel til den næste købmand, ligesom Søndervigs populære ferieby med sine mange butikker, spisesteder og diverse aktiviteter også befinder sig inden for få kilometers radius af sommerhuset.

Vores gæsteanmeldelser Eksterne anmeldelser

5,0
Baseret på 1 vurdering
Vurderet d. 19-03-2023
5
(1)
4
(0)
3
(0)
2
(0)
1
(0)
Kommentarer
Ingen vurderinger har kommentarer.

Faciliteter

  • Opholdsrum

    • Gulv: Trælaminat
    • Brændeovn
    • Fladskærms-TV
      1
  • Soverum

    • Gulv: Trælaminat
    • Dobbeltsenge
      2
    • Enkeltsenge
      2
    • Sovepladser
      6
    • Soverum
      3
    • 1. soverum/sengestørrelser
      180X200
    • 2. soverum/sengestørrelser
      180X200
    • 3. soverum/sengestørrelser
      2x90x200
  • Køkken

    • Komfur: Induktion m. ovn
    • Køleskab
    • Opvaskemaskine
    • Mikroovn
    • Separat fryser /L
      100
  • Baderum

    • Gulvvarme bad
    • Antal badeværelser
      2
  • Objektinfo - Inde

    • Areal: Hus m²
      120
    • Byggeår
      2020
    • Ikke ryger hus
    • Personantal
      6
    • Tyske tv-programmer
    • Varme: Elvarme
    • Varme: Varmepumpe luft til luft
    • Vaskemaskine
    • Satellit (tyske kanaler samt et par danske)
    • Gratis fiber Internet
    • Chromecast
    • Jubilæumsmønt er udleveret
  • Objektinfo - ude

    • Afstand i meter: Hav
      1,5 km
    • Afstand i meter: Indkøb
      1 km
    • Grundens areal i m2
      2119
    • Sandkasse
    • Havemøbler
    • Solvogne
    • Parasol
    • Terrasse: åben
    • Terrasse: Overdækket
    • Plænegrund
    • Affald hentes:
      Torsdag
    • Skraldespand - Liter
      240
    • Gasgrill
    • Ladestik til el-bil
  • Koncepter

    • Skiftedag: Lørdag
    • Vandaflæsning
    • Ingen vandmåler p.t.
  • Miniferie

    • Ja, tak - tillad miniferie

Priser og kalender

Kalender

Ankomst
Næste
  • april 2026
    mationtofr
    1412345
    156789101112
    1613141516171819
    1720212223242526
    1827282930
    19
  • maj 2026
    mationtofr
    18123
    1945678910
    2011121314151617
    2118192021222324
    2225262728293031
    23
   Se om emnet er ledigt på den valgte dato
Ledig
Optaget
   Ankomst mulig
Varighed

Pris

Periode
Ankomst
Afrejse
Varighed
1 uge
Personer
Op til 6 personer

Bemærk

Ankomst er ikke valgt.
Aftale- og lejebetingelser