Alternative emner
Stort renoveret sommerhus med mange faciliteter
Sommerhus - 25 personer - Oddesundvej - Helligsø - 7760 - Hurup
25 personer
Emne nr.: 121-31-0022
Renoveret landejendom i Hurup Thy med plads til store familier og aktivitetsmuligheder inden- og udendørs.
- Soverum 10
- Badeværelser 3
- Boligareal 645 m²
- Grundareal 10.000 m²
- Husdyr 2
- Tilbyder miniferie Ja
- Afstand vand 300 m
- Afstand indkøb 5 km
- Spa Ja
- Internet Ja
- Parabol/kabel TV Ja
- Aktivitetsrum Ja
- Udsigt til vand Ja
- Vaskemaskine Ja
- Tørretumbler Ja
- Opvaskemaskine Ja
- Ikkeryger Ja
Beskrivelse
Dette flotte sommerhus er en tidligere landejendom, der er blevet gennemgribende renoveret i 2014. Her er god plads både inde og ude. Huset er meget velegnet til flere familier og byder på masser af aktivitetsmuligheder, hvad enten vejret er godt eller dårligt. Huset ligger på en meget stor naturgrund med en lille sø, hvor I kan være heldige at opleve bl.a. rådyr en tidlig morgen.
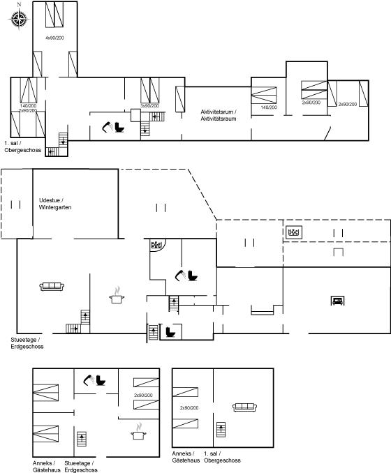
Indretning
Denne tidligere landejendom egner sig til 25 personer samt 2 børn op til 3 år. Ferieboligen er på 645 m², er i 2 plan, og er bygget i 1967. I 2014 gennemgik ferieboligen en renovering. Det er tilladt at medbringe 2 husdyr. Ferieboligen har vaskemaskine. Tørretumbler. Gulvvarme i stueetagen. Frysekapacitet på 300 liter. Til de små er der 2 stk. barnestole. Puslebord.
Udenfor
Ferieboligen er beliggende på en 10000 m² stor naturgrund. Der er 300 m til fjorden. Nærmeste forretning er beliggende i en afstand af 5000 m. Der er en golfbane i en afstand af 20000 m. Til ferieboligen hører 70 m² terrasseareal. Desuden er der 30 m² overdækket terrasse. Gynge. Trampolin. Fodboldmål. Bålsted. Grill til rådighed. Parkering ved ferieboligen.
Aktivitetsrum
I aktivitetsrummet er der følgende udstyr: Poolbord. Bordtennis. Airhockey.
Soveforhold
Der er i alt 10 soveværelser. Sovepladserne fordeler sig på: 8 sovepladser i dobbeltsenge. 17 sovepladser i enkeltsenge. Derudover er der 2 stk. barnesenge.
Køkken
Køkkenet er udstyret med 1 køleskab. Der er 4 induktionskogeplader, varmluftovn, mikrobølgeovn samt opvaskemaskine.
Toilet og bad
Der er 3 badeværelser med bruseniche og 4 toiletter, heraf 1 gæstetoilet. Der er gulvvarme på 1 badeværelse. Der er gulvvarme på gæstetoilettet.
Spa
Der er mulighed for afslapning i indendørs spa til 2 personer. Der er mulighed for afslapning i udendørs standvandsspa til 6 personer.
Multimedier
I ferieboligen er der 2 TV. Radio. Stereoanlæg. CD-afspiller. Nintendo Wii. Der er mindst 4 danske kanaler. 1-3 svenske kanaler. 1-3 norske kanaler. Mindst 4 tyske kanaler. Der er trådløst internet til rådighed.
Værd at vide
Rygning ikke tilladt. Ved overtrædelse af forbuddet opkræves et gebyr på minimum DKK 3.000,-.
Indretning
Denne tidligere landejendom egner sig til 25 personer samt 2 børn op til 3 år. Ferieboligen er på 645 m², er i 2 plan, og er bygget i 1967. I 2014 gennemgik ferieboligen en renovering. Det er tilladt at medbringe 2 husdyr. Ferieboligen har vaskemaskine. Tørretumbler. Gulvvarme i stueetagen. Frysekapacitet på 300 liter. Til de små er der 2 stk. barnestole. Puslebord.
Udenfor
Ferieboligen er beliggende på en 10000 m² stor naturgrund. Der er 300 m til fjorden. Nærmeste forretning er beliggende i en afstand af 5000 m. Der er en golfbane i en afstand af 20000 m. Til ferieboligen hører 70 m² terrasseareal. Desuden er der 30 m² overdækket terrasse. Gynge. Trampolin. Fodboldmål. Bålsted. Grill til rådighed. Parkering ved ferieboligen.
Aktivitetsrum
I aktivitetsrummet er der følgende udstyr: Poolbord. Bordtennis. Airhockey.
Soveforhold
Der er i alt 10 soveværelser. Sovepladserne fordeler sig på: 8 sovepladser i dobbeltsenge. 17 sovepladser i enkeltsenge. Derudover er der 2 stk. barnesenge.
Køkken
Køkkenet er udstyret med 1 køleskab. Der er 4 induktionskogeplader, varmluftovn, mikrobølgeovn samt opvaskemaskine.
Toilet og bad
Der er 3 badeværelser med bruseniche og 4 toiletter, heraf 1 gæstetoilet. Der er gulvvarme på 1 badeværelse. Der er gulvvarme på gæstetoilettet.
Spa
Der er mulighed for afslapning i indendørs spa til 2 personer. Der er mulighed for afslapning i udendørs standvandsspa til 6 personer.
Multimedier
I ferieboligen er der 2 TV. Radio. Stereoanlæg. CD-afspiller. Nintendo Wii. Der er mindst 4 danske kanaler. 1-3 svenske kanaler. 1-3 norske kanaler. Mindst 4 tyske kanaler. Der er trådløst internet til rådighed.
Værd at vide
Rygning ikke tilladt. Ved overtrædelse af forbuddet opkræves et gebyr på minimum DKK 3.000,-.
Vores gæsteanmeldelser Eksterne anmeldelser
Faciliteter
-
Adgang til ferieboligen
-
Nøgleboks med kode
-
-
Aktivitetsrum
-
Air hockey
-
Aktivitetsrum
-
Bordtennis
-
Poolbord
-
-
Bemærk
-
Aktivitetshus
-
Rygning er forbudt
-
-
Gratis badeland
-
Sydthy Svømmebad
-
Thy Hallens Svømmecenter
-
-
Indretning
-
2 niveauer
-
Antal børn (0-3 år)2
-
Antal voksne inkl. 4-11 år25
-
Bebygget areal645 m²
-
Byggeår1967
-
Frysekapacitet (antal liter)300
-
Husdyr2
-
Højstol2
-
Puslebord
-
Renovering2014
-
Tidligere gård
-
Tørretumbler1
-
Vaskemaskine1
-
-
Køkken
-
Antal induktionskogeplader4
-
Køleskab1
-
Mikrobølgeovn1
-
Opvaskemaskine1
-
Varmluftovn1
-
-
Multimedier
-
> 3 danske kanaler
-
> 3 tyske kanaler
-
0-3 norske kanaler
-
0-3 svenske kanaler
-
Antal tv'er2
-
CD afspiller
-
Download150
-
Nintendo Wii
-
Radio
-
Stereo sæt
-
Trådløst internet
-
Upload150
-
-
Soveforhold
-
Antal soveværelser10
-
Barneseng2
-
Dobbeltseng (antal sovepladser)8
-
Enkeltseng (antal sovepladser)17
-
-
Spa
-
Indendørs spabad (antal personer)2
-
Udendørs forfyldt spabad (antal personer)6
-
-
Toilet og bad
-
Antal badeværelser3
-
Antal gæstebadeværelser1
-
Antal toiletter4
-
Brusekabine
-
Gulvvarme1
-
Gulvvarme1
-
-
Udenfor
-
Butik5 km
-
Bålplads
-
Fjord300 m
-
Fodbold mål
-
Golfbane20 km
-
Grill1
-
Natursted
-
Overdækket terrasse30 m²
-
Parkeringsplads ved huset
-
Størrelse af grunden10000 m²
-
Swing
-
Terrasse70 m²
-
Trampolin
-
-
Udsigt
-
Udsigt over søen fra huset
-
Udsigt over søen fra stedet
-
Udsigt til fjorden fra sommerhuset
-
Miniferie
Der er begrænset mulighed for miniferie hele året, typisk uden for højsæsonen.
Priser og kalender
Kalender
Varighed
Pris
Periode
- Ankomst
- Afrejse
- Varighed
- 1 uge
Personer
Op til 25 personer
Bemærk
Ankomst er ikke valgt.