Hyggeligt træsommerhus med udsigt og terrasse

Sommerhus - 5 personer - Nørre Frankel - Havneby - 6792 - Rømø

5 personer
Emne nr.: 328-118436
Hyggeligt træsommerhus i Havneby på Rømø med skovudsigt, terrasse, brændeovn og kun 250 meter til Vadehavet.
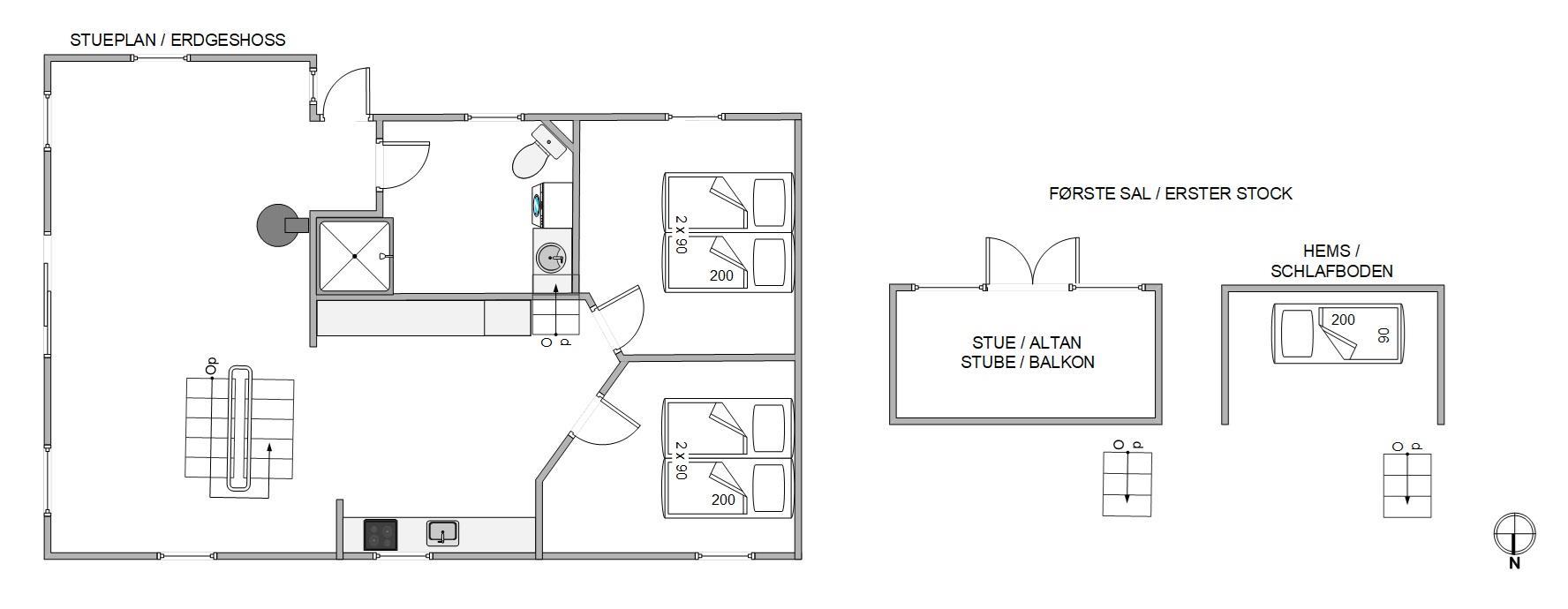
  • Soverum 2
  • Badeværelser 1
  • Boligareal 69 m²
  • Grundareal 1.800 m²
  • Husdyr Ikke tilladt
  • Tilbyder miniferie Nej
  • Afstand vand 250 m
  • Afstand indkøb 400 m
  • Highspeed internet Ja
  • Brændeovn Ja
  • Vaskemaskine Ja
  • Opvaskemaskine Ja
  • Ikkeryger Ja
  • Energivenligt Ja

Beskrivelse

Leder I efter et hyggeligt sommerhus med en fredelig beliggenhed og udsigt over skoven? På Nørre Frankel 59A ligger dette fine træferiehus til fem feriegæster - i Havneby på Rømø, ikke langt fra indkøb og kun 250 meter fra havet.

Hyttestemning med brændeovn og rolige omgivelser

Når I har parkeret bilen nedenfor, vil en trappe fører jer op til feriehuset, som ligger øverst på bakketoppen. Herfra har I en fantastisk udsigt udover den smukke natur. Naturlige materialer, særligt træ, kommer også til sin ret inde i det lyse feriehus. Her er den rette rolige atmosfære.

I stuetagen finder I et fint badeværelse med vaskemaskine, to gode soveværelser samt et dejligt alrum, der er i åben forbindelse med det funktionelle køkken. I køkkenet bliver madlavningen til en leg, især når opvaskemaskinen klarer den kedelig opvask og giver jer mere tid til at være sammen. I stuen kan I sætte jer godt til rette i sofaarrangementet og spille spil, strikke eller læse en krimi. På de køligere dage kan I både gøre brug af den energibesparende varmepumpe og brændeovnen, der slår et ekstra slag for hyggen. Trappen i stuen giver jer adgang til hemsen. Her finder i den femte soveplads samt en ekstra lille stue med adgang til feriehusets balkon.

Morgenkaffe og den smukkeste udsigt

Balkonen er dejligt sted, hvor I kan nyde morgenkaffen og fuglenes sang. Med feriehusets rolige beliggenheden mellem træer, kan I solbade, holde grillaftner og bare være jer! Omkring sommerhuset er nemlig en dejlig terrasse, hvor havemøblerne venter på jer! På grunden kan man sommetider endda være så heldige at se rådyr helt tæt på!

Ferie på idylliske Rømø

Sommerhuset ligger nær charmerende Havneby. Herfra er kun ca. 250 meter til Vadehavet og ca. 2,5 kilometer til Sønderstrand. Er I naturinteresseret, så husk at tage kikkert med. Vadehavet er opført på UNESCO’s verdensarvsliste, og her kan man tilbringe timevis i nærkontakt med naturen. Alt efter årstiden arrangeres sæl- eller østerssafari i området, og når stæreflokkene danner sort sol er det en naturoplevelse uden lige.

Fra Havneby, hvor sommerhuset er beliggende, kan I også tage færgen, som går mellem Rømø og den tyske ø Sild. På Sild er der utallige shoppingsmuligheder, restauranter samt andre aktiviteter.

Faciliteter

  • Opholdsrum

    • Gulv: Trælaminat
    • Brændeovn
    • Fladskærms-TV
      1
  • Soverum

    • Gulv: Trælaminat
    • Dobbeltsenge
      2
    • Enkeltsenge
      1
    • Sovepladser
      5
    • Soverum
      2
    • Antal personer (loft, anneks osv.)
      1
    • 1. soverum/sengestørrelser
      180X200
    • 2. soverum/sengestørrelser
      180X200
  • Køkken

    • Komfur: El m. ovn
    • Køleskab m. frostboks
    • Opvaskemaskine
    • Mikroovn
    • Separat fryser /L
      70
  • Baderum

    • Antal badeværelser
      1
  • Objektinfo - Inde

    • Areal: Hus m²
      69
    • Byggeår
      2002
    • Ikke ryger hus
    • Personantal
      5
    • Renoveret
      2020
    • Tyske tv-programmer
    • Varme: Elvarme
    • Varme: Varmepumpe luft til luft
    • Vaskemaskine
    • Gratis fiber Internet
    • Jubilæumsmønt er udleveret
  • Objektinfo - ude

    • Afstand i meter: Hav
      250 m
    • Afstand i meter: Indkøb
      400 m
    • Grundens areal i m2
      1800
    • Grill
    • Havemøbler
    • Solvogne
    • Terrasse: åben
    • Terrasse: Overdækket
    • Naturgrund
    • Panoramaudsigt
    • Affald hentes:
      Onsdag
    • Affald: Helårstømning
    • Skraldespand - Liter
      240
  • Koncepter

    • Skiftedag: Lørdag
    • Varme: 24 timer f. ankomst
    • Vandaflæsning
    • Fjernaflæsning af vandmåler
  • Miniferie

    • Ja, tak - tillad miniferie

Priser og kalender

Kalender

Ankomst
Forrige Næste
  • april 2026
    mationtofr
    1412345
    156789101112
    1613141516171819
    1720212223242526
    1827282930
    19
  • maj 2026
    mationtofr
    18123
    1945678910
    2011121314151617
    2118192021222324
    2225262728293031
    23
   Se om emnet er ledigt på den valgte dato
Ledig
Optaget
   Ankomst mulig
Varighed

Pris

Periode
Ankomst
Afrejse
Varighed
1 uge
Personer
Op til 5 personer

Bemærk

Ankomst er ikke valgt.
Aftale- og lejebetingelser