Alternative emner
Nyrenoveret lejlighed med pool i Rømø
Ferielejlighed - 6 personer - Vestergade 93 C,appt - Havneby - 6792 - Rømø
6 personer
Emne nr.: 121-29-2432
Nyrenoveret ferielejlighed i RIM Feriecenter med pool, sauna og tennisbaner tæt på Vadehavet.
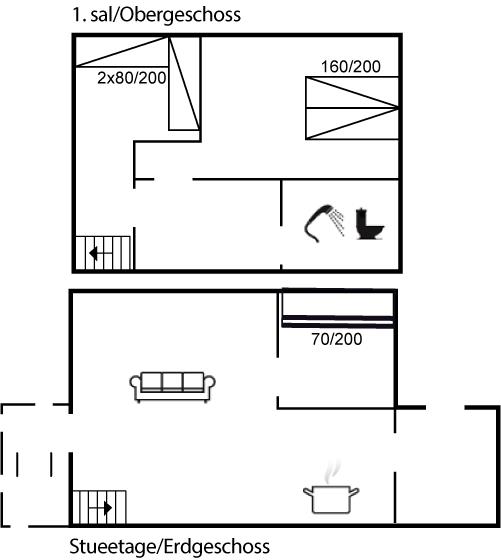
- Soverum 3
- Badeværelser 1
- Boligareal 73 m²
- Grundareal 200 m²
- Husdyr 2
- Tilbyder miniferie Ja
- Afstand vand 500 m
- Afstand indkøb 1.100 m
- Fælles indendørs swimmingpool Ja
- Internet Ja
- Parabol/kabel TV Ja
- Vaskemaskine Ja
- Opvaskemaskine Ja
- Ikkeryger Ja
Beskrivelse
Denne dejlige nyrenoverede ferielejlighed ligger i feriecentret RIM i Havneby.Til lejligheden, som er bygget i 2 etager, hører 2 terrasser og havemøbler. Feriecentret tilbyder aktiviteter for hele familien som f.eks. indendørs- og udendørspools, sauna, tennisbaner, legepladser m.m. Bemærk: Fjernvarme.
Indretning
Ferielejligheden egner sig til 6 personer. Ferieboligen er på 73 m² og er bygget i 1987. I 2018 gennemgik ferieboligen en delvis renovering. Det er tilladt at medbringe 2 husdyr. Ferieboligen har vaskemaskine. Frysekapacitet på 80 liter.
Udenfor
Ferieboligen er beliggende på en 200 m² stor naturgrund. Der er 2300 m til havet. Der er 500 m til Vadehavet. Nærmeste forretning er beliggende i en afstand af 1100 m. Der er en golfbane i en afstand af 100 m. Til ferieboligen hører 26 m² terrasseareal. Parkering ved ferieboligen.
Swimmingpool
Der er fælles indendørs swimmingpool til rådighed, hvor der er mulighed for leg og hyggeligt samvær.
Soveforhold
Der er i alt 3 soveværelser. Sovepladserne fordeler sig på: 2 sovepladser i dobbeltseng. 2 sovepladser i enkeltsenge. 2 sovepladser i køjeseng.
Køkken
Køkkenet er udstyret med 1 køleskab. Der er 4 elkogeplader, varmluftovn, mikrobølgeovn samt opvaskemaskine.
Toilet og bad
Der er 1 badeværelse med bruser og 1 toilet.
Multimedier
I ferieboligen er der 1 TV. Radio. Der er mindst 4 danske kanaler. 1-3 svenske kanaler. 1-3 norske kanaler. 1-3 tyske kanaler. Der er trådløst internet til rådighed.
Værd at vide
Udendørs swimmingpool er til rådighed fra 15. maj til 30. september. Ingen udlejning til ungdomsgrupper, hvor alle er 15-25 år. Rygning ikke tilladt. Ved overtrædelse af forbuddet opkræves et gebyr på minimum DKK 3.000,-.
Indretning
Ferielejligheden egner sig til 6 personer. Ferieboligen er på 73 m² og er bygget i 1987. I 2018 gennemgik ferieboligen en delvis renovering. Det er tilladt at medbringe 2 husdyr. Ferieboligen har vaskemaskine. Frysekapacitet på 80 liter.
Udenfor
Ferieboligen er beliggende på en 200 m² stor naturgrund. Der er 2300 m til havet. Der er 500 m til Vadehavet. Nærmeste forretning er beliggende i en afstand af 1100 m. Der er en golfbane i en afstand af 100 m. Til ferieboligen hører 26 m² terrasseareal. Parkering ved ferieboligen.
Swimmingpool
Der er fælles indendørs swimmingpool til rådighed, hvor der er mulighed for leg og hyggeligt samvær.
Soveforhold
Der er i alt 3 soveværelser. Sovepladserne fordeler sig på: 2 sovepladser i dobbeltseng. 2 sovepladser i enkeltsenge. 2 sovepladser i køjeseng.
Køkken
Køkkenet er udstyret med 1 køleskab. Der er 4 elkogeplader, varmluftovn, mikrobølgeovn samt opvaskemaskine.
Toilet og bad
Der er 1 badeværelse med bruser og 1 toilet.
Multimedier
I ferieboligen er der 1 TV. Radio. Der er mindst 4 danske kanaler. 1-3 svenske kanaler. 1-3 norske kanaler. 1-3 tyske kanaler. Der er trådløst internet til rådighed.
Værd at vide
Udendørs swimmingpool er til rådighed fra 15. maj til 30. september. Ingen udlejning til ungdomsgrupper, hvor alle er 15-25 år. Rygning ikke tilladt. Ved overtrædelse af forbuddet opkræves et gebyr på minimum DKK 3.000,-.
Vores gæsteanmeldelser Eksterne anmeldelser
Faciliteter
-
Adgang til ferieboligen
-
Nøgleboks med kode
-
-
Aktivitetscentre
-
Feriecenter RIM
-
-
Bemærk
-
Ingen ungdomsgrupper efter anmodning
-
Rygning er forbudt
-
-
Gratis badeland
-
Feriecenter Rim/Rømø
-
-
Indretning
-
Antal voksne inkl. 4-11 år6
-
Bebygget areal73 m²
-
Byggeår1987
-
Ferielejlighed
-
Frysekapacitet (antal liter)80
-
Husdyr2
-
Renoveringsår2018
-
Vaskemaskine1
-
-
Køkken
-
Antal elektriske kogeplader4
-
Køleskab1
-
Mikrobølgeovn1
-
Opvaskemaskine1
-
Varmluftovn1
-
-
Multimedier
-
> 3 danske kanaler
-
0-3 norske kanaler
-
0-3 svenske kanaler
-
0-3 tyske kanaler
-
Antal tv'er1
-
Radio
-
Trådløst internet
-
-
Soveforhold
-
Antal soveværelser3
-
Dobbeltseng (antal sovepladser)2
-
Enkeltseng (antal sovepladser)2
-
Køjeseng (antal sovepladser)2
-
-
Swimmingpool
-
Fælles indendørs swimmingpool
-
-
Toilet og bad
-
Antal badeværelser1
-
Antal toiletter1
-
Bruser
-
-
Udenfor
-
Butik1,1 km
-
Golfbane100 m
-
Hav2,3 km
-
Natursted
-
Parkeringsplads ved huset
-
Størrelse af grunden200 m²
-
Terrasse26 m²
-
Vadehavet500 m
-
Miniferie
Der er begrænset mulighed for miniferie hele året, typisk uden for højsæsonen.
Priser og kalender
Kalender
Varighed
Pris
Periode
- Ankomst
- Afrejse
- Varighed
- 1 uge
Personer
Op til 6 personer
Bemærk
Ankomst er ikke valgt.