Alternative emner
Hyggeligt sommerhus nær Vadehavet og golfbane
Sommerhus - 6 personer - Svenskestræde - Havneby - 6792 - Rømø
6 personer
Emne nr.: 121-29-2347
Hyggeligt sommerhus i Havneby på Rømø med terrasse, brændeovn og tæt på golf og Vadehavet.
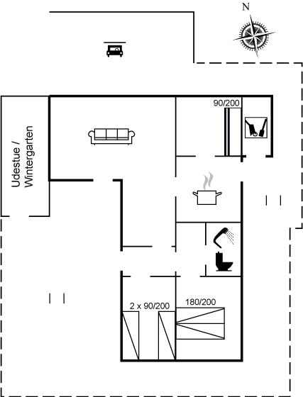
- Soverum 3
- Badeværelser 1
- Boligareal 67 m²
- Grundareal 1.198 m²
- Husdyr 1
- Tilbyder miniferie Ja
- Afstand vand 500 m
- Afstand indkøb 500 m
- Internet Ja
- Brændeovn Ja
- Vaskemaskine Ja
- Tørretumbler Ja
- Opvaskemaskine Ja
- Ikkeryger Ja
- Energivenligt Ja
Beskrivelse
Dette hyggelige sommerhus med dejlige terrasser ligger i ferieområdet Havneby – ikke langt fra havneområdet.
Indretning
Sommerhuset egner sig til 6 personer. Ferieboligen er på 67 m² og er bygget i 1977. I 2019 gennemgik ferieboligen en delvis renovering. Det er tilladt at medbringe 1 husdyr. Ferieboligen er udstyret med energibesparende varmepumpe. Ferieboligen har vaskemaskine. Tørretumbler. Frysekapacitet på 40 liter. Der er desuden brændeovn.
Udenfor
Ferieboligen er beliggende på en 1198 m² stor naturgrund. Der er 2000 m til havet. Der er 500 m til Vadehavet. Nærmeste forretning er beliggende i en afstand af 500 m. Der er en golfbane i en afstand af 250 m. Til ferieboligen hører 80 m² terrasseareal. Desuden er der 3 m² overdækket terrasse. Ligeledes er der adgang til udestue. Der er redskabsrum. Grill til rådighed. Der er carport til rådighed. Parkering ved ferieboligen.
Soveforhold
Der er i alt 3 soveværelser. Sovepladserne fordeler sig på: 2 sovepladser i dobbeltseng. 2 sovepladser i enkeltsenge. 2 sovepladser i køjeseng.
Køkken
Køkkenet er udstyret med 1 køleskab. Der er 4 keramiske kogeplader, varmluftovn, mikrobølgeovn samt opvaskemaskine.
Toilet og bad
Der er 1 badeværelse med bruseniche og 1 toilet.. Der er gulvvarme på 1 badeværelse.
Multimedier
I ferieboligen er der 1 Smart-TV. Der er 1-3 danske kanaler. Mindst 4 tyske kanaler. Der er trådløst internet til rådighed.
Værd at vide
Ingen udlejning til ungdomsgrupper, hvor alle er 15-25 år. Rygning ikke tilladt. Ved overtrædelse af forbuddet opkræves et gebyr på minimum DKK 3.000,-.
Indretning
Sommerhuset egner sig til 6 personer. Ferieboligen er på 67 m² og er bygget i 1977. I 2019 gennemgik ferieboligen en delvis renovering. Det er tilladt at medbringe 1 husdyr. Ferieboligen er udstyret med energibesparende varmepumpe. Ferieboligen har vaskemaskine. Tørretumbler. Frysekapacitet på 40 liter. Der er desuden brændeovn.
Udenfor
Ferieboligen er beliggende på en 1198 m² stor naturgrund. Der er 2000 m til havet. Der er 500 m til Vadehavet. Nærmeste forretning er beliggende i en afstand af 500 m. Der er en golfbane i en afstand af 250 m. Til ferieboligen hører 80 m² terrasseareal. Desuden er der 3 m² overdækket terrasse. Ligeledes er der adgang til udestue. Der er redskabsrum. Grill til rådighed. Der er carport til rådighed. Parkering ved ferieboligen.
Soveforhold
Der er i alt 3 soveværelser. Sovepladserne fordeler sig på: 2 sovepladser i dobbeltseng. 2 sovepladser i enkeltsenge. 2 sovepladser i køjeseng.
Køkken
Køkkenet er udstyret med 1 køleskab. Der er 4 keramiske kogeplader, varmluftovn, mikrobølgeovn samt opvaskemaskine.
Toilet og bad
Der er 1 badeværelse med bruseniche og 1 toilet.. Der er gulvvarme på 1 badeværelse.
Multimedier
I ferieboligen er der 1 Smart-TV. Der er 1-3 danske kanaler. Mindst 4 tyske kanaler. Der er trådløst internet til rådighed.
Værd at vide
Ingen udlejning til ungdomsgrupper, hvor alle er 15-25 år. Rygning ikke tilladt. Ved overtrædelse af forbuddet opkræves et gebyr på minimum DKK 3.000,-.
Vores gæsteanmeldelser Eksterne anmeldelser
Faciliteter
-
Adgang til ferieboligen
-
Nøgleboks med kode
-
-
Bemærk
-
Ingen ungdomsgrupper efter anmodning
-
Rygning er forbudt
-
-
Indretning
-
Antal voksne inkl. 4-11 år6
-
Bebygget areal67 m²
-
Brændeovn1
-
Byggeår1977
-
Feriebolig
-
Frysekapacitet (antal liter)40
-
Husdyr1
-
Renoveringsår2019
-
Tørretumbler1
-
Varmepumpe
-
Vaskemaskine1
-
-
Køkken
-
Antal keramiske kogeplader4
-
Køleskab1
-
Mikrobølgeovn1
-
Opvaskemaskine1
-
Varmluftovn1
-
-
Multimedier
-
> 3 tyske kanaler
-
0-3 danske kanaler
-
Antal tv'er1
-
Download30
-
Smart-Tv1
-
Trådløst internet
-
Upload30
-
-
Soveforhold
-
Antal soveværelser3
-
Dobbeltseng (antal sovepladser)2
-
Enkeltseng (antal sovepladser)2
-
Køjeseng (antal sovepladser)2
-
-
Toilet og bad
-
Antal badeværelser1
-
Antal toiletter1
-
Brusekabine
-
Gulvvarme1
-
-
Udenfor
-
Butik500 m
-
Carport
-
Golfbane250 m
-
Grill1
-
Hav2 km
-
Natursted
-
Overdækket terrasse3 m²
-
Parkeringsplads ved huset
-
Redskabsskur
-
Størrelse af grunden1198 m²
-
Terrasse80 m²
-
Udestue
-
Vadehavet500 m
-
Miniferie
Der er begrænset mulighed for miniferie hele året, typisk uden for højsæsonen.
Priser og kalender
Kalender
Varighed
Pris
Periode
- Ankomst
- Afrejse
- Varighed
- 1 uge
Personer
Op til 6 personer
Bemærk
Ankomst er ikke valgt.