Alternative emner
Ferielejlighed - 8 personer - Vestergade 233C, appt. - Havneby - 6792 - Rømø
8 personer
Emne nr.: 121-29-2078
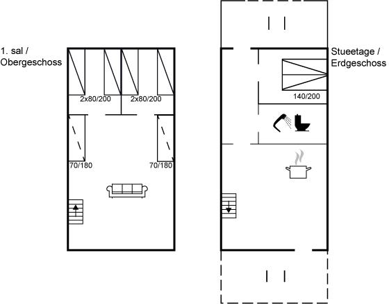
- Soverum 3
- Badeværelser 1
- Boligareal 86 m²
- Grundareal 200 m²
- Husdyr 1
- Tilbyder miniferie Nej
- Afstand vand 500 m
- Afstand indkøb 1.100 m
- Fælles indendørs swimmingpool Ja
- Internet Ja
- Vaskemaskine Ja
- Opvaskemaskine Ja
- Ikkeryger Ja
Beskrivelse
Ferielejlighed i 2 plan, løbende renoveret, beliggende i Feriecentret RIM. I stuen befinder sig 2 sovepladser på hver sin sovesofa. Feriecentret tilbyder aktiviteter for hele familien, f.eks. indendørs- og udendørspools, sauna, solarium, tennisbaner, legepladser m.m.
Indretning
Ferielejligheden egner sig til 8 personer. Ferieboligen er på 86 m² og er bygget i 1987. Det er tilladt at medbringe 1 husdyr. Ferieboligen har vaskemaskine. Frysekapacitet på 10 liter. Til de små er der 1 stk. barnestol.
Udenfor
Ferieboligen er beliggende på en 200 m² stor naturgrund. Der er 2300 m til havet. Der er 500 m til Vadehavet. Nærmeste forretning er beliggende i en afstand af 1100 m. Der er en golfbane i en afstand af 50 m. Til ferieboligen hører 30 m² terrasseareal. Parkering ved ferieboligen.
Swimmingpool
Der er fælles indendørs swimmingpool til rådighed, hvor der er mulighed for leg og hyggeligt samvær.
Soveforhold
Der er i alt 3 soveværelser. Sovepladserne fordeler sig på: 6 sovepladser i dobbeltsenge. 2 sovepladser i sovesofa (enkelt). Derudover er der 1 stk. barneseng.
Køkken
Køkkenet er udstyret med 1 køleskab. Der er 4 keramiske kogeplader, varmluftovn, mikrobølgeovn samt opvaskemaskine.
Toilet og bad
Der er 1 badeværelse med bruseniche og 1 toilet.
Multimedier
I ferieboligen er der 1 TV. DVD-afspiller. Radio. Stereoanlæg. Der er 1-3 danske kanaler. Mindst 4 tyske kanaler. Der er trådløst internet til rådighed.
Værd at vide
Udendørs swimmingpool er til rådighed fra 15. maj til 30. september. Ingen udlejning til ungdomsgrupper, hvor alle er 15-25 år. Rygning ikke tilladt. Ved overtrædelse af forbuddet opkræves et gebyr på minimum DKK 3.000,-.
Indretning
Ferielejligheden egner sig til 8 personer. Ferieboligen er på 86 m² og er bygget i 1987. Det er tilladt at medbringe 1 husdyr. Ferieboligen har vaskemaskine. Frysekapacitet på 10 liter. Til de små er der 1 stk. barnestol.
Udenfor
Ferieboligen er beliggende på en 200 m² stor naturgrund. Der er 2300 m til havet. Der er 500 m til Vadehavet. Nærmeste forretning er beliggende i en afstand af 1100 m. Der er en golfbane i en afstand af 50 m. Til ferieboligen hører 30 m² terrasseareal. Parkering ved ferieboligen.
Swimmingpool
Der er fælles indendørs swimmingpool til rådighed, hvor der er mulighed for leg og hyggeligt samvær.
Soveforhold
Der er i alt 3 soveværelser. Sovepladserne fordeler sig på: 6 sovepladser i dobbeltsenge. 2 sovepladser i sovesofa (enkelt). Derudover er der 1 stk. barneseng.
Køkken
Køkkenet er udstyret med 1 køleskab. Der er 4 keramiske kogeplader, varmluftovn, mikrobølgeovn samt opvaskemaskine.
Toilet og bad
Der er 1 badeværelse med bruseniche og 1 toilet.
Multimedier
I ferieboligen er der 1 TV. DVD-afspiller. Radio. Stereoanlæg. Der er 1-3 danske kanaler. Mindst 4 tyske kanaler. Der er trådløst internet til rådighed.
Værd at vide
Udendørs swimmingpool er til rådighed fra 15. maj til 30. september. Ingen udlejning til ungdomsgrupper, hvor alle er 15-25 år. Rygning ikke tilladt. Ved overtrædelse af forbuddet opkræves et gebyr på minimum DKK 3.000,-.
Faciliteter
-
Bemærk
-
Ingen ungdomsgrupper efter anmodning
-
Rygning er forbudt
-
-
Indretning
-
Antal voksne inkl. 4-11 år8
-
Bebygget areal86 m²
-
Byggeår1987
-
Ferielejlighed
-
Frysekapacitet (antal liter)10
-
Husdyr1
-
Højstol1
-
Vaskemaskine1
-
-
Køkken
-
Antal keramiske kogeplader4
-
Køleskab1
-
Mikrobølgeovn1
-
Opvaskemaskine1
-
Varmluftovn1
-
-
Multimedier
-
> 3 tyske kanaler
-
0-3 danske kanaler
-
Antal tv'er1
-
DVD1
-
Radio
-
Stereo sæt
-
Trådløst internet
-
-
Soveforhold
-
Antal soveværelser3
-
Barneseng1
-
Dobbeltseng (antal sovepladser)6
-
Sovesofa, enkelt (antal sovepladser)2
-
-
Swimmingpool
-
Fælles indendørs swimmingpool
-
-
Toilet og bad
-
Antal badeværelser1
-
Antal toiletter1
-
Brusekabine
-
-
Udenfor
-
Butik1,1 km
-
Golfbane50 m
-
Hav2,3 km
-
Natursted
-
Parkeringsplads ved huset
-
Størrelse af grunden200 m²
-
Terrasse30 m²
-
Vadehavet500 m
-
Priser og kalender
Kalender
Ankomst
-
februar 2026
ma ti on to fr lø sø 5 1 6 2 3 4 5 6 7 8 7 9 10 11 12 13 14 15 8 16 17 18 19 20 21 22 9 23 24 25 26 27 28 10 -
marts 2026
ma ti on to fr lø sø 9 1 10 2 3 4 5 6 7 8 11 9 10 11 12 13 14 15 12 16 17 18 19 20 21 22 13 23 24 25 26 27 28 29 14 30 31
Se om emnet er ledigt på den valgte dato
Ledig
Optaget
Ankomst mulig
Varighed
Pris
Periode
- Ankomst
- Afrejse
- Varighed
Personer
Op til 8 personer
Bemærk
Kan ikke bookes på nuværende tidspunkt.