Lyst rækkehus med havudsigt i Havneby

Ferielejlighed - 6 personer - Blåklokkevej - Havneby - 6792 - Rømø

6 personer
Emne nr.: 037-1648
7 overnatninger
Fra DKK 3.790,-
Inkl. rengøring og forsikring
6 personer
Nyd en lys og moderne ferielejlighed i Havneby med havudsigt og gode aktiviteter ved Enjoy Resorts Rømø.
  • Soverum 2
  • Badeværelser 1
  • Boligareal 112 m²
  • Grundareal 112 m²
  • Husdyr Ikke tilladt
  • Tilbyder miniferie Ja
  • Afstand vand 200 m
  • Afstand indkøb 1 km
  • Highspeed internet Ja
  • Parabol/kabel TV Ja
  • Brændeovn Ja
  • Udsigt til vand Ja
  • Vaskemaskine Ja
  • Tørretumbler Ja
  • Opvaskemaskine Ja
  • Ikkeryger Ja
  • Ladestander til elbil Ja

Beskrivelse

I får en skøn ramme om feriedagene, når I tilbringer dem i dette lyse og lækre rækkehus i Havneby. Det ligger som del af feriebyen ved Enjoy Resorts Rømø, som byder på masser af gode aktivitetsmuligheder og skønne naturomgivelser.

Velkommen indenfor
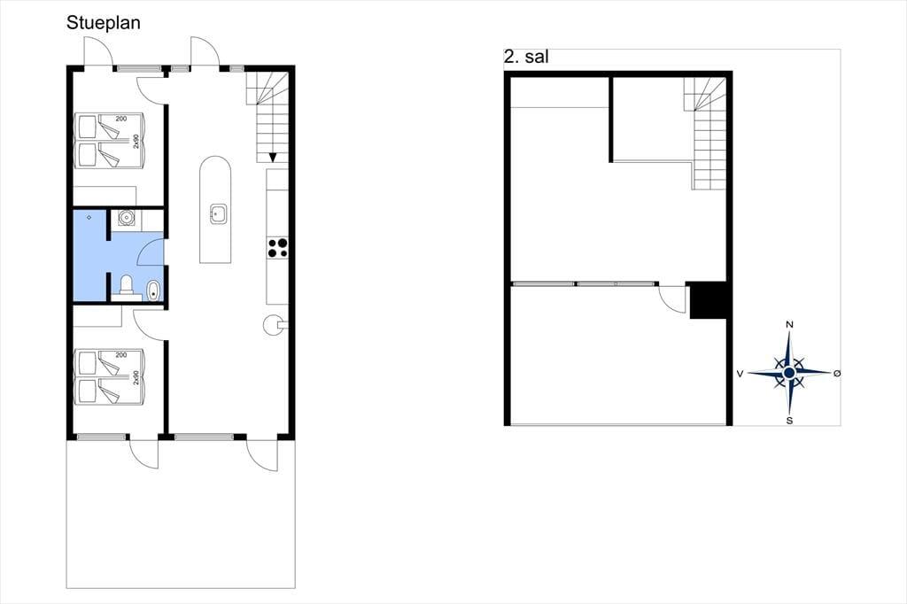
Huset er et kvalitetsbyggeri fra 2007, som er indrettet på flot og funktionel vis. Her er to plan at brede sig på, og såvel stueplan som førstesalen er udstyret med store vinduespartier, der inviterer masser af sollys indenfor. Stueplan byder på et lækkert badeværelse og to rummelige soveværelser, der begge er indrettet med dobbeltseng. Alle rum i stueplan har gulvvarme – også opholdsrummet, hvor stue og køkken er forenet på elegant vis. Her kan I hygge jer med at kokkerere i den veludstyrede køkkenafdeling, og efterfølgende kan de veltilberedte lækkerier serveres ved spisebordet nær indbygningspejsen. Får I lyst til at se film og slænge jer i en komfortabel sofa, kan I rykke det gode selskab op i førstesalens dejlige udsigtsstue. Stuen byder for øvrigt på to sovesofaer, så der er også mulighed for at rede op her på etagen.

Nyd livet udenfor
Både oppe og nede kan I træde lige ud i det fri, når vejret indbyder til udendørs driverliv. Der er både en nordvendt og en sydvendt terrasse at vælge imellem, hvis ikke I foretrækker førstesalens store altan. Den er også orienteret mod syd, så den ligger godt i forhold til solen, og til den ene side kan I nyde synet af Vadehavet.

Kom tæt på de lokale oplevelser
Netop Vadehavet er en af de naturskønne attraktioner på Rømø. Det store tidevandsområde, som er optaget på UNESCO’s verdensarvsliste, kan opleves på mange måder: For eksempel kan I pakke kikkerten for at se nærmere på det rige fugleliv eller tage på guidet tur for at smage på østers og muslinger plukket direkte fra havbunden. Hvis I vil bade, kan det anbefales at tage til Sønderstrand, som er Nordeuropas bredeste strand. Restauranter er der et godt udvalg af i Havneby, og hvis I har lyst til spabad, fitness eller bowling, kan I mod betaling benytte jer af Enjoy Resorts Rømøs faciliteter. Golfinteresserede skal heller ikke snyde sig selv for at besøge Rømø Golfklub, som råder over en Pay & Play-bane på ni huller samt en flot 18-hullers linksbane.

Nogle af aktiviteter for børn er gratis Mod betaling masser af muligheder for svømning i badeområdet, wellness, golf, bowling samt restaurant i centerbygningen tæt på lejlighederne.

Vores gæsteanmeldelser Eksterne anmeldelser

4,7
Baseret på 3 vurderinger
Sidste vurdering fra d. 17-10-2021
5
(2)
4
(1)
3
(0)
2
(0)
1
(0)
Kommentarer
Ingen vurderinger har kommentarer på dansk
1 vurdering har kommentar på et andet sprog.

Faciliteter

  • Hus Info

    • Antal voksne
      6
    • Bruser
    • Byggeår
      2007
    • Grundareal / Fælles grund
      112 m²
    • Havudsigt
    • Husareal
      112 m²
    • WC
  • Afstande

    • Afstand golfbane
      50 m
    • Afstand indkøb / Helårsbutik
      1 km
    • Afstand restaurant
      100 m
    • Afstand strand / Sandstrand
      3 km
    • Afstand til fælles legeplads
      450 m
    • Afstand vadehav
      200 m
  • Energi / Opvarmning

    • Brændeovn
    • Elvarme
  • Hårde hvidevarer

    • Elkedel
    • Emhætte
    • Fryser
      10
    • Kaffemaskine
    • Kogeplader
    • Køleskab
    • Opvaskemaskine
    • Ovn
    • Strygebræt
    • Strygejern
    • Tørretumbler
    • Vaskemaskine
  • Multimedier

    • Chromecast
    • Dansk tv
    • Gratis Wi-Fi - Over 20 Mbit
    • Kabel-TV
    • Norsk TV
    • Svensk TV
    • TV
    • Tysk TV
  • Ekstra

    • Barnestol
    • Golfferie
    • Vandrevenlig
  • Udenfor

    • Havemøbler
    • Liggestole
      2
    • Parkering på grunden
    • Terrasse
  • Diverse

    • 2 x Dobbeltseng 180 x 200
    • 2 x Sovesofa enkelt
      140 x 200
    • 5 x Gulvvarme
    • Afmærkede vandreruter i nærheden
  • Regler

    • Husdyr ikke tilladt
    • Opladning af elbil tilladt / CEE-stik med 16 ampere forefindes, medbring kabel
    • Rygning ikke tilladt
  • Pris inklusiv

    • Slutrengøring inkl.
  • GAMMEL

    • Allergivenlig

Miniferie

Der er mulighed for miniferie hele året.

Priser og kalender

Kalender

Ankomst
Næste
  • februar 2026
    mationtofr
    51
    62345678
    79101112131415
    816171819202122
    9232425262728
    10
  • marts 2026
    mationtofr
    91
    102345678
    119101112131415
    1216171819202122
    1323242526272829
    143031
   Se om emnet er ledigt på den valgte dato
Ledig
Optaget
   Ankomst mulig
Varighed
Personer

Pris

Periode
Ankomst
Afrejse
Varighed
1 uge
Personer
Ingen personer er valgt

Bemærk

Ankomst er ikke valgt.
Der er ikke valgt personer.
Aftale- og lejebetingelser