Hyggeligt sommerhus med pool og sportsfaciliteter

Ferielejlighed - 6 personer - Vestergade 227 Ap. - Havneby - 6792 - Rømø

6 personer
Emne nr.: 037-0456
Hyggeligt sommerhus i Havneby med adgang til pool, minigolf og sportsfaciliteter i Rim Rømø Feriecenter.
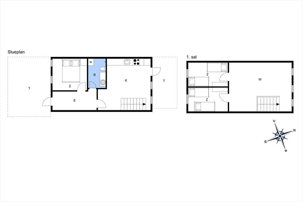
  • Soverum 3
  • Badeværelser 1
  • Boligareal 88 m²
  • Grundareal 200 m²
  • Husdyr Ikke tilladt
  • Tilbyder miniferie Ja
  • Afstand vand 500 m
  • Afstand indkøb 700 m
  • Fælles indendørs swimmingpool Ja
  • Highspeed internet Ja
  • Opvaskemaskine Ja
  • Ikkeryger Ja
  • Inklusiv forbrug Ja

Beskrivelse

Det er meget sandsynligt, at både børn og voksne vil bede om at komme igen en anden gang, når I først har holdt ferie i dette fine sommerhus i Havneby. Selve sommerhuset har en lys atmosfære og er omgivet af to dejlige terrasser – og så ligger det centralt i Rim Rømø Feriecenter, hvilket giver jer adgang til svømmebassiner, minigolf, fitnessrum, sportsbaner og meget mere.

Velkommen indenfor
Når du og din familie har adgang til så mange fællesfaciliteter, vil de sikkert blive flittigt brugt i løbet af ferien – men der er nu også god grund til at blive hjemme i sommerhuset for at hygge igennem med børnevenlige brætspil, rolige læsestunder, velsmagende middage og filmaftener tilbageslængt i sofaen. Sommerhuset er mere præcist et rækkehus i to plan, og mens der er køkken-alrum, badeværelse og et soveværelse i stueetagen, byder førstesalen på en opholdsstue og yderligere to soveværelser. Med sådan en planløsning kan I fint være op til seks personer, og uanset hvor I opholder jer, er atmosfæren lys og let.

Nyd livet udenfor
Hvis du ikke allerede er i feriestemning, kommer du det helt sikkert, når du sætter dig med en god kop kaffe en solbeskinnet morgen på terrassen. Hele dagen ligger foran dig, og det er helt op til dig og dit selskab, om I bare vil dase her i havemøblerne, eller om I ud for at udforske hele Rømø i det gode vejr. Den store sydvendte terrasse er delvist afskærmet, og træterrassen på den anden side af huset har også et hegn ind mod naboerne, men ellers er der åbent, så børnene nemt kan smutte ud på de grønne fællesarealer og videre rundt i feriecentret.

Kom tæt på de lokale oplevelser
Huset ligger centralt i feriecentret, så uanset om du vil udfordre familien i minigolf, tennis eller basket, kan I hurtigt være fremme. Nogle af Rim Rømøs faciliteter kan benyttes mod betaling, men mange er helt gratis for lejere af huset – blandt andet legepladserne, fitnessrummet og svømmebassinerne, hvoraf sidstnævnte findes både i indendørs og udendørs udgaver. Vil du også have en dukkert i Vesterhavet, er det oplagt at køre til Lakolk Strand på Rømøs vestkyst. Den nærliggende Sønderstrand er selvfølgelig også et besøg værd, og her er der mulighed for at prøve både hesteridning og den sjove strandsport blokart. I Havneby finder du supermarked, butikker og restauranter, og blandt andet fra havnen kan du nyde udsigten over Vadehavet.


Rumindretning

  • Soveværelse
    • Enkelt seng - 90 x 200
    • Enkelt seng - 90 x 200
  • Soveværelse
    • Dobbeltseng - 160 x 200
  • Soveværelse
    • Enkelt seng - 90 x 200
    • Enkelt seng - 90 x 200

Vores gæsteanmeldelser Eksterne anmeldelser

4,8
Baseret på 4 vurderinger
Sidste vurdering fra d. 20-10-2025
5
(3)
4
(1)
3
(0)
2
(0)
1
(0)
Kommentarer
Ingen vurderinger har kommentarer.

Faciliteter

  • Hus Info

    • Antal voksne
      6
    • Bruser
    • Byggeår
      1988
    • Fælles Pool / Indendørs Pool
    • Grundareal / Fælles grund
      200 m²
    • Husareal
      88 m²
    • WC
  • Afstande

    • Afstand golfbane
      100 m
    • Afstand indkøb / Helårsbutik
      700 m
    • Afstand strand / Sandstrand
      2,5 km
    • Afstand til fælles legeplads
      100 m
    • Afstand vadehav
      500 m
  • Energi / Opvarmning

    • Elvarme
  • Hårde hvidevarer

    • Elkedel
    • Emhætte
    • Fryser
      37
    • Kaffemaskine
    • Komfur
    • Køleskab
      169
    • Mikroovn
    • Opvaskemaskine
    • Ovn
  • Multimedier

    • Dansk tv
    • Gratis Wi-Fi - Over 20 Mbit
    • TV
    • Tysk TV
  • Ekstra

    • Barnestol
    • Golfferie
  • Udenfor

    • Fælles parkering
    • Grill
    • Gynge
    • Havemøbler
    • Parasol
    • Sandkasse
    • Terrasse
  • Diverse

    • Afmærkede vandreruter i nærheden
  • Regler

    • Husdyr ikke tilladt
    • Opladning af elbil ikke tilladt
    • Rygning ikke tilladt
  • Pris inklusiv

    • Forbrug inkl.
    • Slutrengøring inkl.
    • Strøm inkl.
    • Vand inkl.

Miniferie

Der er mulighed for miniferie hele året.

Priser og kalender

Kalender

Ankomst
Næste
   Se om emnet er ledigt på den valgte dato
Ledig
Optaget
   Ankomst mulig
Varighed

Pris

Periode
Ankomst
Afrejse
Varighed
1 uge
Personer
Op til 6 personer

Bemærk

Ankomst er ikke valgt.
Aftale- og lejebetingelser