Flot ferielejlighed med udsigt ved Havneby

Ferielejlighed - 6 personer - Nordre Havnevej - Havneby - 6792 - Rømø

6 personer
Emne nr.: 037-0245
7 overnatninger
Fra DKK 4.680,-
Inkl. rengøring, forsikring og forbrug
6 personer
Flot ferielejlighed i Havneby med Vadehavsudsigt og central beliggenhed ved torvet.
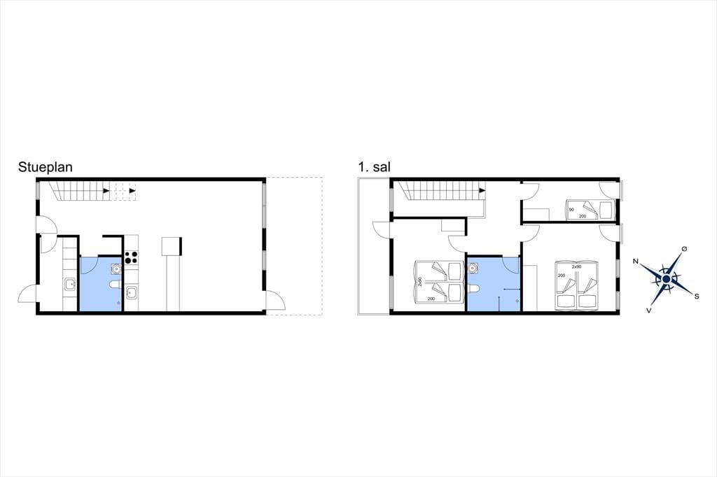
  • Soverum 3
  • Badeværelser 2
  • Boligareal 124 m²
  • Grundareal 124 m²
  • Husdyr 3
  • Tilbyder miniferie Ja
  • Afstand vand 50 m
  • Afstand indkøb 25 m
  • Highspeed internet Ja
  • Parabol/kabel TV Ja
  • Brændeovn Ja
  • Udsigt til vand Ja
  • Vaskemaskine Ja
  • Tørretumbler Ja
  • Opvaskemaskine Ja
  • Ikkeryger Ja
  • Inklusiv forbrug Ja

Beskrivelse

Som regel må man vælge, om man vil bo med flot natur lige udenfor døren eller centralt nær restauranter og hyggeligt byliv. Men her får I begge dele! Denne flotte ferielejlighed ligger nemlig lige ud til Havnebys hyggelige torv, og fra førstesalens altan har I en skøn udsigt over Vadehavet.

Velkommen indenfor
Den attraktive beliggenhed er bestemt ikke eneste kvalitet ved lejligheden, for den er nemlig et rummeligt og særdeles velindrettet eksemplar i to plan. På begge etager inviterer de store vinduespartier masser af dagslys indenfor, hvilket også bidrager til den gode rumfornemmelse. Alle rum er smagfuldt indrettet – inklusiv de to badeværelser, som er fornuftigt placeret både oppe og nede. Ferieboligens tre soveværelser, som ligger samlet på førstesalen, kan huse fem feriegæster, og derudover er der en sovesofa til rådighed. Den er placeret i stuen, som er et stort og herligt rum med integreret køkken, biopejs, Smart-tv og andre lækre detaljer.

Nyd livet udenfor
Fra stuen kan I træde direkte ud på en stor og sydvendt altan. Her kan I sidde og følge med i livet på byens centrale torv, mens I nyder solskinnet og læner jer tilbage i havestolene. En anden dejlig udendørs opholdsplads er førstesalens altan, som byder på en fantastisk Vadehavsudsigt.

Kom tæt på de lokale oplevelser
Ferieboligen er placeret i det moderne lejlighedskompleks Skansen, som ligger lige ud til Havnebys torv. Et supermarked og flere butikker er også placeret her, og ganske tæt på kan I finde et godt udvalg af spisesteder, fiskeudsalg, golfbane, wellness, cykeludlejning og meget mere. Hvis I spadserer ned på havnen, kan I følge med i, hvordan fiskekutterne kommer ind til land, og hvis I har lyst til en udflugt, kan I tage færgen til List på ferieøen Sild. I kan også bare blive på kajen og skue ud over det smukke Vadehav, som er optaget på UNESCO’s verdensarvsliste. Der er desuden mange andre skønne naturoplevelser i vente på Rømø, inklusiv de storslåede sandstrækninger ved Lakolk Strand og Sønderstrand. Her er godt at bade – men hvis I foretrækker en indendørs svømmetur, er det oplagt at tage til fastlandet, hvor I har gratis adgang til badelandet i Skærbækcentret.

Vores gæsteanmeldelser Eksterne anmeldelser

4,0
Baseret på 2 vurderinger
Sidste vurdering fra d. 22-04-2025
5
(0)
4
(2)
3
(0)
2
(0)
1
(0)
Kommentarer
1 vurdering har kommentar på dansk.
5 voksne 0 børn 0 husdyr 2 overnatninger 2024 maj
Dejlig stor, lys og udsigt ud over vandet

Faciliteter

  • Hus Info

    • 2 x Bruser
    • 2 x WC
    • Antal husdyr
      3
    • Antal voksne
      6
    • Byggeår
      2009
    • Grundareal / Fælles grund
      124 m²
    • Havudsigt
    • Husareal
      124 m²
  • Afstande

    • Afstand golfbane
      800 m
    • Afstand indkøb / Helårsbutik
      25 m
    • Afstand restaurant
      50 m
    • Afstand strand / Sandstrand
      2 km
    • Afstand vadehav
      50 m
  • Energi / Opvarmning

    • Centralvarme
    • Pejs
  • Hårde hvidevarer

    • Elkedel
    • Emhætte
    • Fryser
      52
    • Kaffemaskine
    • Kogeplader
      4
    • Køleskab
    • Mikroovn
    • Opvaskemaskine
    • Ovn
    • Tørretumbler
    • Vaskemaskine
  • Multimedier

    • Dansk tv
    • Gratis Wi-Fi - Over 20 Mbit
    • Kabel-TV
    • Norsk TV
    • Svensk TV
    • TV
      55" SmartTV
    • Tysk TV
  • Ekstra

    • Barneseng
    • Barnestol
    • Golfferie
    • Vandrevenlig
  • Udenfor

    • Balkon
    • Fælles parkering
    • Grill
      Gasgrill
    • Havemøbler
    • Liggestole
      1
    • Parasol
  • Diverse

    • 2 x Dobbeltseng 180 x 200
    • 2 x Gulvvarme
    • Afmærkede vandreruter i nærheden
    • Enkeltseng 90 X 200
    • Sovesofa enkelt
      140 x 200
  • Regler

    • Husdyr: alle slags husdyr tilladt
    • Opladning af elbil ikke tilladt
    • Rygning ikke tilladt
  • Pris inklusiv

    • Forbrug inkl.
    • Gratis adgang til Badeland / Svømmehal / Skærbæk Svømmehal
    • Slutrengøring inkl.
    • Strøm inkl.
    • Vand inkl.

Miniferie

Der er mulighed for miniferie hele året.

Priser og kalender

Kalender

Ankomst
Næste
  • februar 2026
    mationtofr
    51
    62345678
    79101112131415
    816171819202122
    9232425262728
    10
  • marts 2026
    mationtofr
    91
    102345678
    119101112131415
    1216171819202122
    1323242526272829
    143031
   Se om emnet er ledigt på den valgte dato
Ledig
Optaget
   Ankomst mulig
Varighed
Personer

Pris

Periode
Ankomst
Afrejse
Varighed
1 uge
Personer
Ingen personer er valgt

Bemærk

Ankomst er ikke valgt.
Der er ikke valgt personer.
Aftale- og lejebetingelser