Charmerende sommerhus med to terrasser på Fanø

Sommerhus - 6 personer - Vesten Bavnen - Fanø Bad - 6720 - Fanø

6 personer
Emne nr.: 328-134469
Charmerende sommerhus på Fanø Bad med to terrasser, udestue og plads til hund. Renoveret i 2022, tæt på strand og indkøb.
  • Soverum 3
  • Badeværelser 1
  • Boligareal 120 m²
  • Grundareal 2.130 m²
  • Husdyr 1
  • Tilbyder miniferie Nej
  • Afstand vand 1.200 m
  • Afstand indkøb 900 m
  • Internet Ja
  • Vaskemaskine Ja
  • Tørretumbler Ja
  • Opvaskemaskine Ja
  • Ikkeryger Ja
  • Energivenligt Ja

Beskrivelse

Godt gemt i det grønne venter dette sommerhus på Vester Bavnen 44, der i foråret 2022 er blevet renoveret, på at byde jer velkommen. Fordelt på de 120 m2 er der rigeligt plads til 6 personer og jeres hund, så om det er ferie for den lille familie eller et par venner, så kan I her slappe godt af og nyde en dejlig stund ved Vadehavet.

Lækre åbne terrasser med gode møbler til udendørs hygge

Dette typisk danske feriehus er det perfekte match for jer, der leder efter et frirum væk fra hverdagens jag. Feriehuset er beliggende på en fin naturgrund, godt gemt bag træer og buske, som sørger for afskærmning. Her har I masser af muligheder for at finde et solrigt tilflugtssted på en af de 2 flotte træterrasser. Nyd morgenkaffen på den østvendte terrasse, og ryk senere på dagen om på den sydvendte terrasse – her er der garanti for en solrig plet.

På terrassen står havemøbler, solvogne og en grill til rådighed, så I rigtigt kan nyde uderummet og flytte ferietilværelsen udenfor på de skønne solskinsdage. Den gode beliggenhed på Vesten Bavnen 44 giver jer den perfekte placering, hvis I længes efter ro og afslapning.

Smuk lys udestue, 3 soveværelser og badeværelse med gulvvarme

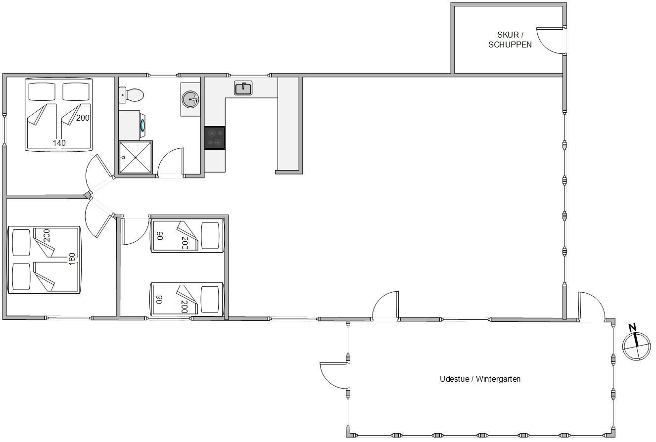
Her har I en rigtig god base for ø-ferie på skønne Fanø. Feriehuset er indrettet med et stort opholdsrum med køkken, spiseplads og stue i et, så hele familien her kan samles og være sammen. I råder her over 3 soveværelser, hvoraf 2 er udstyret med brede dobbeltsenge (180 x 200), og det tredje er udstyret med 2 enkeltsenge på 80x200, der er velegnet til både børn og voksne.

Derudover har I et badeværelse og en fantastisk udestue, hvor I selv på regnvejrs- og kolde dage kan nyde den skønne natur.

Faciliteter i form af opvaskemaskine, vaskemaskine, tørretumbler og en energibesparende varmepumpe, som sikrer en hurtig og effektiv opvarmning af feriehuset, sørger for god komfort under hele jeres ophold.

Fanø Bad - skøn lille badeby på Fanø

Blot små 900 meter fra sommerhuset ligger et supermarked, hvor I kan købe frisk brød og dagligvarer. Derudover ligger der i Nordby et større supermarked, som er velassorteret og også byder på specialiteter fra Fanø. Nordby er bestemt værd at tage en gå- eller cykeltur igennem, da den lille idylliske by byder på mange hyggelige butikker, caféer og restauranter, der er godt gemt i de små gader.

Nærmeste strand er Fanø Bad. Den endeløse sandstrand strækker sig helt Sønderho i syd og er et sandt mekka for friluftsmennesker. Her er der masser af plads til ravsamlere, boldspillere, ryttere, drage- og windsurfere og selvfølgelig de badende gæster, der længes efter en tur i bølgen blå. Stranden er tilgængelig i bil fra Fanø Bad, så har I småbørn eller dårligt gående med på ferien, kan de også nemt komme med på stranden.

Glæd jer til et skønt sommerhus midt på Fanø, som kan nås med færge fra Esbjerg på få minutter. Velkommen til skønne Fanø!

Vores gæsteanmeldelser Eksterne anmeldelser

5,0
Baseret på 1 vurdering
Vurderet d. 25-06-2023
5
(1)
4
(0)
3
(0)
2
(0)
1
(0)
Kommentarer
1 vurdering har kommentar på dansk.
2 voksne 0 børn 1 husdyr 7 overnatninger 2023 juni
Dog lidt besværligt at der ikke var fryseboks i huset men i udhuset.

Faciliteter

  • Opholdsrum

    • Gulv: Trælaminat
    • Fladskærms-TV
      1
    • Ekstra varmekilder
  • Soverum

    • Gulv: Trælaminat
    • Dobbeltsenge
      2
    • Enkeltsenge
      2
    • Sovepladser
      6
    • Soverum
      3
    • 1. soverum/sengestørrelser
      180X200
    • 2. soverum/sengestørrelser
      180X200
    • 3. soverum/sengestørrelser
      2x80x200
  • Køkken

    • Komfur: Induktion m. ovn
    • Køleskab
    • Opvaskemaskine
    • Separat fryser /L
      100
  • Baderum

    • Gulvvarme bad
    • Antal badeværelser
      1
  • Objektinfo - Inde

    • Areal: Hus m²
      120
    • Byggeår
      1972
    • Barnestol
      1
    • Husdyr tilladt
    • Husdyr antal, max
      1
    • Ikke ryger hus
    • Gratis Internet
    • Personantal
      6
    • Renoveret
      2022
    • Danske TV-kanaler (Betalingskanaler)
    • Tyske tv-programmer
    • Tørretumbler
    • Varme: Elvarme
    • Varme: Varmepumpe luft til luft
    • Vaskemaskine
    • Udestue
  • Objektinfo - ude

    • Afstand i meter: Hav
      1,2 km
    • Afstand i meter: Indkøb
      900 m
    • Grundens areal i m2
      2130
    • Grill
    • Havemøbler
    • Solvogne
    • Parasol
    • Terrasse: åben
    • Naturgrund
    • Plænegrund
    • Affald hentes:
      Mandag ulige uger
    • Affald: Helårstømning
    • Skraldespand - Liter
      140
  • Koncepter

    • Skiftedag: Søndag
    • Vandaflæsning
  • Miniferie

    • Ja, tak - tillad miniferie

Priser og kalender

Kalender

Ankomst
Næste
  • april 2026
    mationtofr
    1412345
    156789101112
    1613141516171819
    1720212223242526
    1827282930
    19
  • maj 2026
    mationtofr
    18123
    1945678910
    2011121314151617
    2118192021222324
    2225262728293031
    23
   Se om emnet er ledigt på den valgte dato
Ledig
Optaget
   Ankomst mulig
Varighed

Pris

Periode
Ankomst
Afrejse
Varighed
1 uge
Personer
Op til 6 personer

Bemærk

Ankomst er ikke valgt.
Aftale- og lejebetingelser