Hyggeligt sommerhus med terrasse nær stranden

Sommerhus - 7 personer - Blishønevej - Agger - 7770 - Vestervig

7 personer
Emne nr.: 089-408
Oplev et hyggeligt sommerhus i Agger med brændeovn og stor terrasse tæt på strand og natur.
  • Soverum 3
  • Badeværelser 1
  • Boligareal 107 m²
  • Grundareal 1.251 m²
  • Husdyr Ikke tilladt
  • Tilbyder miniferie Ja
  • Afstand vand 1 km
  • Afstand indkøb 950 m
  • Highspeed internet Ja
  • Parabol/kabel TV Ja
  • Brændeovn Ja
  • Aircondition Ja
  • Vaskemaskine Ja
  • Opvaskemaskine Ja
  • Ikkeryger Ja
  • Ladestander til elbil Ja
  • Energivenligt Ja

Beskrivelse

Føl dig hjemme i dette smagfuldt indrettede sommerhus på Blishønevej 18 i Agger. Her får du en fredfyldt base med charme, hygge og nærhed til både naturen og områdets mange oplevelser.

Velkommen indenfor

Træd indenfor og lad den varme atmosfære omfavne dig. Dette sommerhus er designet med fokus på hygge og funktionalitet, hvilket tydeligt mærkes i det smagfulde interiør. Brændeovnen bliver hurtigt det naturlige samlingspunkt, hvor du kan nyde aftener med ildens knitren og den behagelige varme, der spreder sig i rummet. De lyse og indbydende opholdsrum skaber rammerne for kvalitetstid med familien eller gode venner. Sommerhuset rummer plads til 7 personer og er perfekt til både små og større grupper, der ønsker en afslappende ferie i komfortable omgivelser.

Nyd livet udenfor

Sommerhuset ligger på en stor og velholdt grund, der indbyder til leg, afslapning og nærvær i det fri. Terrassen, som strækker sig rundt om huset, er det oplagte sted at nyde en stille morgen med friskbrygget kaffe eller en hyggelig grillaften med udsigt til solnedgangen. Med husets placering tæt på naturen vil du hurtigt opleve, hvordan fuglesang og duften af havet skaber en helt særlig ro og ferieidyl. På plænen kan børnene boltre sig, mens de voksne nyder solen eller læser en god bog i en afkrog af haven.

Kom tæt på de lokale oplevelser

Blishønevej 18 er ideelt placeret i den charmerende by Agger, som ligger midt i Nationalpark Thy. Her er du tæt på både Vesterhavets brusende bølger og Flade Sø, hvor du kan tage på afslappende vandreture eller cykelture i det naturskønne område. Er du til surfing, ligger Krik Vig lige i nærheden, og golfentusiaster finder Sydthy Golfklub blot en kort køretur væk. Agger by byder også på gode spisesteder, og hvis du ønsker en gourmetoplevelse ud over det sædvanlige, ligger Michelin-restauranten TRI lige i nærheden. Stranden er blot en kort gåtur væk og indbyder til alt fra badeture til forfriskende gåture i sandet.

Husk, at du altid kan låne trækvogne, barnestole og barnesenge hos os i . Du kan hente dem direkte på bureauet og returnere dem til os igen, når din ferie er vel overstået.



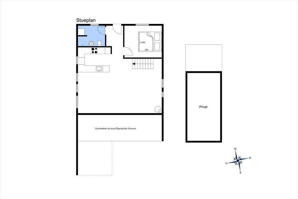
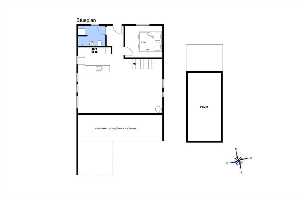
Rumindretning

  • Soveværelse
    • Dobbeltseng - 1x180x200
  • Soveværelse
    • Enkelt seng - 1x90x200
    • Enkelt seng - 1x90x200
  • Soveværelse
    • Dobbeltseng - 1x180x200
  • Badeværelse
  • Køkken
  • Stue
  • Alkove
    • Enkelt seng - 1x120x200

Faciliteter

  • Hus Info

    • Antal voksne
      7
    • Bruser
    • Byggeår
      1977
    • Grundareal / Naturgrund
      1251 m²
    • Husareal
      107 m²
    • Renoveringsår
      2023
    • WC
  • Afstande

    • Afstand golfbane
      9,6 km
    • Afstand indkøb
      950 m
    • Afstand restaurant
      850 m
    • Afstand strand / Sand-/stenstrand
      1 km
  • Energi / Opvarmning

    • Brændeovn
      Pilleovn
    • Elvarme
    • Varmepumpe / Med køl
  • Hårde hvidevarer

    • Elkedel
    • Emhætte
    • Kaffemaskine
    • Kogeplader
      Gas
    • Køleskab med frys
    • Mikroovn
    • Opvaskemaskine
    • Ovn
    • Vaskemaskine
  • Multimedier

    • Chromecast
      Indbygget i TV
    • Dansk tv
    • Gratis Wi-Fi - Over 100 Mbit
    • Parabol
    • TV
    • Tysk TV
      Kun et par tyske programmer
  • Ekstra

    • Barnestol
    • Golfferie
    • Vandrevenlig
  • Udenfor

    • Delvis overdækket terrasse
    • Havemøbler
    • Liggestole
      2
    • Parasol
      1
    • Parkering på grunden
    • Åben terrasse
  • Diverse

    • Afmærkede vandreruter i nærheden
    • Tørrestativ / Tørresnor
  • Regler

    • Husdyr ikke tilladt
    • Opladning af elbil tilladt / Lader til elbil forefindes (Type 2-stik, medbring kabel)
    • Rygning ikke tilladt
  • Pris inklusiv

    • Gratis adgang til aktiviteter / Tennis
    • Gratis adgang til Badeland / Svømmehal / Sydthy Svømmebad og Thyhallens Svømmecenter
    • Slutrengøring inkl.

Miniferie

Der er begrænset mulighed for miniferie hele året, typisk uden for højsæsonen.

Priser og kalender

Kalender

Ankomst
Næste
   Se om emnet er ledigt på den valgte dato
Ledig
Optaget
   Ankomst mulig
Varighed

Pris

Periode
Ankomst
Afrejse
Varighed
1 uge
Personer
Op til 7 personer

Bemærk

Ankomst er ikke valgt.
Aftale- og lejebetingelser