Alternative emner
Moderniseret sommerhus i skov ved Virksund
Sommerhus - 6 personer - Livøvej - Virksund - 7840 - Højslev
6 personer
Emne nr.: 121-34-2078
Moderniseret sommerhus i roligt skovområde ved Virksund med nærhed til fjord og natur.
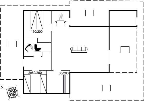
- Soverum 3
- Badeværelser 1
- Boligareal 72 m²
- Grundareal 3.414 m²
- Husdyr 1
- Tilbyder miniferie Ja
- Afstand vand 250 m
- Afstand indkøb 6 km
- Internet Ja
- Brændeovn Ja
- Opvaskemaskine Ja
- Ikkeryger Ja
- Energivenligt Ja
Beskrivelse
Sommerhuset er beliggende i det attraktive sommerhusområde Virksund, der er en mindre by i naturen ved Hjarbæk Fjords udmunding og Lovns Bredning. Det er et roligt skovområde med et rigt dyreliv, hvor der er kort afstand til både Viborg, Skive og Hobro.
Der findes bl.a. en ny syd-/vestvendt og til dels overdækket terrasse.
Her får du et flot moderniseret sommerhus, der byder på privatliv samt gode muligheder for at nyde alle herlighederne ved den naturskønne beliggenhed. Her kan du benytte de gode fællesområder ned til fjorden og de skønne vandrestier, hvilket giver enestående muligheder for at bruge naturen til at være aktiv bl.a. med gå- og vandreture.
Indretning
Sommerhuset egner sig til 6 personer samt 1 barn op til 3 år. Ferieboligen er på 72 m² og er bygget i 1977. I 2024 gennemgik ferieboligen en delvis renovering. Det er tilladt at medbringe 1 husdyr. Ferieboligen er udstyret med 1 energibesparende luft til luft varmepumpe. Frysekapacitet på 20 liter. Endvidere pejs. Til de små er der 1 stk. barnestol.
Udenfor
Ferieboligen er beliggende på en 3414 m² stor grund i skov/plantage. Der er 250 m til fjorden. Nærmeste forretning er beliggende i en afstand af 6000 m. Til ferieboligen hører 70 m² terrasseareal. Desuden er der 20 m² overdækket terrasse. Parkering ved ferieboligen.
Soveforhold
Der er i alt 3 soveværelser. Sovepladserne fordeler sig på: 2 sovepladser i dobbeltseng. 2 sovepladser i enkeltsenge. 2 sovepladser i køjeseng. Derudover er der 1 stk. barneseng.
Køkken
Køkkenet er udstyret med 1 køleskab. Der er 4 keramiske kogeplader, varmluftovn, mikrobølgeovn samt opvaskemaskine.
Toilet og bad
Der er 1 badeværelse med bruseniche og 1 toilet.. Der er gulvvarme på 1 badeværelse.
Multimedier
I ferieboligen er der 1 TV.1 Chromecast.1 Bluetooth-højtaler. Der er trådløst internet til rådighed.
Værd at vide
Ingen udlejning til ungdomsgrupper, hvor alle er 15-25 år. Rygning ikke tilladt. Ved overtrædelse af forbuddet opkræves et gebyr på minimum DKK 3.000,-.
Indretning
Sommerhuset egner sig til 6 personer samt 1 barn op til 3 år. Ferieboligen er på 72 m² og er bygget i 1977. I 2024 gennemgik ferieboligen en delvis renovering. Det er tilladt at medbringe 1 husdyr. Ferieboligen er udstyret med 1 energibesparende luft til luft varmepumpe. Frysekapacitet på 20 liter. Endvidere pejs. Til de små er der 1 stk. barnestol.
Udenfor
Ferieboligen er beliggende på en 3414 m² stor grund i skov/plantage. Der er 250 m til fjorden. Nærmeste forretning er beliggende i en afstand af 6000 m. Til ferieboligen hører 70 m² terrasseareal. Desuden er der 20 m² overdækket terrasse. Parkering ved ferieboligen.
Soveforhold
Der er i alt 3 soveværelser. Sovepladserne fordeler sig på: 2 sovepladser i dobbeltseng. 2 sovepladser i enkeltsenge. 2 sovepladser i køjeseng. Derudover er der 1 stk. barneseng.
Køkken
Køkkenet er udstyret med 1 køleskab. Der er 4 keramiske kogeplader, varmluftovn, mikrobølgeovn samt opvaskemaskine.
Toilet og bad
Der er 1 badeværelse med bruseniche og 1 toilet.. Der er gulvvarme på 1 badeværelse.
Multimedier
I ferieboligen er der 1 TV.1 Chromecast.1 Bluetooth-højtaler. Der er trådløst internet til rådighed.
Værd at vide
Ingen udlejning til ungdomsgrupper, hvor alle er 15-25 år. Rygning ikke tilladt. Ved overtrædelse af forbuddet opkræves et gebyr på minimum DKK 3.000,-.
Vores gæsteanmeldelser Eksterne anmeldelser
Faciliteter
-
Adgang til ferieboligen
-
Nøgleboks med kode
-
-
Bemærk
-
Ingen håndværkere efter anmodning
-
Ingen ungdomsgrupper efter anmodning
-
Rygning er forbudt
-
-
Indretning
-
Antal børn (0-3 år)1
-
Antal voksne inkl. 4-11 år6
-
Bebygget areal72 m²
-
Byggeår1977
-
Feriebolig
-
Frysekapacitet (antal liter)20
-
Husdyr1
-
Højstol1
-
Pejs1
-
Renoveringsår2024
-
Varmepumpe
-
Varmepumpe luft til luft
-
-
Køkken
-
Antal keramiske kogeplader4
-
Køleskab1
-
Mikrobølgeovn1
-
Opvaskemaskine1
-
Varmluftovn1
-
-
Multimedier
-
Antal tv'er1
-
Bluetooth -højttaler1
-
Chromecast1
-
Trådløst internet
-
-
Soveforhold
-
Antal soveværelser3
-
Barneseng1
-
Dobbeltseng (antal sovepladser)2
-
Enkeltseng (antal sovepladser)2
-
Køjeseng (antal sovepladser)2
-
-
Toilet og bad
-
Antal badeværelser1
-
Antal toiletter1
-
Brusekabine
-
Gulvvarme1
-
-
Udenfor
-
Butik6 km
-
Fjord250 m
-
Overdækket terrasse20 m²
-
Parkeringsplads ved huset
-
Skov/plantage
-
Størrelse af grunden3414 m²
-
Terrasse70 m²
-
Miniferie
Der er begrænset mulighed for miniferie hele året, typisk uden for højsæsonen.
Priser og kalender
Kalender
Varighed
Pris
Periode
- Ankomst
- Afrejse
- Varighed
- 1 uge
Personer
Op til 6 personer
Bemærk
Ankomst er ikke valgt.