Hyggeligt energivenligt sommerhus nær fjord

Sommerhus - 5 personer - Kirkebyvej - Stauning - 6900 - Skjern

5 personer
Emne nr.: 090-54791
Velindrettet sommerhus i Stauning tæt på Ringkøbing Fjord og lokale faciliteter.
  • Soverum 2
  • Badeværelser 1
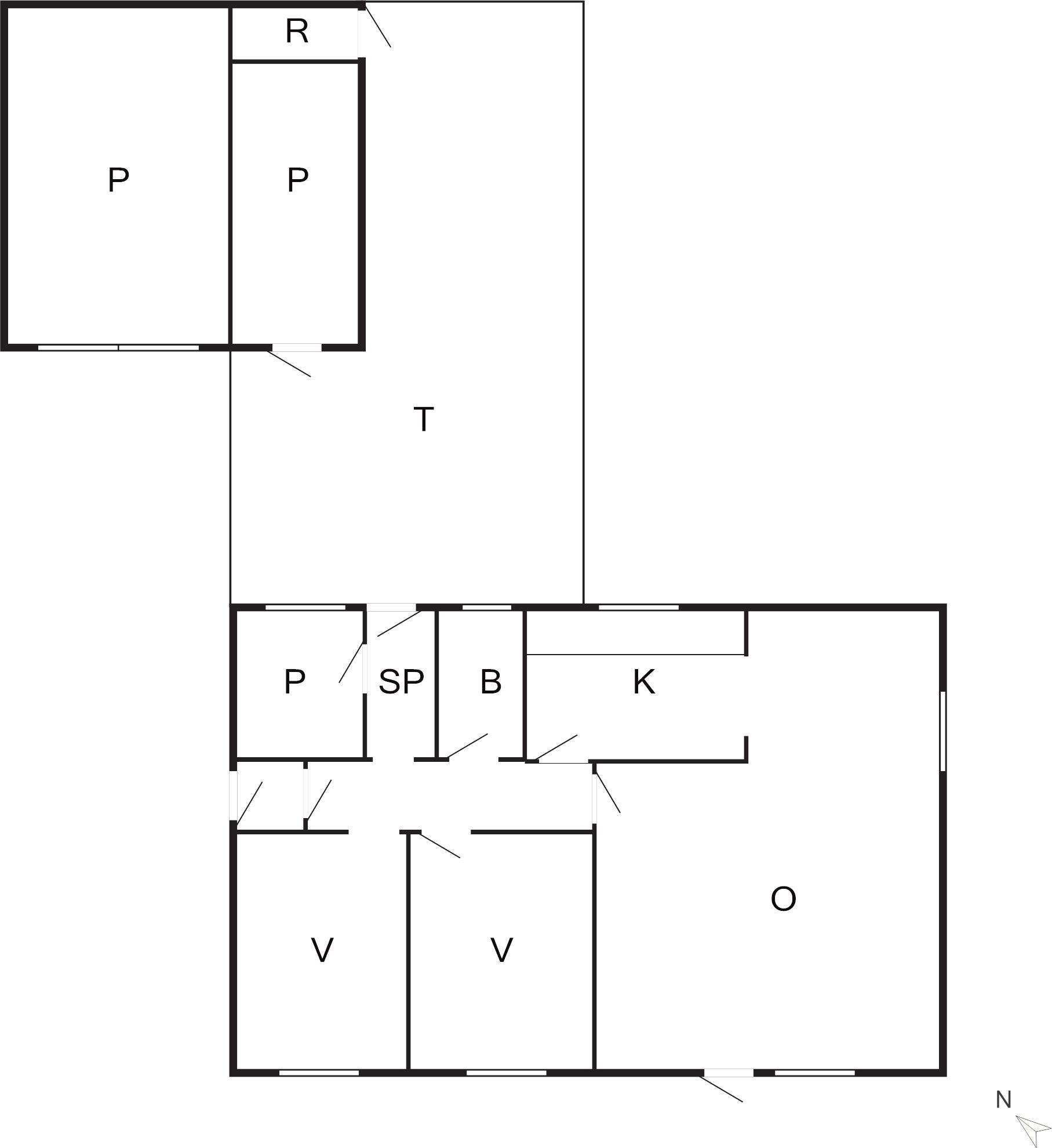
  • Boligareal 90 m²
  • Husdyr Ikke tilladt
  • Tilbyder miniferie Ja
  • Afstand vand 735 m
  • Afstand indkøb 657 m
  • Highspeed internet Ja
  • Ikkeryger Ja
  • Energivenligt Ja

Beskrivelse

Sommerhus beliggende i Stauning by kun ca. 750 meter fra Ringkøbing Fjord og ca. 600 meter fra købmanden. Huset er godt indrettet, så alle kvadratmeter udnyttes optimalt. Fra husets køkken er der åbent adgang til spise- og stueområdet. Huset har to værelser – det ene med dobbeltseng og skabsplads, det andet værelse indeholder en enkeltseng samt en sovesofa, som kan redes op til to sovepladser. Sommerhuset har en energibesparende varmepumpe. Udenfor huset er der en lukket terrasse, hvor det danske sommervejr kan nydes. Udlejes ikke til ungdomsgrupper.

1 Opholdsstue: Dvd-afspiller, tv
2 Soveværelser: (1DS)+(1S+2O)
Køkken: El-komfur, køleskab, fryser 1 - 59 l, mikroovn, kaffemaskine
Bad/wc: Wc, håndvask, bruser
1 Udeareal: Havemøbler, Terrasse
Og: El-varme, luft/luft varmepumpe, naturgrund 788 m2, byområde, ikke-ryger hus

Nøgleinformation
  • Nøglen til ferieboligen er til rådighed fra kl. 16:00 på indflytningsdagen.
  • Nøglen udleveres ved huset.
  • Dette hus er udstyret med smart lock

Vores gæsteanmeldelser Eksterne anmeldelser

Ingen gæsteanmeldelser
3,6
Møblering:
3,7
Anbefalelsesværdig:
3,5
Generelt med børn:
2,0
Generelt uden børn:
3,9
Eksterne anmeldelser
Ingen detaljerede eksterne anmeldelser

Faciliteter

  • Afstand

    • Indkøb
      657 m
    • Kyst
      735 m
    • Restaurant
      1,6 km
  • Bad

    • Bruser
    • Håndvask
    • WC
  • Diverse

    • Antal badeværelser
      1
    • Antal soveværelser
      2
    • Boligareal
      90 m²
    • Byggeår
      1966
    • Energihus
    • Højhastighedsinternet
    • Ikke ryger
    • Internet
    • Luft/luft varmepumpe
    • Nationalt tv
    • Rengøring inkluderet
    • Tysk TV
  • Indendørs

    • DVD-afspiller
    • TV
  • Køkken

    • El-komfur
    • Fryser 1 - 59 l.
    • Kaffemaskine
    • Køleskab
    • Mikroovn
  • Udendørs

    • Havemøbler
    • Terrasse

Miniferie

Der er begrænset mulighed for miniferie hele året, typisk uden for højsæsonen.

Priser og kalender

Kalender

Ankomst
Næste
   Se om emnet er ledigt på den valgte dato
Ledig
Optaget
   Ankomst mulig
Varighed

Pris

Periode
Ankomst
Afrejse
Varighed
1 uge
Personer
Op til 5 personer

Bemærk

Ankomst er ikke valgt.
Aftale- og lejebetingelser