Alternative emner
Hyggeligt sommerhus med terrasse og legeplads
Sommerhus - 6 personer - C.J. Thaningsvej - Slettestrand - 9690 - Slettestrand, Fjerritslev
6 personer
Emne nr.: 2035-536285
Hyggeligt sommerhus i Slettestrand med træbeklædning, to overdækkede terrasser og brændeovn.
- Soverum 3
- Badeværelser 1
- Boligareal 75 m²
- Grundareal 1.257 m²
- Husdyr Ikke tilladt
- Tilbyder miniferie Nej
- Afstand vand 800 m
- Afstand indkøb 3 km
- Internet Ja
- Parabol/kabel TV Ja
- Brændeovn Ja
- Ikkeryger Ja
- Energivenligt Ja
Beskrivelse
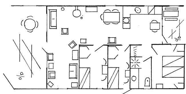
Dette er et ægte sommerhus med både træbeklædning udvendigt og indvendigt. Huset har to terrasser, en ved hoveddøren mod nord og en terrasse mod syd, begge overdækket. Huset er placeret på en nydelig grund med træer omkring. Her kan man bruge mange timer med sin familie, blandt andet ved gyngerne eller med noget boldspil.
Sommerhuset er som sagt beklædt med træ indvendigt, dog er loftet blevet lysnet, hvilket øger letheden i dette dejlige hus. Huset har et badeværelse samt 3 soveværelser. Heraf har det ene en dobbeltseng, det andet en trekvartseng og det sidste en køjeseng. Den resterende del af huset er et køkken alrum, som alligevel er delt op i 4 afdelinger. Der er det fine køkken, hvor man, gennem de åbne hylder har fin kig til spisebordet. Fra det solide spisebord, videre til en lille sofa og stol, som står klar til hygge ved den dejlige varme brændeovn. Herfra kan man se over til den store sofa, hvor der er skabt et hyggeligt tv-hjørne, hvor hele familien også kan samles. Rummet er dejligt lyst, da der er lysindfald fra tre sider. Derved kan man også se direkte igennem huset.
Sommerhuset er som sagt beklædt med træ indvendigt, dog er loftet blevet lysnet, hvilket øger letheden i dette dejlige hus. Huset har et badeværelse samt 3 soveværelser. Heraf har det ene en dobbeltseng, det andet en trekvartseng og det sidste en køjeseng. Den resterende del af huset er et køkken alrum, som alligevel er delt op i 4 afdelinger. Der er det fine køkken, hvor man, gennem de åbne hylder har fin kig til spisebordet. Fra det solide spisebord, videre til en lille sofa og stol, som står klar til hygge ved den dejlige varme brændeovn. Herfra kan man se over til den store sofa, hvor der er skabt et hyggeligt tv-hjørne, hvor hele familien også kan samles. Rummet er dejligt lyst, da der er lysindfald fra tre sider. Derved kan man også se direkte igennem huset.
Vores gæsteanmeldelser Eksterne anmeldelser
Faciliteter
-
Huset
-
Byggeår1986
-
Grundareal1257
-
Antal m275
-
Afstand til havet800 m
-
Afstand til indkøb3 km
-
Afstand restaurant700 m
-
Elvarme
-
Antal værelser3
-
Husdyr ikke tilladt
-
Aflåseligt skur
-
Max antal personer6
-
Terrasse
-
Rygning ikke tilladt
-
Husdyr efter aftale med udlejer
-
-
Opholdsrum
-
Fjernsyn
-
Brændeovn
-
Trægulv
-
-
Soverum
-
Dobbeltsenge1
-
Køjeseng1
-
Seng 140 X 2001
-
-
Køkken
-
Køleskab liter90
-
Fryser (liter)30
-
-
Baderum
-
Toiletter1
-
Badeværelser1
-
-
Diverse udstyr
-
Parabol
-
Havemøbler
-
Grill
-
Internet / Wi Fi
-
Gynger
-
-
Faciliteter
-
Legeudstyr
-
Varmepumpe
-
Gynger
-
Priser og kalender
Kalender
Ankomst
-
maj 2026
ma ti on to fr lø sø 18 1 2 3 19 4 5 6 7 8 9 10 20 11 12 13 14 15 16 17 21 18 19 20 21 22 23 24 22 25 26 27 28 29 30 31 23 -
juni 2026
ma ti on to fr lø sø 23 1 2 3 4 5 6 7 24 8 9 10 11 12 13 14 25 15 16 17 18 19 20 21 26 22 23 24 25 26 27 28 27 29 30 28
Se om emnet er ledigt på den valgte dato
Ledig
Optaget
Ankomst mulig
Varighed
Pris
Periode
- Ankomst
- Afrejse
- Varighed
- 1 uge
Personer
Op til 6 personer
Bemærk
Ankomst er ikke valgt.