Hyggeligt sommerhus ved Skærbæk Feriecenter

Sommerhus - 6 personer - Gl Ullerupvej - 6780 - Skærbæk

6 personer
Emne nr.: 090-53162
Charmerende sommerhus ved Skærbæk Feriecenter med tre soveværelser og indhegnet naturgrund.
  • Soverum 3
  • Badeværelser 1
  • Boligareal 80 m²
  • Husdyr Ikke tilladt
  • Tilbyder miniferie Ja
  • Afstand vand 4.493 m
  • Afstand indkøb 169 m
  • Highspeed internet Ja
  • Indhegnet område Ja
  • Vaskemaskine Ja
  • Opvaskemaskine Ja
  • Ikkeryger Ja

Beskrivelse

Sommerhus ved Skærbæk Feriecenter. Huset har to soveværelser med dobbeltsenge og et soveværelse med to enkeltsenge. Der er opholdsstue med TV og et veludstyret køkken. Huset ligger på en indhegnet naturgrund på 710 m2 med mulighed for at grille.

Ferieboligen ligger i Skærbæk, som kan tilbyde flere butikker og supermarkeder. Fra huset er der indenfor en afstand af 1 km., indkøb, restaurant, offentlig transport samt badeland med gratis adgang. Det er også muligt at besøge Marsktower, et udsigtstårn designet af den danske arkitekt Bjarke Ingels. Fra toppen kan I se ud over Vadehavet og på en skyfri dag kan I se helt til Tønder. Udlejes ikke til ungdomsgrupper.


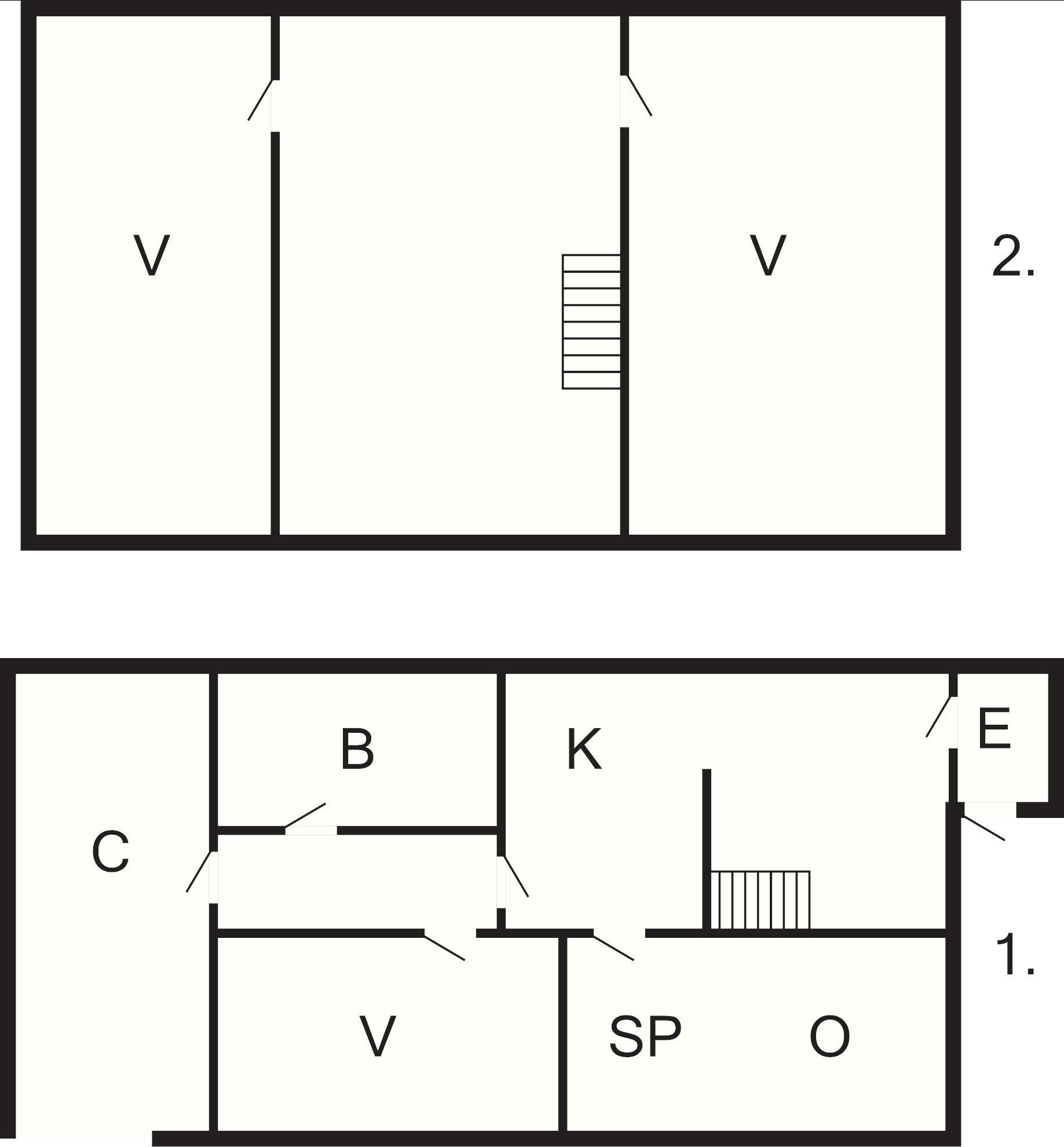
1 Opholdsstue: Tv
3 Soveværelser: (1DS)+(1DS)+(2S), barneseng
Køkken: Høj stol, el-komfur, køleskab, fryser 200 - 249 l, mikroovn, kaffemaskine, opvaskemask.
Bad/wc: Vaskemaskine, wc, håndvask, bruser
1 Udeareal: Havemøbler, kulgrill, Indhegnet grund
Og: Fjernvarme, naturgrund 710 m2, byområde, ikke-ryger hus

Vores gæsteanmeldelser Eksterne anmeldelser

4,0
Baseret på 1 vurdering
Vurderet d. 07-07-2024
5
(0)
4
(1)
3
(0)
2
(0)
1
(0)
Kommentarer
Ingen vurderinger har kommentarer.
4,1
Møblering:
4,2
Anbefalelsesværdig:
4,1
Generelt med børn:
4,3
Generelt uden børn:
4,2
Eksterne anmeldelser
Ingen detaljerede eksterne anmeldelser

Faciliteter

  • Afstand

    • Bank
      494 m
    • Bus
      191 m
    • Fiskevand
      8,7 km
    • Golf
      11,6 km
    • Indkøb
      169 m
    • Kyst
      4,5 km
    • Restaurant
      208 m
    • Strand
      17,9 km
    • Tog
      197 m
    • Ved
      349 m
  • Bad

    • Bruser
    • Håndvask
    • WC
  • Diverse

    • Antal badeværelser
      1
    • Antal soveværelser
      3
    • Badeland
    • Boligareal
      80 m²
    • Byggeår
      1924
    • Høj stol
    • Højhastighedsinternet
    • Ikke ryger
    • Indhegnet
    • Internet
    • Nationalt tv
    • Renoveret
      2022
    • Tysk TV
  • Indendørs

    • Barneseng
    • TV
    • Vaskemaskine
  • Køkken

    • El-komfur
    • Fryser 200 - 249 l.
    • Kaffemaskine
    • Køleskab
    • Mikroovn
    • Opvaskemask.
  • Udendørs

    • Havemøbler
    • Indhegnet grund
    • Trækulgrill

Miniferie

Der er begrænset mulighed for miniferie de næste 4 uger.

Priser og kalender

Kalender

Ankomst
Næste
  • december 2025
    mationtofr
    491234567
    50891011121314
    5115161718192021
    5222232425262728
    1293031
    2
  • januar 2026
    mationtofr
    11234
    2567891011
    312131415161718
    419202122232425
    5262728293031
    6
   Se om emnet er ledigt på den valgte dato
Ledig
Optaget
   Ankomst mulig
Varighed

Pris

Periode
Ankomst
Afrejse
Varighed
1 uge
Personer
Op til 6 personer

Bemærk

Ankomst er ikke valgt.
Aftale- og lejebetingelser