Moderne sommerhus med aktivitetsrum og havnærhed

Sommerhus - 8 personer - Fyrrevænget - Skåstrup - 5400 - Bogense

8 personer
Emne nr.: 121-72-5510
Moderne sommerhus fra 2024 med aktivitetsrum, flere terrasser og kun 250 m til havet.
  • Soverum 4
  • Badeværelser 2
  • Boligareal 148 m²
  • Grundareal 1.182 m²
  • Husdyr Ikke tilladt
  • Tilbyder miniferie Ja
  • Afstand vand 250 m
  • Afstand indkøb 6.300 m
  • Internet Ja
  • Parabol/kabel TV Ja
  • Aktivitetsrum Ja
  • Vaskemaskine Ja
  • Tørretumbler Ja
  • Opvaskemaskine Ja
  • Ikkeryger Ja
  • Ladestander til elbil Ja
  • Energivenligt Ja

Beskrivelse

Dette flotte sommerhus, som er bygget i lækre materialer i 2024, er lyst og moderne indrettet. Huset har flere terrasser, hvoraf en del er overdækket, og som fordeler sig omkring huset. I forbindelse med terrassen ligger husets anneks, som indeholder et aktivitetsrum med flere aktiviteter. Et virkelig lækkert hus, som vil være et godt udgangspunkt for en dejlig ferie!

Indretning
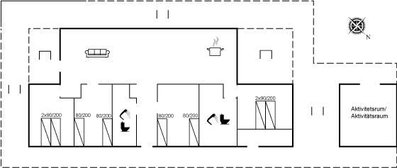
Sommerhuset egner sig til 8 personer. Ferieboligen er på 148 m² og er bygget i 2024. Det er ikke tilladt at medbringe husdyr. Ferieboligen er udstyret med 1 energivenlig luft til vand varmepumpe. Hele ferieboligen har gulvvarme. Ferieboligen har vaskemaskine. Tørretumbler. Frysekapacitet på 50 liter.

Udenfor
Ferieboligen er beliggende på en 1182 m² stor havegrund. Der er 250 m til havet. Nærmeste forretning er beliggende i en afstand af 6300 m. Der er en golfbane i en afstand af 7300 m. Til ferieboligen hører åbent terrasseareal. Desuden er der overdækket terrasse. Grill til rådighed. Der er installeret stik til opladning af elbil. Type 2 stik. Med 11 kW ladeeffekt. Parkering ved ferieboligen.

Aktivitetsrum
I aktivitetsrummet er der følgende udstyr: Airhockey. Bordfodbold. Mini billardbord.

Soveforhold
Der er i alt 4 soveværelser. Sovepladserne fordeler sig på: 8 sovepladser i enkeltsenge.

Køkken
Køkkenet er udstyret med 1 køleskab. Der er 4 induktionskogeplader, varmluftovn, mikrobølgeovn samt opvaskemaskine.

Toilet og bad
Der er 2 badeværelser med bruseniche og 2 toiletter. Der er gulvvarme på 2 badeværelser.

Multimedier
I ferieboligen er der 1 Smart-TV.1 Chromecast. Playstation4. Der er mindst 4 danske kanaler. 1-3 svenske kanaler. 1-3 norske kanaler. Mindst 4 tyske kanaler. Der er trådløst internet til rådighed.

Værd at vide
Ingen udlejning til ungdomsgrupper, hvor alle er 15-25 år. Rygning ikke tilladt. Ved overtrædelse af forbuddet opkræves et gebyr på minimum DKK 3.000,-.

Vores gæsteanmeldelser Eksterne anmeldelser

4,8
Baseret på 5 vurderinger
Sidste vurdering fra d. 02-12-2025
5
(4)
4
(1)
3
(0)
2
(0)
1
(0)
Kommentarer
1 vurdering har kommentar på dansk.
8 voksne 0 børn 0 husdyr 7 overnatninger 2025 juli
Virkelig lækker og nyt. Stort fællesrum og dejlig have med terrasse. Tre “mangler/ønsker” hvis man skulle påpege noget: Et større køleskab når man er 8 personer, skal man næsten handle hver dag. Ikke meget plads til mad og drikke. En vandhane udendørs til når man kommer hjem fra stranden. Et sted at skylle fødderne så man ikke tager sand med ind. Fjernsyn med mange kanaler, men ikke når man deler login med ejeren, så der ofte ikke kan ses tv2 da kun en person kan se live tv. Små ting som kunne løfter huset til toppen
4,7
Generelt:
4,9
Service på stedet:
4,9
Værdi for pengene:
4,9
Beliggenhed:
4,2
3 eksterne anmeldelser
4,3
Generelt:
5
Service på stedet:
5
Værdi for pengene:
5
Beliggenhed:
2
Generel:
Das Haus ist Stand jetzt neuwertig und in einem herrvorragenden Zustand. Es ist hochwertig ausgestattet und modern eingerichtet. Das Grundstück ist gepflegt angelegt und mit Sträuchern eingefriedet. Der Strand ist in wenigen Gehminuten gut zu erreichen. Dieser im Wasser sehr steinig. Im Ort selbst gibt es keine Einkaufsmöglichkeit und keinen Bäcker. Hier muss man mit dem Auto oder Fahrrad in einen der nächsten naheliegenden Orte fahren. Wir hatten mit insgesamt vier Personen einen sehr schönen Aufenthalt.
4,3
Generelt:
4
Service på stedet:
4
Værdi for pengene:
4
Beliggenhed:
5
4,8
Generelt:
5
Service på stedet:
5
Værdi for pengene:
5
Beliggenhed:
4
Generel:
Wir hatten erholsame Tage in einem schönen Haus

Faciliteter

  • Adgang til ferieboligen

    • Nøgleboks med kode
  • Aktivitetsrum

    • Air hockey
    • Aktivitetsrum
    • Bordfodbold
    • Mini billard bord
  • Bemærk

    • Aktivitetshus
    • Ingen håndværkere efter anmodning
    • Ingen ungdomsgrupper efter anmodning
    • Rygning er forbudt
  • Indretning

    • Antal voksne inkl. 4-11 år
      8
    • Bebygget areal
      148 m²
    • Byggeår
      2024
    • Feriebolig
    • Frysekapacitet (antal liter)
      50
    • Gulvvarme
    • Tørretumbler
      1
    • Varmepumpe
    • Varmepumpe luft til vand
    • Vaskemaskine
      1
  • Køkken

    • Antal induktionskogeplader
      4
    • Køleskab
      1
    • Mikrobølgeovn
      1
    • Opvaskemaskine
      1
    • Varmluftovn
      1
  • Multimedier

    • > 3 danske kanaler
    • > 3 tyske kanaler
    • 0-3 norske kanaler
    • 0-3 svenske kanaler
    • Antal tv'er
      1
    • Chromecast
      1
    • Download
      300
    • Playstation 4
    • Smart-Tv
      1
    • Trådløst internet
    • Upload
      300
  • Soveforhold

    • Antal soveværelser
      4
    • Enkeltseng (antal sovepladser)
      8
  • Toilet og bad

    • Antal badeværelser
      2
    • Antal toiletter
      2
    • Brusekabine
    • Gulvvarme
      2
  • Udenfor

    • Anlagt have
    • Butik
      6,3 km
    • Elbil hjemmeoplader
    • Golfbane
      7,3 km
    • Grill
      1
    • Hav
      250 m
    • KW udgangseffekt
      11
    • Ladestik type 2
    • Overdækket terrasse
    • Parkeringsplads ved huset
    • Størrelse af grunden
      1182 m²
    • Terrasse

Miniferie

Der er begrænset mulighed for miniferie hele året, typisk uden for højsæsonen.

Priser og kalender

Kalender

Ankomst
Forrige Næste
   Se om emnet er ledigt på den valgte dato
Ledig
Optaget
   Ankomst mulig
Varighed

Pris

Periode
Ankomst
Afrejse
Varighed
1 uge
Personer
Op til 8 personer

Bemærk

Ankomst er ikke valgt.
Aftale- og lejebetingelser