Moderne feriehus med havudsigt og strandnær beliggenhed

Ferielejlighed - 4 personer - Brinkevej - Sandkås - 3770 - Allinge

4 personer
Emne nr.: 130-I67181
Lækkert feriehus med havudsigt, 300 m fra sandstrand i naturskønne Sandkås på Nordbornholm.
  • Soverum 2
  • Badeværelser 1
  • Boligareal 69 m²
  • Husdyr Ikke tilladt
  • Tilbyder miniferie Ja
  • Afstand vand 300 m
  • Afstand indkøb 1.800 m
  • Internet Ja
  • Udsigt til vand Ja
  • Opvaskemaskine Ja
  • Ikkeryger Ja
  • Energivenligt Ja

Beskrivelse

Fantastisk lækkert feriehus med en utrolig havudsigt og en skøn beliggenhed kun 300 m fra en fin sandstrand og flotte klipper.

Huset er lækkert indrettet og indbydende på alle fronter. Dets hjerte er den kombinerede opholds- og spisestue med åbent køkken, hvor I kan tilberede et lækkert feriemåltid og derefter nyde det sammen om spisebordet. Efter an aktiv feriedag kan I flade ud foran fladskærmen (I kan streame jeres yndlingsfilm- og serier via Chromecast).

Inden for få hundrede meter finder I gode restauranter, wellnessfaciliteter, minigolf, en kiosk og ikke mindst en dejlig sandstrand, hvor I kan tilbringe timevis med at bade og sole jer. I bor i et naturskønt område, der byder på mange flotte vandreture - eksempelvis langs den smukke klippekyst, hvor man kan opleve fortryllende solnedgange. Nordbornholm er spækket med attraktioner. I kan blandt andet tage til Jons Kapel, Hammmershus Slotsruiner, Olsker Rundkirke, Helligdomsklipperne og Bornholms Kunstmuseum.

En usædvanlig lækker og indbydende til for en skøn ferie på det smukke Nordbornholm - god fornøjelse!

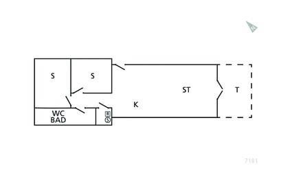
Rumindretning

  • Feriebolig
    • Soveværelse, 2 personer
      • Dobbeltseng
    • Soveværelse, 2 personer
      • Dobbeltseng
    • Badeværelse
      • WC. Varmt og koldt vand, Bruser
    • Terrasse
      • Åben terrasse

Vores gæsteanmeldelser Eksterne anmeldelser

4,0
Baseret på 1 vurdering
Vurderet d. 07-12-2024
5
(0)
4
(1)
3
(0)
2
(0)
1
(0)
Kommentarer
Ingen vurderinger har kommentarer.
5,0
2 eksterne anmeldelser
5,0
august 2025
Tjek ind:
5
Rengøring:
5
Komfort:
5
Faciliteter:
4
Beliggenhed:
5
Værdi for pengene:
5
Generel:
Et rigtigt skønt hus at bo i og perfekt beliggenhed på Bornholm.Terrassen var helt perfekt og alt spillede. Huset fremstår velholdt og renoveret.For max score manglede vi vaskemaskine og mikrobølgeovn men det gik fint alligevel.
5,0
juni 2025
Tjek ind:
4
Rengøring:
5
Komfort:
5
Faciliteter:
5
Beliggenhed:
5
Værdi for pengene:
5
Generel:
Fed lejlighed, fed udsigt, tæt naboer, er til at leve med, men fortæl dog, hvor man skal finde nøglen !

Faciliteter

  • Bad

    • WC. Varmt og koldt vand
  • Diverse

    • Antal gratis børn (< 4 år)
      1
    • EL ekskl.
    • Ferielejlighed
      69 m²
    • Havudsigt
    • Helårsisoleret
    • Kæledyr Nej
    • Opvarmning alternativ, Varmepumpe
    • Renoveret
      2018
    • Selvbetjent check-in
    • Vand inkl.
  • El artikler

    • 1 TV
    • Chromecast
    • DK-DR1
    • Internet (trådløst)
  • I nærheden

    • Afs. til nærmeste vand/badning
      300 m
    • Afstand til indkøb
      1,8 km
    • Golfbane
      8 km
    • Nærmeste by
      1,8 km
  • Indendørs

    • Gulvvarme på badeværelset
  • Koncepter

    • Husdyrfrit
    • Luxury Collection
    • Røgfrit hus
    • Tæt på havet
  • Køkken

    • Emhætte
    • Fryser
      70 l
    • Induktionskogeplade
    • Kaffemaskine
    • Køkkenet har v/k vand
    • Køleskab
    • Opvaskemaskine
  • Udendørs

    • Grill
    • Havemøbler

Miniferie

Der er mulighed for miniferie hele året.

Priser og kalender

Kalender

Ankomst
Næste
  • april 2026
    mationtofr
    1412345
    156789101112
    1613141516171819
    1720212223242526
    1827282930
    19
  • maj 2026
    mationtofr
    18123
    1945678910
    2011121314151617
    2118192021222324
    2225262728293031
    23
   Se om emnet er ledigt på den valgte dato
Ledig
Optaget
   Ankomst mulig
Varighed

Pris

Periode
Ankomst
Afrejse
Varighed
1 uge
Personer
Op til 4 personer

Bemærk

Ankomst er ikke valgt.
Aftale- og lejebetingelser