Hyggeligt sommerhus nær strand og skov i Sandersvig

Sommerhus - 6 personer - Kløften - Sandersvig - 6100 - Haderslev

6 personer
Emne nr.: 090-59785
Hyggeligt sommerhus nær Sandersvig med strand, skov og moderne faciliteter til en afslappende ferie.
  • Soverum 3
  • Badeværelser 1
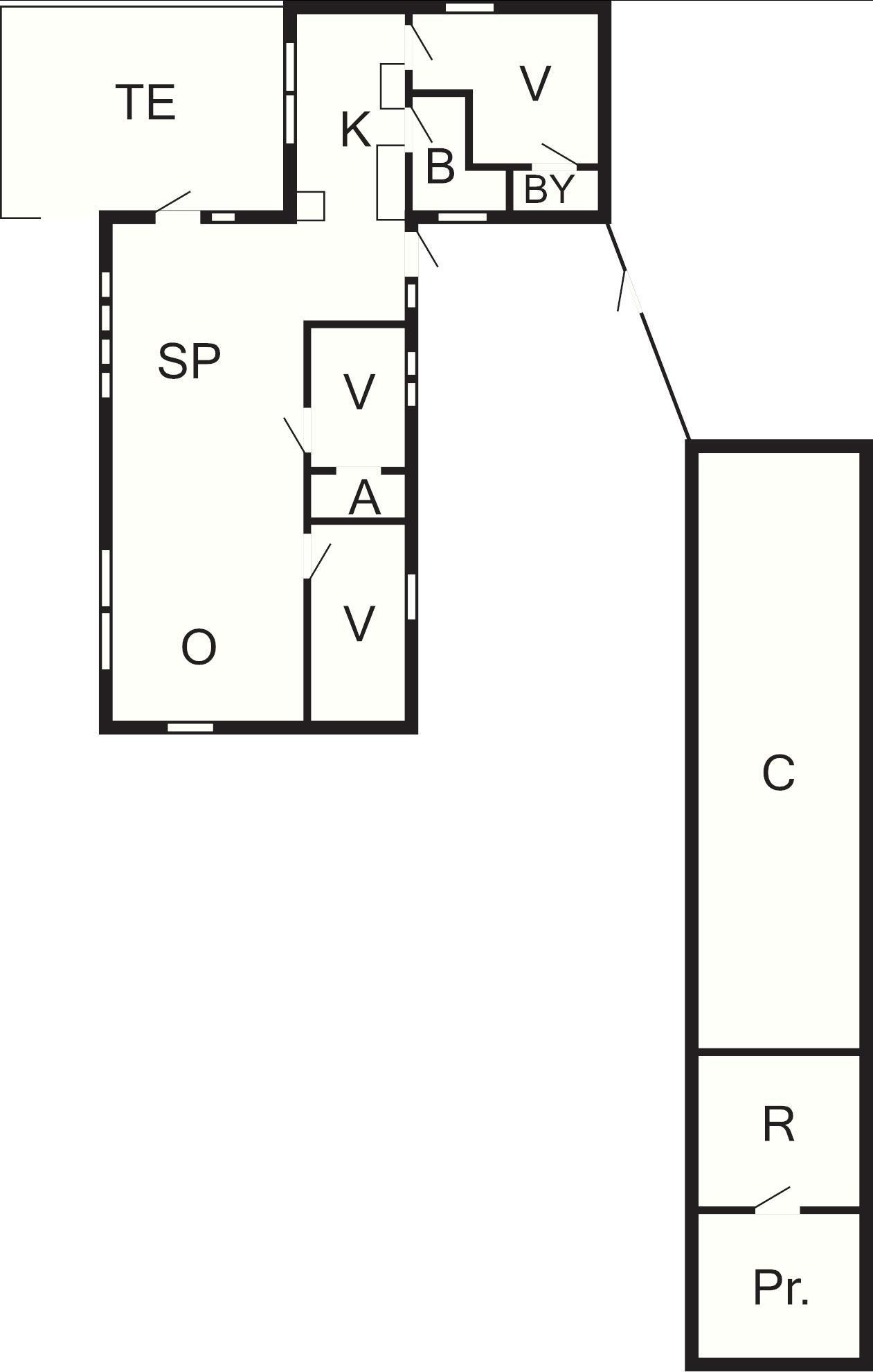
  • Boligareal 84 m²
  • Husdyr 2
  • Tilbyder miniferie Nej
  • Afstand vand 200 m
  • Afstand indkøb 6 km
  • Highspeed internet Ja
  • Brændeovn Ja
  • Vaskemaskine Ja
  • Opvaskemaskine Ja
  • Ikkeryger Ja

Beskrivelse

Strandnært og hyggeligt sommershus i sandersvig med dejlig over fjorden. Sommerhuset er et klassisk sommerhus med masser af charme. Sommerhuset er indrettet med åbent køkken alrum med spiseplads i forbindelse med opholdsstuen hvor der er tv og brændeovn. Der er 3 soveværelser og et pænt badeværelse. På terrassen er der grill og havemøbler til rådighed og plænen indbyder til boldspil og leg.
Huset ligger ugeneret for enden af en vej ved indgangen direkte til en dejlig løvskov og blot 200 m. fra huset er der en fin børnevenlig sandstrand.

1 Opholdsstue: Brændeovn, tv
3 Soveværelser: (1DS)+(2K)+(1DS)
Køkken: Høj stol, el-komfur, køle-frys, fryser 1 - 59 l, mikroovn, kaffemaskine, opvaskemask.
Bad/wc: Vaskemaskine, wc, håndvask, bruser
1 Udeareal: Havemøbler
Og: El-varme, anlagt have 1228 m2, naturskønne omgivelser, ikke-ryger hus

Nøgleinformation
  • Nøglen til ferieboligen er til rådighed fra kl. 16:00 på indflytningsdagen.
  • Nøglen udleveres ved huset.
  • Dette hus er udstyret med smart lock

Vores gæsteanmeldelser Eksterne anmeldelser

1,0
Baseret på 1 vurdering
Vurderet d. 10-08-2025
5
(0)
4
(0)
3
(0)
2
(0)
1
(1)
Kommentarer
Ingen vurderinger har kommentarer på dansk
1 vurdering har kommentar på et andet sprog.

Faciliteter

  • Afstand

    • Indkøb
      6 km
    • Kyst
      200 m
    • Restaurant
      1,4 km
  • Bad

    • Bruser
    • Håndvask
    • WC
  • Diverse

    • Antal badeværelser
      1
    • Antal soveværelser
      3
    • Boligareal
      84 m²
    • Byggeår
      1969
    • Husdyr tilladt
    • Høj stol
    • Højhastighedsinternet
    • Ikke ryger
    • Internet
    • Nationalt tv
    • Renoveret
      1984
    • Tysk TV
  • Indendørs

    • Pejs / brændeovn
    • TV
    • Vaskemaskine
  • Køkken

    • El-komfur
    • Fryser 1 - 59 l.
    • Kaffemaskine
    • Køle-frys
    • Mikroovn
    • Opvaskemask.
  • Udendørs

    • Bademuligheder fra bro
    • Bademuligheder fra sandstrand
    • Havemøbler

Priser og kalender

Kalender

Ankomst
Forrige Næste
  • juni 2026
    mationtofr
    231234567
    24891011121314
    2515161718192021
    2622232425262728
    272930
    28
  • juli 2026
    mationtofr
    2712345
    286789101112
    2913141516171819
    3020212223242526
    312728293031
    32
   Se om emnet er ledigt på den valgte dato
Ledig
Optaget
   Ankomst mulig
Varighed

Pris

Periode
Ankomst
Afrejse
Varighed
1 uge
Personer
Op til 6 personer

Bemærk

Ankomst er ikke valgt.
Aftale- og lejebetingelser