Hyggeligt sommerhus tæt på strand og by

Sommerhus - 4 personer - Harbo Stages Vej - Søndervig - 6950 - Ringkøbing

4 personer
Emne nr.: 328-629169
Hyggeligt sommerhus i Søndervig med plads til 4 personer, nyrenoveret og tæt på strand og byliv.
  • Soverum 2
  • Badeværelser 1
  • Boligareal 60 m²
  • Grundareal 1.201 m²
  • Husdyr 2
  • Tilbyder miniferie Nej
  • Afstand vand 700 m
  • Afstand indkøb 600 m
  • Internet Ja
  • Parabol/kabel TV Ja
  • Brændeovn Ja
  • Opvaskemaskine Ja
  • Ikkeryger Ja
  • Energivenligt Ja

Beskrivelse

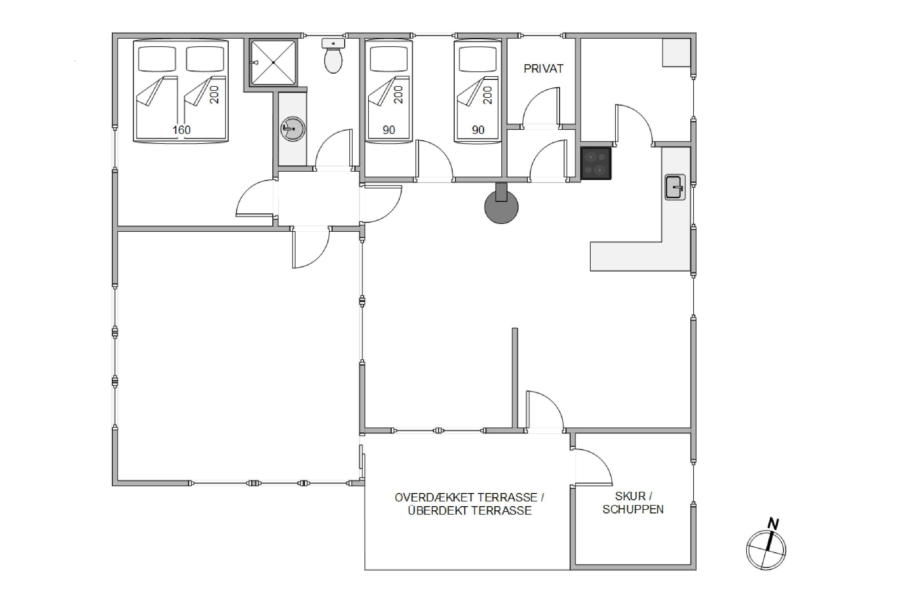
Drømmer I om et hyggeligt og charmerende sommerhus i Søndervig? Så er Harbo Stages Vej 8 et oplagt valg. Dette sommerhus, opført i 1967 og smagfuldt renoveret i 2025, har plads til op til 4 personer og 2 hunde. Den 1201 kvadratmeter store natur- og plænegrund byder på masser af plads til leg, afslapning og hyggelige udendørsstunder – helt ideel til en ferie i rolige omgivelser.

Harbo Stages Vej 8 – åbent køkken-alrum og brændeovn

Husets hjerte er det indbydende køkken-alrum, hvor familien samles til hyggelige stunder. Nogle kan stå få madlavningen i det moderne og veludstyrede køkken, mens andre slapper af i sofaen med en god film eller en kop kakao. Brændeovnen spreder en behagelig varme og skaber den helt rigtige feriestemning med ro, nærvær og hygge. De store vinduespartier lukker masser af dagslys ind og giver en smuk udsigt til den omkringliggende natur – perfekt til afslapning året rundt.

Sommerhuset har 2 soveværelser med plads til op til 4 personer. Det ene soveværelse har 1 komfortabel dobbeltseng, mens det andet er indrettet med 2 enkeltsenge – ideelt til børn eller venner.

Sommerhusets udestue er indrettet med store vinduespartier, som giver et dejligt lysindfald og samtidig en skøn udsigt over den store grund – helt perfekt til morgenkaffen.

Badeværelset er lyst og funktionelt og har gulvvarme, så du får en behagelig start på dagen uden kolde fødder.

Naturskøn grund med plads til leg, hygge og afslapning

Sommerhuset ligger på en 1201 kvadratmeter stor natur- og græsgrund, der skaber perfekte rammer for både afslapning og leg i det fri – for både børn, voksne og familiens to firbenede medlemmer. Nyd den friske Vestkystluft og det smukke naturlandskab, der omgiver sommerhuset.

Der er både en stor åben terrasse og en overdækket terrasse, så I altid kan finde et hyggeligt sted at opholde jer – uanset vejret. Tænd op i grillen og saml familien til en skøn middag efter en dag på stranden, mens havemøblerne inviterer til lange aftener under åben himmel eller på den overdækket del af terrassen.

Den naturskønne grund giver jer et smukt kig ud over det grønne område og skaber en fredfyldt atmosfære, hvor I virkelig kan slappe af og nyde ferien.

Tæt på strand, indkøb og hyggelige oplevelser i Søndervig

Sommerhuset har en skøn beliggenhed kun 700 meter fra det brusende Vesterhav. Her venter kilometerlange sandstrande, hvor I kan tage på friske gåture, nyde solnedgangen over havet eller tage en forfriskende dukkert på varme sommerdage.

Samtidig ligger huset kun 600 meter fra Søndervigs centrum, hvor I finder både supermarked, spændende butikker, hyggelige caféer og gode restauranter. På den måde kan I kombinere afslapning i naturen med hyggelige oplevelser og praktiske indkøb – alt inden for gåafstand.

Faciliteter

  • Opholdsrum

    • Gulv: Trælaminat
    • Brændeovn
    • Fladskærms-TV
      1
  • Soverum

    • Gulv: Trælaminat
    • Dobbeltsenge
      1
    • Enkeltsenge
      2
    • Sovepladser
      4
    • Soverum
      2
    • 1. soverum/sengestørrelser
      160x200
    • 2. soverum/sengestørrelser
      2x80x200
  • Køkken

    • Komfur: El m. ovn
    • Køleskab
    • Opvaskemaskine
    • Mikroovn
    • Separat fryser /L
      50
  • Baderum

    • Gulvvarme bad
    • Antal badeværelser
      1
  • Objektinfo - Inde

    • Areal: Hus m²
      60
    • Byggeår
      1967
    • Husdyr tilladt
    • Husdyr antal, max
      2
    • Ikke ryger hus
    • Gratis Internet
    • Personantal
      4
    • Renoveret
      2025
    • Tyske tv-programmer
    • Varme: Elvarme
    • Varme: Varmepumpe luft til luft
    • Satellit (tyske kanaler samt et par danske)
  • Objektinfo - ude

    • Afstand i meter: Hav
      700 m
    • Afstand i meter: Indkøb
      600 m
    • Grundens areal i m2
      1201
    • Grill
    • Havemøbler
    • Solvogne
    • Parasol
    • Terrasse: åben
    • Terrasse: Overdækket
    • Redskabsrum
    • Naturgrund
    • Plænegrund
    • Affald hentes:
      Tirsdag
    • Skraldespand - Liter
      240
  • Koncepter

    • Skiftedag: Søndag
  • Miniferie

    • Ja, tak - tillad miniferie

Priser og kalender

Kalender

Ankomst
Næste
  • april 2026
    mationtofr
    1412345
    156789101112
    1613141516171819
    1720212223242526
    1827282930
    19
  • maj 2026
    mationtofr
    18123
    1945678910
    2011121314151617
    2118192021222324
    2225262728293031
    23
   Se om emnet er ledigt på den valgte dato
Ledig
Optaget
   Ankomst mulig
Varighed

Pris

Periode
Ankomst
Afrejse
Varighed
1 uge
Personer
Op til 4 personer

Bemærk

Ankomst er ikke valgt.
Aftale- og lejebetingelser