Moderne ferielejlighed tæt på Vesterhavet

Sommerhus - 4 personer - Badevej - Søndervig - 6950 - Ringkøbing

4 personer
Emne nr.: 328-347392
Moderne ferielejlighed i Søndervig med sauna, to terrasser og kun 200 m til stranden ved Vesterhavet.
  • Soverum 2
  • Badeværelser 1
  • Boligareal 97 m²
  • Husdyr Ikke tilladt
  • Tilbyder miniferie Nej
  • Afstand vand 200 m
  • Afstand indkøb 250 m
  • Spa Ja
  • Sauna Ja
  • Highspeed internet Ja
  • Vaskemaskine Ja
  • Tørretumbler Ja
  • Opvaskemaskine Ja
  • Ikkeryger Ja
  • Energivenligt Ja

Beskrivelse

Hvis I vil holde jeres ferie i hjertet af Søndervig, hvor I kan lade bilen stå, så er ferielejligheden på Badevej 18 G i Søndervig det rigtige valg for jer. Ferielejligheden kan rumme op til 4 personer og ligger kun 200 meter fra stranden og Vesterhavet. Efter en lang gåtur kan I slappe af i ferielejlighedens sauna eller tømmespa.

Hvis I har en elbil, kan I oplade den på den fælles parkeringsplads, hvor I finder 4 ladestandere. Eget kabel skal medbringes.

Moderne indretning med luft-til-luft-varmepumpe

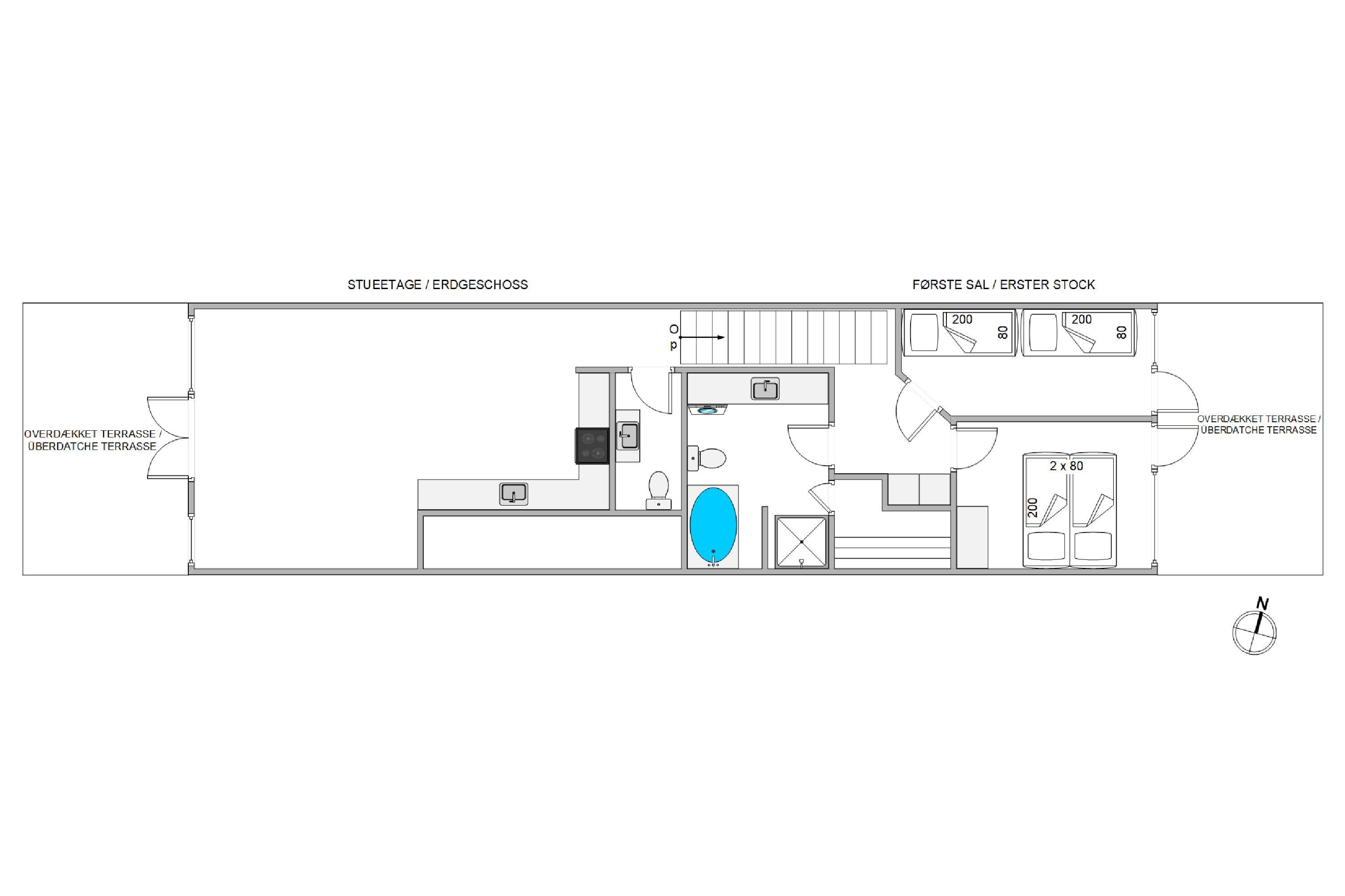
Når I træder ind i ferielejligheden, bliver I mødt af en lys og moderne ferielejlighed, hvor I vil føle jer hjemme fra første øjeblik. Ferielejligheden er bygget i 2024, og med 97 m2 fordelt på 2 etager. Der er god plads til en ferie med 4 personer. Ferielejlighedens naturlige mødested er det store opholdsrum, som kombinerer stue og køkken-alrum. Her kan I lave mad sammen, spille spil eller planlægge de næste aktiviteter i jeres ferie. En energibesparende luft-til-luft-varmepumpe sørger for, at ferielejligheden altid er behagelig varm. Stuen, gæstetoilettet og badeværelset er også udstyret med gulvvarme, så I ikke får kolde fødder.

Fra stuen fører en trappe op til ferielejlighedens to soveværelser og det store badeværelse. Om aftenen kan I bruge ferielejlighedens to soveværelser og lade jeres batterier op. Det ene soveværelse er indrettet med en dobbeltseng, mens der er 2 enkeltsenge i det andet soveværelse. Når I kommer tilbage til ferielejligheden efter en lang gåtur på stranden, kan I tænde op i saunaen eller tømmespaen.

Badevej 18G - Ferielejlighed med to terrasser med lyden af havet

Der er en terrasse på begge etager i ferielejligheden, som både er overdækket og afskærmet. Om morgenen kan I drikke jeres morgenkaffe på terrassen ud for soveværelserne og nyde solopgangen, mens I om aftenen kan se solnedgangen på terrassen ud for stuen. Terrasserne er udstyret med havemøbler og en grill, så I kan runde en spændende feriedag af med en lækker grillaften.

Ferielejligheden på Badevej 18G i Søndervig ligger lige i hjertet af Søndervig, så I er velkommen til at lade bilen stå under ferien. Fra ferielejligheden er der kun ca. 200 meter til den kilometerlange sandstrand og det brusende Vesterhav, hvorfor I kan lytte til bølgerne fra terrasserne. Alle aktiviteter i Søndervig, som f.eks. Sandskulpturfestivalen eller Lalandia, ligger også inden for gåafstand fra ferielejligheden.

Faciliteter

  • Opholdsrum

    • Gulv: Trælaminat
    • Gulvvarme
    • Fladskærms-TV
      1
    • Ekstra varmekilder
  • Soverum

    • Gulv: Trælaminat
    • Gulvvarme
    • Dobbeltsenge
      1
    • Enkeltsenge
      2
    • Sovepladser
      4
    • Soverum
      2
    • 1. soverum/sengestørrelser
      160 x 200 cm
    • 2. soverum/sengestørrelser
      2 x 80 x 200 cm
  • Køkken

    • Komfur: Induktion m. ovn
    • Køleskab
    • Opvaskemaskine
    • Separat fryser /L
      80
  • Baderum

    • Sauna
    • Gulvvarme bad
    • Gulvvarme gæstetoilet
    • Antal badeværelser
      1
    • Antal gæstetoiletter
      1
    • Tømmespa, antal pers.
      2
  • Objektinfo - Inde

    • Areal: Hus m²
      97
    • Byggeår
      2024
    • Ikke ryger hus
    • Personantal
      4
    • Tørretumbler
    • Vaskemaskine
    • Gratis fiber Internet
    • Varmepumpe luft til vand
    • Chromecast
    • Jubilæumsmønt er udleveret
  • Objektinfo - ude

    • Afstand i meter: Hav
      200 m
    • Afstand i meter: Indkøb
      250 m
    • Grill
    • Havemøbler
    • Terrasse: Afskærmet
    • Terrasse: Overdækket
    • Affald hentes:
      Fælles
    • Affald: Helårstømning
    • Skraldespand - Liter
      240
  • Koncepter

    • Skiftedag: Lørdag
    • Vandaflæsning
    • Ferielejlighed
    • Varme: 48 timer før ankomst
  • Miniferie

    • Ja, tak - tillad miniferie

Priser og kalender

Kalender

Ankomst
Næste
  • april 2026
    mationtofr
    1412345
    156789101112
    1613141516171819
    1720212223242526
    1827282930
    19
  • maj 2026
    mationtofr
    18123
    1945678910
    2011121314151617
    2118192021222324
    2225262728293031
    23
   Se om emnet er ledigt på den valgte dato
Ledig
Optaget
   Ankomst mulig
Varighed

Pris

Periode
Ankomst
Afrejse
Varighed
1 uge
Personer
Op til 4 personer

Bemærk

Ankomst er ikke valgt.
Aftale- og lejebetingelser