Sommerhus tæt på Vesterhavet med dejlig terrasse

Sommerhus - 6 personer - Lodbergsvej - Søndervig - 6950 - Ringkøbing

6 personer
Emne nr.: 328-269408
Hyggeligt sommerhus i første klitrække kun 100 meter fra Vesterhavet, perfekt til familien med dejlig terrasse og moderne faciliteter.
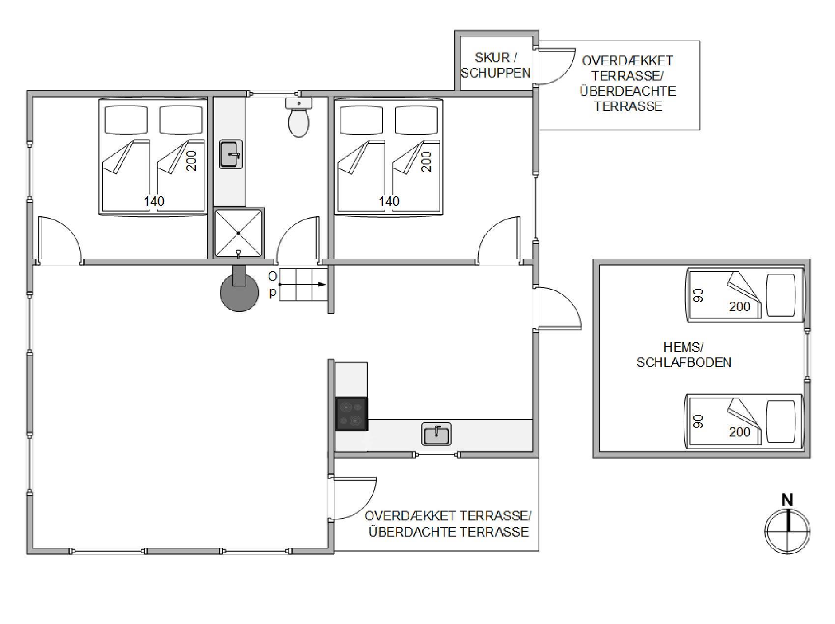
  • Soverum 2
  • Badeværelser 1
  • Boligareal 53 m²
  • Grundareal 530 m²
  • Husdyr Ikke tilladt
  • Tilbyder miniferie Nej
  • Afstand vand 100 m
  • Afstand indkøb 500 m
  • Highspeed internet Ja
  • Parabol/kabel TV Ja
  • Brændeovn Ja
  • Vaskemaskine Ja
  • Opvaskemaskine Ja
  • Ikkeryger Ja
  • Energivenligt Ja

Beskrivelse

På Lodbergsvej 205 i Søndervig finder I dette dejlige sommerhus beliggende i første klitrække blot 100 meter fra Vesterhavet. Sommerhuset er placeret på en skøn naturgrund få minutters gang fra Søndervigs Centrum, så I kan i sandhed holde ferie midt mellem strand og by. Feriehuset har plads til seks personer og er hyggelig og rummelig. Den perfekte ramme for den lille families ferieplaner.

Lys og rummelig indretning med plads til hygge

For enden af en stille, blind vej ligger dette skønne sommerhus, der med sin unikke placering har Vesterhavet som nabo. Huset fremstår lyst og indbydende med stue og spiseafdeling, der står i åben forbindelse med køkkenet. Køkkenet er pænt og funktionelt og udstyret med opvaskemaskine, mikroovn og køleskab med 40 liters frysekapacitet.
 
Det store opholdsrum virker venligt og rummeligt, hvilket blandt andet skyldes det høje loft til kip og de lyse lofter og vægge, der skaber en dejlig atmosfære. Centralt placeret i stuen står brændeovnen, der skaber ekstra hygge i de mørke aftentimer. I stuen finder I behagelige sofaer og lænestole, der indbyder til at I smækker benene op med en god bog i hånden. Derudover kan I tænde for tv’et med parabolantenne eller streame jeres helt egen film over chromecasten.
 
Sommerhuset råder over to gode soveværelser, der begge er indrettet med komfortable dobbeltsenge. Herudover er der en hems med yderligere to sengepladser. Disse sengepladser vil med garanti være i høj kurs hos familiens yngste. I finder desuden et flot og lyst badeværelse med bruseniche og vaskemaskine på adressen.

I sommerhuset er der installeret luft til luft varmepumpe som er, både klima og energivenlig i forhold til opvarmning. 

Dejlig terrasse og grill

Selve terrassen er udstyret med havemøbler og grill, så I kan nyde sommeren udenfor med grillhygge og solbadning. Terrassen er delvist overdækket, så I behøver ikke frygte for det lunefulde danske vejr spolerer jeres middagsplaner.

Lodbergsvej 205 - Beliggende i første klitrække kun 100 meter fra vandet

Der er ingen tvivl om, at den unikke placering er et af dette sommerhusets helt store bonusser. For med kun 100 meter til Vesterhavet er der ingen undskyldninger for ikke at finde badetøjet frem. Men selv hvis I foretrækker at holde fødderne tørre og forblive på land, er Vesterhavet en helt speciel oplevelse. Et besøg ved vandet udmønter sig altid i ekstra point på velværekontoen og et stort smil på læben.

Faciliteter

  • Opholdsrum

    • CD afspiller
    • Gulv: Trælaminat
    • Radio
    • Brændeovn
    • Fladskærms-TV
      1
  • Soverum

    • Gulv: Trælaminat
    • Dobbeltsenge
      2
    • Sovepladser
      6
    • Soverum
      2
    • 1. soverum/sengestørrelser
      1 Dobbeltseng (1x140x200)
    • 2. soverum/sengestørrelser
      1 Dobbeltseng (1x140x200)
  • Køkken

    • Komfur: El m. ovn
    • Køleskab m. frostboks
    • Opvaskemaskine
    • Mikroovn
  • Baderum

    • Gulvvarme bad
    • Antal badeværelser
      1
  • Objektinfo - Inde

    • Allergivenligt hus
    • Areal: Hus m²
      53
    • Byggeår
      1995
    • Barneseng
      1
    • Barnestol
      1
    • Ikke ryger hus
    • Gratis Internet
    • Personantal
      6
    • Renoveret
      2015
    • Danske TV-kanaler (Betalingskanaler)
    • Varme: Elvarme
    • Varme: Varmepumpe luft til luft
    • Vaskemaskine
    • Satellit (tyske kanaler samt et par danske)
    • Gratis fiber Internet
    • Chromecast
    • Jubilæumsmønt er udleveret
  • Objektinfo - ude

    • Afstand i meter: Hav
      100 m
    • Afstand i meter: Indkøb
      500 m
    • Grundens areal i m2
      530
    • Sandkasse
    • Grill
    • Havemøbler
    • Solvogne
    • Terrasse: Overdækket
    • Naturgrund
    • Affald hentes:
      Torsdag
    • Skraldespand - Liter
      240
  • Koncepter

    • Skiftedag: Lørdag
    • Varme: 24 timer f. ankomst
  • Miniferie

    • Ja, tak - tillad miniferie

Priser og kalender

Kalender

Ankomst
Forrige Næste
  • september 2026
    mationtofr
    36123456
    3778910111213
    3814151617181920
    3921222324252627
    40282930
    41
  • oktober 2026
    mationtofr
    401234
    41567891011
    4212131415161718
    4319202122232425
    44262728293031
    45
   Se om emnet er ledigt på den valgte dato
Ledig
Optaget
   Ankomst mulig
Varighed

Pris

Periode
Ankomst
Afrejse
Varighed
1 uge
Personer
Op til 6 personer

Bemærk

Ankomst er ikke valgt.
Aftale- og lejebetingelser