Alternative emner
Charmerende sommerhus nær strand og havn
Sommerhus - 6 personer - Aspesgårdsskoven - Sømarken - 3720 - Åkirkeby
6 personer
Emne nr.: 121-95-1124
Charmerende sommerhus nær sandstrand, golfbane og hyggelig havn i Bakka, perfekt til familien.
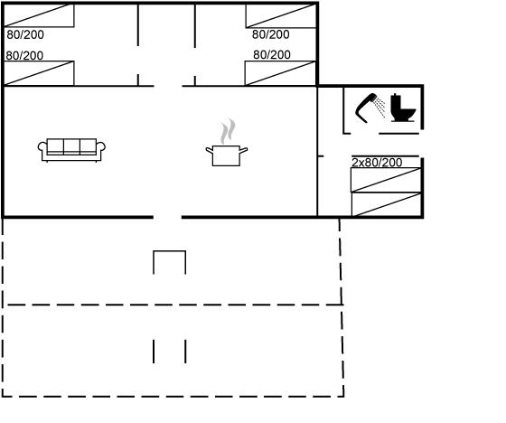
- Soverum 3
- Badeværelser 1
- Boligareal 65 m²
- Grundareal 2.500 m²
- Husdyr Ikke tilladt
- Tilbyder miniferie Nej
- Afstand vand 300 m
- Afstand indkøb 5 km
- Vaskemaskine Ja
- Opvaskemaskine Ja
- Ikkeryger Ja
Beskrivelse
Dette særdeles velholdte sommerhus ligger på en stor grund - nær ved sandstrand, golfbane og det lille hyggelige røgeri i Bakka Havn.
Indretning
Sommerhuset egner sig til 6 personer. Ferieboligen er på 65 m² og er bygget i 1984. I 2010 gennemgik ferieboligen en delvis renovering. Det er ikke tilladt at medbringe husdyr. Ferieboligen har vaskemaskine. Til de små er der 1 stk. barnestol.
Udenfor
Ferieboligen er beliggende på en 2500 m² stor naturgrund. Der er 300 m til havet. Nærmeste forretning er beliggende i en afstand af 5000 m. Til ferieboligen hører 15 m² terrasseareal. Desuden er der 10 m² overdækket terrasse. Grill til rådighed. Parkering ved ferieboligen.
Soveforhold
Der er i alt 3 soveværelser. Sovepladserne fordeler sig på: 2 sovepladser i dobbeltseng. 4 sovepladser i enkeltsenge. Derudover er der 1 stk. barneseng.
Køkken
Køkkenet er udstyret med 1 køleskab. Der er 4 keramiske kogeplader, varmluftovn samt opvaskemaskine.
Toilet og bad
Der er 1 badeværelse med bruseniche og 1 toilet.. Der er gulvvarme på 1 badeværelse.
Multimedier
I ferieboligen er der 1 TV. Radio. Mindst 4 tyske kanaler.
Værd at vide
Ingen udlejning til ungdomsgrupper, hvor alle er 15-25 år. Rygning ikke tilladt. Ved overtrædelse af forbuddet opkræves et gebyr på minimum DKK 3.000,-.
Indretning
Sommerhuset egner sig til 6 personer. Ferieboligen er på 65 m² og er bygget i 1984. I 2010 gennemgik ferieboligen en delvis renovering. Det er ikke tilladt at medbringe husdyr. Ferieboligen har vaskemaskine. Til de små er der 1 stk. barnestol.
Udenfor
Ferieboligen er beliggende på en 2500 m² stor naturgrund. Der er 300 m til havet. Nærmeste forretning er beliggende i en afstand af 5000 m. Til ferieboligen hører 15 m² terrasseareal. Desuden er der 10 m² overdækket terrasse. Grill til rådighed. Parkering ved ferieboligen.
Soveforhold
Der er i alt 3 soveværelser. Sovepladserne fordeler sig på: 2 sovepladser i dobbeltseng. 4 sovepladser i enkeltsenge. Derudover er der 1 stk. barneseng.
Køkken
Køkkenet er udstyret med 1 køleskab. Der er 4 keramiske kogeplader, varmluftovn samt opvaskemaskine.
Toilet og bad
Der er 1 badeværelse med bruseniche og 1 toilet.. Der er gulvvarme på 1 badeværelse.
Multimedier
I ferieboligen er der 1 TV. Radio. Mindst 4 tyske kanaler.
Værd at vide
Ingen udlejning til ungdomsgrupper, hvor alle er 15-25 år. Rygning ikke tilladt. Ved overtrædelse af forbuddet opkræves et gebyr på minimum DKK 3.000,-.
Faciliteter
-
Adgang til ferieboligen
-
Nøgleboks med kode
-
-
Bemærk
-
Ingen ungdomsgrupper efter anmodning
-
Rygning er forbudt
-
-
Indretning
-
Antal voksne inkl. 4-11 år6
-
Bebygget areal65 m²
-
Byggeår1984
-
Feriebolig
-
Højstol1
-
Renoveringsår2010
-
Vaskemaskine1
-
-
Køkken
-
Antal keramiske kogeplader4
-
Køleskab1
-
Opvaskemaskine1
-
Varmluftovn1
-
-
Multimedier
-
> 3 tyske kanaler
-
Antal tv'er1
-
Radio
-
-
Soveforhold
-
Antal soveværelser3
-
Barneseng1
-
Dobbeltseng (antal sovepladser)2
-
Enkeltseng (antal sovepladser)4
-
-
Toilet og bad
-
Antal badeværelser1
-
Antal toiletter1
-
Brusekabine
-
Gulvvarme1
-
-
Udenfor
-
Butik5 km
-
Grill1
-
Hav300 m
-
Natursted
-
Overdækket terrasse10 m²
-
Parkeringsplads ved huset
-
Størrelse af grunden2500 m²
-
Terrasse15 m²
-
Priser og kalender
Kalender
Ankomst
-
juni 2026
ma ti on to fr lø sø 23 1 2 3 4 5 6 7 24 8 9 10 11 12 13 14 25 15 16 17 18 19 20 21 26 22 23 24 25 26 27 28 27 29 30 28 -
juli 2026
ma ti on to fr lø sø 27 1 2 3 4 5 28 6 7 8 9 10 11 12 29 13 14 15 16 17 18 19 30 20 21 22 23 24 25 26 31 27 28 29 30 31 32
Se om emnet er ledigt på den valgte dato
Ledig
Optaget
Ankomst mulig
Varighed
Pris
Periode
- Ankomst
- Afrejse
- Varighed
- 1 uge
Personer
Op til 6 personer
Bemærk
Ankomst er ikke valgt.