Alternative emner
Hyggeligt sommerhus tæt på strand og natur
Sommerhus - 10 personer - Bonamarken - Sømarken - 3720 - Åkirkeby
10 personer
Emne nr.: 121-95-0515
Velholdt sommerhus nær Østre Sømarkens sandstrand med spa, sauna og stor terrasse.
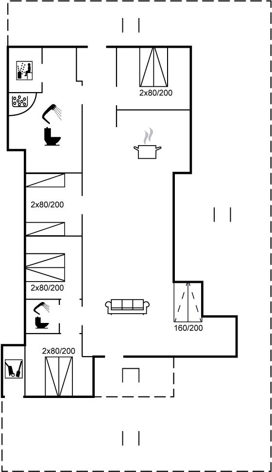
- Soverum 4
- Badeværelser 2
- Boligareal 114 m²
- Grundareal 1.738 m²
- Husdyr Ikke tilladt
- Tilbyder miniferie Nej
- Afstand vand 400 m
- Afstand indkøb 3 km
- Spa Ja
- Sauna Ja
- Internet Ja
- Brændeovn Ja
- Vaskemaskine Ja
- Tørretumbler Ja
- Opvaskemaskine Ja
- Ikkeryger Ja
Beskrivelse
Dette velholdte sommerhus i træ ligger ikke langt fra den dejlige sandstrand i Østre Sømarken på Bornholms sydkyst. Fra den store grund går der en sti ned til stranden. Der er masser af plads uden om huset og alligevel ligger det ugenert som det sidste hus på en blind sommerhusvej.
Ud over den store lyse opholdsstue med spiseplads og åbent velassorteret køkken, finder du gode værelser alle udstyret med senge med boxmadrasser. Husets absolutte samlingssted er i det store køkken-alrum eller på den skønne terrasse, der ligger på tre af husets sider. På terrassen er der gode havemøbler og grill.
Til børn og barnlige sjæle findes der både gynger og Playstation2. Huset har al den komfort og hygge du kan ønske dig og danner grundlag for en rigtig dejlig ferie på solskinsøen. Nyd den omkringliggende natur, og måske ender du ved Bakkarøgeriet som har levende musik i højsæsonen og lækre Bornholmske specialiteter. Er du mere til gourmetmad så besøg evt. Kadeau, Bornholms eneste Michelin-restaurant for enden af Baunevej.
Indretning
Sommerhuset egner sig til 10 personer. Ferieboligen er på 114 m² og er bygget i 2007. I 2021 gennemgik ferieboligen en renovering. Det er ikke tilladt at medbringe husdyr. Der er gulvvarme i entréen. Ferieboligen har vaskemaskine. Tørretumbler. Frysekapacitet på 90 liter. Der er desuden brændeovn.
Udenfor
Ferieboligen er beliggende på en 1738 m² stor naturgrund. Der er 400 m til havet. Nærmeste forretning er beliggende i en afstand af 3000 m. Der er en golfbane i en afstand af 2000 m. Til ferieboligen hører åbent terrasseareal. Desuden er der overdækket terrasse. Der er redskabsrum. Gynge. Grill til rådighed. Parkering ved ferieboligen.
Soveforhold
Der er i alt 4 soveværelser. Sovepladserne fordeler sig på: 6 sovepladser i dobbeltsenge. 2 sovepladser i enkeltsenge. 2 sovepladser i sovesofa (dobbelt). 2 af disse sovepladser befinder sig i stuen.
Køkken
Køkkenet er udstyret med 1 køleskab. Der er 4 keramiske kogeplader, varmluftovn, mikrobølgeovn samt opvaskemaskine Der er gulvvarme i køkkenet.
Toilet og bad
Der er 2 badeværelser med bruseniche og 2 toiletter. Der er gulvvarme på 2 badeværelser. I saunaen er der mulighed for afslapning.
Spa
Der er mulighed for afslapning i indendørs spa til 2 personer.
Multimedier
I ferieboligen er der 1 TV.1 Bluetooth-højtaler. Playstation 2. Der er 1-3 danske kanaler. 1-3 tyske kanaler. Der er trådløst internet til rådighed.
Værd at vide
Ingen udlejning til ungdomsgrupper, hvor alle er 15-25 år. Rygning ikke tilladt. Ved overtrædelse af forbuddet opkræves et gebyr på minimum DKK 3.000,-.
Indretning
Sommerhuset egner sig til 10 personer. Ferieboligen er på 114 m² og er bygget i 2007. I 2021 gennemgik ferieboligen en renovering. Det er ikke tilladt at medbringe husdyr. Der er gulvvarme i entréen. Ferieboligen har vaskemaskine. Tørretumbler. Frysekapacitet på 90 liter. Der er desuden brændeovn.
Udenfor
Ferieboligen er beliggende på en 1738 m² stor naturgrund. Der er 400 m til havet. Nærmeste forretning er beliggende i en afstand af 3000 m. Der er en golfbane i en afstand af 2000 m. Til ferieboligen hører åbent terrasseareal. Desuden er der overdækket terrasse. Der er redskabsrum. Gynge. Grill til rådighed. Parkering ved ferieboligen.
Soveforhold
Der er i alt 4 soveværelser. Sovepladserne fordeler sig på: 6 sovepladser i dobbeltsenge. 2 sovepladser i enkeltsenge. 2 sovepladser i sovesofa (dobbelt). 2 af disse sovepladser befinder sig i stuen.
Køkken
Køkkenet er udstyret med 1 køleskab. Der er 4 keramiske kogeplader, varmluftovn, mikrobølgeovn samt opvaskemaskine Der er gulvvarme i køkkenet.
Toilet og bad
Der er 2 badeværelser med bruseniche og 2 toiletter. Der er gulvvarme på 2 badeværelser. I saunaen er der mulighed for afslapning.
Spa
Der er mulighed for afslapning i indendørs spa til 2 personer.
Multimedier
I ferieboligen er der 1 TV.1 Bluetooth-højtaler. Playstation 2. Der er 1-3 danske kanaler. 1-3 tyske kanaler. Der er trådløst internet til rådighed.
Værd at vide
Ingen udlejning til ungdomsgrupper, hvor alle er 15-25 år. Rygning ikke tilladt. Ved overtrædelse af forbuddet opkræves et gebyr på minimum DKK 3.000,-.
Vores gæsteanmeldelser Eksterne anmeldelser
Faciliteter
-
Adgang til ferieboligen
-
Nøgleboks med kode
-
-
Bemærk
-
Ingen ungdomsgrupper efter anmodning
-
Rygning er forbudt
-
-
Indretning
-
Antal voksne inkl. 4-11 år10
-
Bebygget areal114 m²
-
Brændeovn1
-
Byggeår2007
-
Feriebolig
-
Frysekapacitet (antal liter)90
-
Gulvvarme i hallen
-
Renovering2021
-
Tørretumbler1
-
Vaskemaskine1
-
-
Køkken
-
Antal keramiske kogeplader4
-
Gulvvarme
-
Køleskab1
-
Mikrobølgeovn1
-
Opvaskemaskine1
-
Varmluftovn1
-
-
Multimedier
-
0-3 danske kanaler
-
0-3 tyske kanaler
-
Antal tv'er1
-
Bluetooth -højttaler1
-
Download100
-
Playstation 2
-
Trådløst internet
-
Upload100
-
-
Soveforhold
-
Antal soveværelser4
-
Dobbeltseng (antal sovepladser)6
-
Enkeltseng (antal sovepladser)2
-
Soveplads ikke i soveværelset
-
Sovesofa, dobbelt (antal sovepladser)2
-
-
Spa
-
Indendørs spabad (antal personer)2
-
-
Toilet og bad
-
Antal badeværelser2
-
Antal toiletter2
-
Brusekabine
-
Gulvvarme2
-
Sauna
-
-
Udenfor
-
Butik3 km
-
Golfbane2 km
-
Grill1
-
gynge
-
Hav400 m
-
Natursted
-
Overdækket terrasse
-
Parkeringsplads ved huset
-
Redskabsskur
-
Størrelse af grunden1738 m²
-
Terrasse
-
Priser og kalender
Kalender
Varighed
Pris
Periode
- Ankomst
- Afrejse
- Varighed
- 1 uge
Personer
Op til 10 personer
Bemærk
Ankomst er ikke valgt.