Alternative emner
Stor feriebolig med pool og aktivitetsrum
Sommerhus - 20 personer - Vrængmosevej - Sæby - 9750 - Østervrå
20 personer
Emne nr.: 121-41-3021
Stor feriebolig med indendørs pool, aktivitetsrum og plads til 20 personer i naturskønne omgivelser nær Sæby.
- Soverum 8
- Badeværelser 3
- Boligareal 412 m²
- Grundareal 16.607 m²
- Husdyr 2
- Tilbyder miniferie Ja
- Afstand vand 19 km
- Afstand indkøb 3 km
- Swimmingpool inde Ja
- Sauna Ja
- Internet Ja
- Parabol/kabel TV Ja
- Aktivitetsrum Ja
- Vaskemaskine Ja
- Tørretumbler Ja
- Opvaskemaskine Ja
- Ikkeryger Ja
- Energivenligt Ja
Beskrivelse
Lej denne store feriebolig med bl.a. swimmingpool og aktivitetsrum.
Velkommen til denne feriebolig, som er ideel til flere familier eller vennepar, der ønsker at samles og holde en fælles ferie i smuk natur. Huset har plads til hele 20 voksne og 2 husdyr, og her findes der noget for enhver - både afslapning og aktiviteter.
Som en af husets store attraktioner finder I en stor, indendørs swimmingpool på 24 m², der indbyder til sjov og leg for både børn og voksne. Derudover findes der et aktivitetsrum med poolbord, dart og bordtennis, så der er rig mulighed for underholdning, uanset vejret.
Huset ligger midt i naturskønne omgivelser, omgivet af marker, skove og vandløb, der skaber en fredfyldt ramme om jeres ophold. Her er plads til at nyde naturen, gå ture eller blot slappe af i de rolige omgivelser.
Indretning
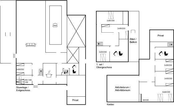
Denne tidligere landejendom egner sig til 20 personer samt 1 barn op til 3 år. Ferieboligen er på 412 m² og er bygget i 1978. Det er tilladt at medbringe 2 husdyr. Der er jordvarme. Der er gulvvarme i alle klinkegulve. Ferieboligen har vaskemaskine. Tørretumbler. Frysekapacitet på 150 liter. Endvidere træpilleovn. Til de små er der 1 stk. barnestol. Puslebord.
Udenfor
Ferieboligen er beliggende på en 16607 m² stor havegrund. Der er 19000 m til havet. Nærmeste forretning er beliggende i en afstand af 3000 m. Der er en golfbane i en afstand af 16000 m. Til ferieboligen hører åbent terrasseareal. Udgang til altan. Gynge. Grill til rådighed. Parkering ved ferieboligen.
Swimmingpool
I den indendørs swimmingpool er der mulighed for leg og hyggeligt samvær. Swimmingpoolen måler op til 3 m i bredden, 8 m i længden og den fra 1,2 m op til 1,9 m dyb. Der er gulvvarme i swimmingpoolområdet.
Aktivitetsrum
I aktivitetsrummet er der følgende udstyr: Poolbord. Bordtennis. Dart.
Soveforhold
Der er i alt 8 soveværelser. Sovepladserne fordeler sig på: 2 sovepladser i dobbeltseng. 16 sovepladser i enkeltsenge. 3 sovepladser i køjesenge. Derudover er der 2 stk. barnesenge.
Køkken
Køkkenet er udstyret med 1 køleskab. Der er 8 keramiske kogeplader, 2 varmluftovne, mikrobølgeovn samt opvaskemaskine.
Toilet og bad
Der er 3 badeværelser med bruseniche og 3 toiletter. Der er gulvvarme på 2 badeværelser. I saunaen er der mulighed for afslapning.
Multimedier
I ferieboligen er der 1 TV. Der er mindst 4 danske kanaler. 1-3 svenske kanaler. 1-3 norske kanaler. 1-3 tyske kanaler. Der er trådløst internet til rådighed.
Værd at vide
Ingen udlejning til ungdomsgrupper, hvor alle er 15-25 år. Rygning ikke tilladt. Ved overtrædelse af forbuddet opkræves et gebyr på minimum DKK 3.000,-.
Velkommen til denne feriebolig, som er ideel til flere familier eller vennepar, der ønsker at samles og holde en fælles ferie i smuk natur. Huset har plads til hele 20 voksne og 2 husdyr, og her findes der noget for enhver - både afslapning og aktiviteter.
Som en af husets store attraktioner finder I en stor, indendørs swimmingpool på 24 m², der indbyder til sjov og leg for både børn og voksne. Derudover findes der et aktivitetsrum med poolbord, dart og bordtennis, så der er rig mulighed for underholdning, uanset vejret.
Huset ligger midt i naturskønne omgivelser, omgivet af marker, skove og vandløb, der skaber en fredfyldt ramme om jeres ophold. Her er plads til at nyde naturen, gå ture eller blot slappe af i de rolige omgivelser.
Indretning
Denne tidligere landejendom egner sig til 20 personer samt 1 barn op til 3 år. Ferieboligen er på 412 m² og er bygget i 1978. Det er tilladt at medbringe 2 husdyr. Der er jordvarme. Der er gulvvarme i alle klinkegulve. Ferieboligen har vaskemaskine. Tørretumbler. Frysekapacitet på 150 liter. Endvidere træpilleovn. Til de små er der 1 stk. barnestol. Puslebord.
Udenfor
Ferieboligen er beliggende på en 16607 m² stor havegrund. Der er 19000 m til havet. Nærmeste forretning er beliggende i en afstand af 3000 m. Der er en golfbane i en afstand af 16000 m. Til ferieboligen hører åbent terrasseareal. Udgang til altan. Gynge. Grill til rådighed. Parkering ved ferieboligen.
Swimmingpool
I den indendørs swimmingpool er der mulighed for leg og hyggeligt samvær. Swimmingpoolen måler op til 3 m i bredden, 8 m i længden og den fra 1,2 m op til 1,9 m dyb. Der er gulvvarme i swimmingpoolområdet.
Aktivitetsrum
I aktivitetsrummet er der følgende udstyr: Poolbord. Bordtennis. Dart.
Soveforhold
Der er i alt 8 soveværelser. Sovepladserne fordeler sig på: 2 sovepladser i dobbeltseng. 16 sovepladser i enkeltsenge. 3 sovepladser i køjesenge. Derudover er der 2 stk. barnesenge.
Køkken
Køkkenet er udstyret med 1 køleskab. Der er 8 keramiske kogeplader, 2 varmluftovne, mikrobølgeovn samt opvaskemaskine.
Toilet og bad
Der er 3 badeværelser med bruseniche og 3 toiletter. Der er gulvvarme på 2 badeværelser. I saunaen er der mulighed for afslapning.
Multimedier
I ferieboligen er der 1 TV. Der er mindst 4 danske kanaler. 1-3 svenske kanaler. 1-3 norske kanaler. 1-3 tyske kanaler. Der er trådløst internet til rådighed.
Værd at vide
Ingen udlejning til ungdomsgrupper, hvor alle er 15-25 år. Rygning ikke tilladt. Ved overtrædelse af forbuddet opkræves et gebyr på minimum DKK 3.000,-.
Vores gæsteanmeldelser Eksterne anmeldelser
Faciliteter
-
Adgang til ferieboligen
-
Nøgleboks med kode
-
-
Aktivitetsrum
-
Aktivitetsrum
-
Bordtennis
-
Dart
-
Poolbord
-
-
Bemærk
-
Aktivitetshus
-
Ingen ungdomsgrupper efter anmodning
-
Rygning er forbudt
-
-
Indretning
-
Antal børn (0-3 år)1
-
Antal voksne inkl. 4-11 år20
-
Bebygget areal412 m²
-
Byggeår1978
-
Frysekapacitet (antal liter)150
-
Gulvvarme i alle klinkegulve
-
Husdyr2
-
Højstol1
-
Jordvarme
-
Puslebord
-
Tidligere gård
-
Træpilleovn1
-
Tørretumbler1
-
Vaskemaskine1
-
-
Køkken
-
Antal keramiske kogeplader8
-
Køleskab1
-
Mikrobølgeovn1
-
Opvaskemaskine1
-
Varmluftovn2
-
-
Multimedier
-
> 3 danske kanaler
-
0-3 norske kanaler
-
0-3 svenske kanaler
-
0-3 tyske kanaler
-
Antal tv'er1
-
Trådløst internet
-
-
Soveforhold
-
Antal soveværelser8
-
Barneseng2
-
Dobbeltseng (antal sovepladser)2
-
Enkeltseng (antal sovepladser)16
-
Køjeseng (antal sovepladser)3
-
-
Swimmingpool
-
Gulvvarme
-
Indendørs swimmingpool
-
Svømmebassinets bredde3
-
Svømmebassinets dybde1,9
-
Svømmebassinets længde8
-
-
Toilet og bad
-
Antal badeværelser3
-
Antal toiletter3
-
Brusekabine
-
Gulvvarme2
-
Sauna
-
-
Udenfor
-
Anlagt have
-
Butik3 km
-
Golfbane16 km
-
Grill1
-
Gynge
-
Hav19 km
-
Parkeringsplads ved huset
-
Størrelse af grunden16607 m²
-
Terrasse
-
Terrasse
-
Miniferie
Der er mulighed for miniferie hele året.
Priser og kalender
Kalender
Varighed
Pris
Periode
- Ankomst
- Afrejse
- Varighed
- 1 uge
Personer
Op til 20 personer
Bemærk
Ankomst er ikke valgt.