Hyggeligt sommerhus nær strand

Sommerhus - 6 personer - Brunebjerg - Rågeleje - 3210 - Vejby

6 personer
Emne nr.: 124-1564
Velkommen til dette charmerende sommerhus i Rågeleje, hvor hyggelig atmosfære og naturskønne omgivelser skaber den perfekte ramme for en afslappende ferie.
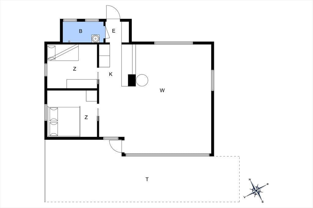
  • Soverum 3
  • Badeværelser 1
  • Boligareal 60 m²
  • Grundareal 1.144 m²
  • Husdyr Ikke tilladt
  • Tilbyder miniferie Ja
  • Afstand vand 300 m
  • Afstand indkøb 600 m
  • Internet Ja
  • Brændeovn Ja
  • Opvaskemaskine Ja
  • Ikkeryger Ja
  • Energivenligt Ja

Beskrivelse

Velkommen indenfor --
Træd ind i den hyggelige opholdsstue, hvor en knitrende brændeovn spreder varme og stemning, mens du slapper af i komfortable møbler og nyder selskabet af dine nærmeste. Fra opholdsstuen er der direkte adgang til terrassen, hvor du kan nyde solskinnet og den friske luft.
Det åbne køkken i forbindelse med opholdsstuen giver mulighed for at nyde madlavningen sammen med familie og venner, mens I deler gode historier og skaber uforglemmelige minder.
Soveværelserne er indrettet med komfort i fokus. Drøm sødt i soveværelset med en hyggelig dobbeltseng eller lad børnene synke ned i søvn i det charmerende soveværelse med køjeseng. For dem, der ønsker ekstra privatliv, tilbyder annekset en oase af ro med endnu en behagelig dobbeltseng.

Nyd livet udendørs --
Omgivet af en frodig grund med buske, træer og en grøn græsplæne er sommerhuset en oase af fred og ro. Lad hverdagens stress forsvinde, mens du slentrer rundt i den naturskønne have eller nyder en afslappende i liggestolen på stund på den store træterrasse.

Kom tæt på lokale oplevelser --
Rågeleje er en perle på den danske kyst, der byder på en skøn blanding af naturskønhed, kulturelle oplevelser og afslappende atmosfære.
Rågeleje Strand er en af områdets største attraktioner og befinder sig kun 300 meter fra sommerhuset. Med sit klare vand og brede sandstrande er det det ideelle sted til solbadning, svømning og strandaktiviteter med familie og venner. Nyd lange gåture langs kysten eller slå dig ned med en god bog og lyt til bølgeskvulp.
Inden for kort afstand finder man også Gilleleje, Helsingør og Hundested, som alle tilbyder muligheder for shopping, spisning og kulturelle oplevelser.

Velkommen til dit tilflugtssted fra hverdagens travlhed – her venter en ferie fyldt med hygge, ro og afslapning.



Faciliteter

  • Hus Info

    • Anneksareal
      15 m²
    • Antal voksne
      6
    • Bruser
    • Byggeår
      1969
    • Grundareal
      1144 m²
    • Husareal
      60 m²
    • WC
  • Afstande

    • Afstand bus
      300 m
    • Afstand golfbane
      18 km
    • Afstand indkøb
      600 m
    • Afstand restaurant
      275 m
    • Afstand strand
      300 m
  • Energi / Opvarmning

    • Brændeovn
    • Varmepumpe
  • Hårde hvidevarer

    • Elkedel
    • Emhætte
    • Kaffemaskine
    • Komfur
    • Køleskab med frys
    • Opvaskemaskine
    • Strygebræt
    • Strygejern
  • Multimedier

    • Chromecast
    • Gratis Wi-Fi - Under 20 Mbit
    • TV
  • Ekstra

    • 2 x Barnestol
  • Udenfor

    • Carport
    • Grill
    • Havemøbler
    • Liggestole
      2
    • Parkering på grunden
    • Terrasse
  • Diverse

    • Dobbeltseng 140 CM
    • Dobbeltseng 180 cm
    • Køjeseng 2 x 90 cm
    • Træ-/parketgulv
    • Åbent køkken
  • Regler

    • Husdyr ikke tilladt
    • Opladning af elbil ikke tilladt
    • Rygning ikke tilladt
  • Pris inklusiv

    • Slutrengøring inkl.
    • Vand inkl.

Miniferie

Der tilbydes i øjeblikket ikke miniferie. Typisk skyldes dette at miniferie ikke er muligt i højsæsonen.

Priser og kalender

Kalender

Ankomst
  • december 2025
    mationtofr
    491234567
    50891011121314
    5115161718192021
    5222232425262728
    1293031
    2
   Se om emnet er ledigt på den valgte dato
Ledig
Optaget
   Ankomst mulig
Varighed

Pris

Periode
Ankomst
Afrejse
Varighed
Personer
Op til 6 personer

Bemærk

Ankomst er ikke valgt.
Varighed er ikke valgt.
Aftale- og lejebetingelser