Hyggeligt sommerhus med anneks og have

Sommerhus - 6 personer - Østerlyngvej - Nykøbing Sj. By Og Havn - 4500 - Nykøbing Sj

6 personer
Emne nr.: 035-11108-1
3 overnatninger
DKK 3.910,-
Inkl. rengøring og forsikring
6 personer
Skønt sommerhus med stor have, anneks og bålsted tæt på natur og by i Nykøbing Sj.
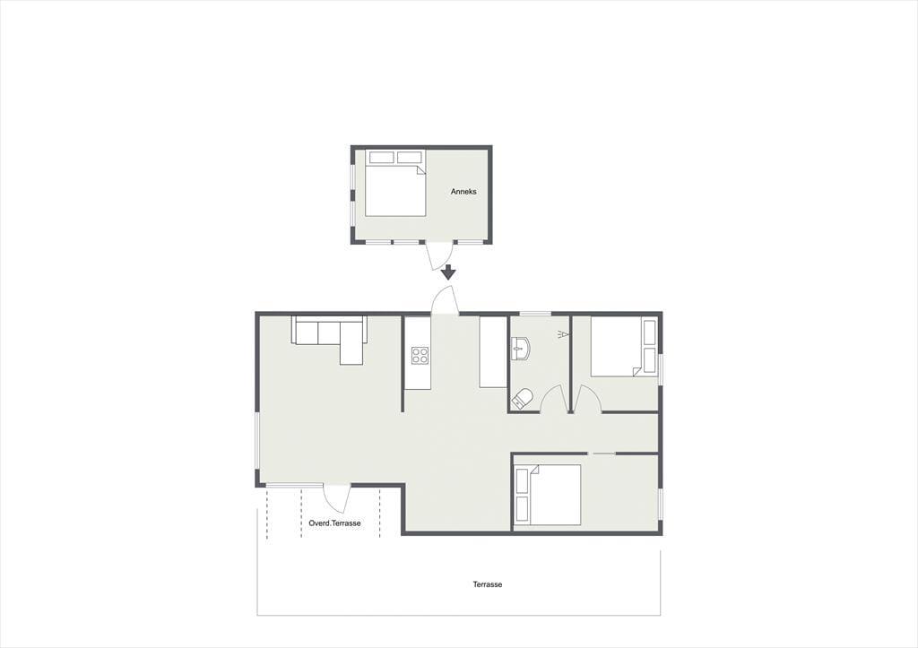
  • Soverum 3
  • Badeværelser 1
  • Boligareal 65 m²
  • Grundareal 1.506 m²
  • Husdyr 1
  • Tilbyder miniferie Ja
  • Afstand vand 2.200 m
  • Afstand indkøb 1.100 m
  • Highspeed internet Ja
  • Brændeovn Ja
  • Aircondition Ja
  • Opvaskemaskine Ja
  • Ikkeryger Ja
  • Energivenligt Ja

Beskrivelse

I dette skønne sommerhus, med en fantastisk have omgivet af smukke træer og buske er der alle muligheder for at komme ned i gear og virkelig mærke at nu er det ferie.

Velkommen indenfor

Sommerhuset har gennemgået en større renovering og fremstår lyst og særdeles indbydende. Inde fra huset er der det smukkeste udsyn til den skønne grund. Sommerhusets hjerterum er opholdsstuen, hvor mange gode stunder kan nydes med en god middag, eller med en spændende bog i sofaen imens du lytter til brændeovnens knitren. Du vil med det samme mærke den særdeles gode stemning af ro og velvære. I huset er der 2 fine værelser og et dejligt badeværelse. Desuden er der et skønt anneks i tilknytning til huset.

Nyd livet udenfor

Sommerhuset er beliggende i et meget populært og roligt område, så der er rig mulighed for at sidde i ro og mag og nyde en god frokost på den store solrige terrasse. Her er der masser af sol både eftermiddag og aften. Udendørs kan timerne gå med at hygge omkring lstedet eller bare slå jer ned i tehuset med et interessant brætspil eller en kop varm drik. Her kan du også bare lukke øjnene og lytte til vindens susen i træerne og fuglenes sang. Når det bliver tid til en dukkert, så er der flere gode sandstrande i cykelafstand fra huset.

Kom tæt på de lokale oplevelser

En aktiv dag kan være en gåtur i naturområdet kaldet Hov Vig meget nær sommerhuset, hvor I bl.a kan opleve et rigt og spændende fugleliv. Vi anbefaler også en dag i Annebergparken, hvor I kan opleve de smukke historiske og arkitektoniske bygninger, hvoraf flere rummer spændende lokal kunst. I Annebergparken kan du også nyde en god middag på enten restaurant ERBA eller den Michelin anerkendte restaurant MOTA, der bruger lokale råvarer forarbejdet med stor kærlighed. I kulturparken kan du også købe og smage den lokale tang fra Dansk Tang og øl fra Deeper Roots. Husk også at besøge Rørvig havn, med den lille færge og den dejlige fiskerestaurant. Her kan hele familien også hygge sig med krabbefiskeri fra molen.




Rumindretning

  • Soveværelse
    • Dobbeltseng - 140 X 200
  • Soveværelse
    • Dobbeltseng - 180 X 200
  • Soveværelse
    • Dobbeltseng

Faciliteter

  • Hus Info

    • Anneksareal
      12 m²
    • Antal husdyr
      1
    • Antal voksne
      6
    • Bruser
    • Byggeår
      1980
    • Delvis renoveret år
      2010
    • Grundareal / Have
      1506 m²
    • Husareal
      65 m²
    • WC
  • Afstande

    • Afstand golfbane
      7,7 km
    • Afstand indkøb / Helårsbutik
      1,1 km
    • Afstand restaurant
      1,1 km
    • Afstand strand / Sandstrand
      2,2 km
    • Afstand svømmehal
      3 km
  • Energi / Opvarmning

    • Brændeovn
    • Elvarme
    • Varmepumpe / Med køl
  • Hårde hvidevarer

    • Elkedel
    • Kaffemaskine
    • Komfur
    • Køleskab med frys
    • Mikroovn
    • Opvaskemaskine
  • Multimedier

    • Dansk tv
    • Gratis Wi-Fi - Over 20 Mbit
    • TV
    • Tysk TV
  • Ekstra

    • Golfferie
  • Udenfor

    • Bålsted
    • Grill
      Gas
    • Havemøbler
    • Liggestole
    • Overdækket terrasse
      30 m²
    • Parasol
    • Parkering på grunden
    • Åben terrasse
      30 m²
  • Diverse

    • 3 x Træ-/parketgulv
    • Flise-/klinkegulv
    • Gulvvarme
    • Åbent køkken
  • Regler

    • Husdyr: alle slags husdyr tilladt
    • Opladning af elbil ikke tilladt
    • Rygning ikke tilladt
  • Pris inklusiv

    • Slutrengøring inkl.
    • Vand inkl.

Miniferie

Der er mulighed for miniferie hele året.

Priser og kalender

Kalender

Ankomst
Forrige Næste
  • august 2026
    mationtofr
    3112
    323456789
    3310111213141516
    3417181920212223
    3524252627282930
    3631
  • september 2026
    mationtofr
    36123456
    3778910111213
    3814151617181920
    3921222324252627
    40282930
    41
   Se om emnet er ledigt på den valgte dato
Ledig
Optaget
   Ankomst mulig
Varighed
Personer

Pris

Periode
Ankomst
Afrejse
Varighed
3 overnatninger
Personer
Ingen personer er valgt

Bemærk

Ankomst er ikke valgt.
Der er ikke valgt personer.
Aftale- og lejebetingelser