Hyggeligt sommerhus tæt på Vesterhavet

Sommerhus - 6 personer - Fyrmarken - Nr. Lyngvig - 6960 - Hvide Sande

6 personer
Emne nr.: 090-09572
Hyggeligt sommerhus nær Vesterhavet med brændeovn, terrasse og moderne faciliteter i naturskønne omgivelser.
  • Soverum 3
  • Badeværelser 1
  • Boligareal 63 m²
  • Husdyr Ikke tilladt
  • Tilbyder miniferie Ja
  • Afstand vand 800 m
  • Afstand indkøb 4 km
  • Internet Ja
  • Parabol/kabel TV Ja
  • Brændeovn Ja
  • Vaskemaskine Ja
  • Tørretumbler Ja
  • Opvaskemaskine Ja
  • Ikkeryger Ja
  • Energivenligt Ja

Beskrivelse

Sommerhus beliggende kun ca. 800 meter fra Vesterhavet. Sommerhuset er indrettet med et veludstyret køkken i åben forbindelse med den kombinerede opholds- og spisestue. I kan sidde i stuen og nyde den omkringliggende natur på en kølig sommeraften, mens I luner jer ved husets brændeovn. Sommerhuset er af ældre stand og egner sig godt til dem, der nyder en dejlig afslappet atmosfære midt i naturen.

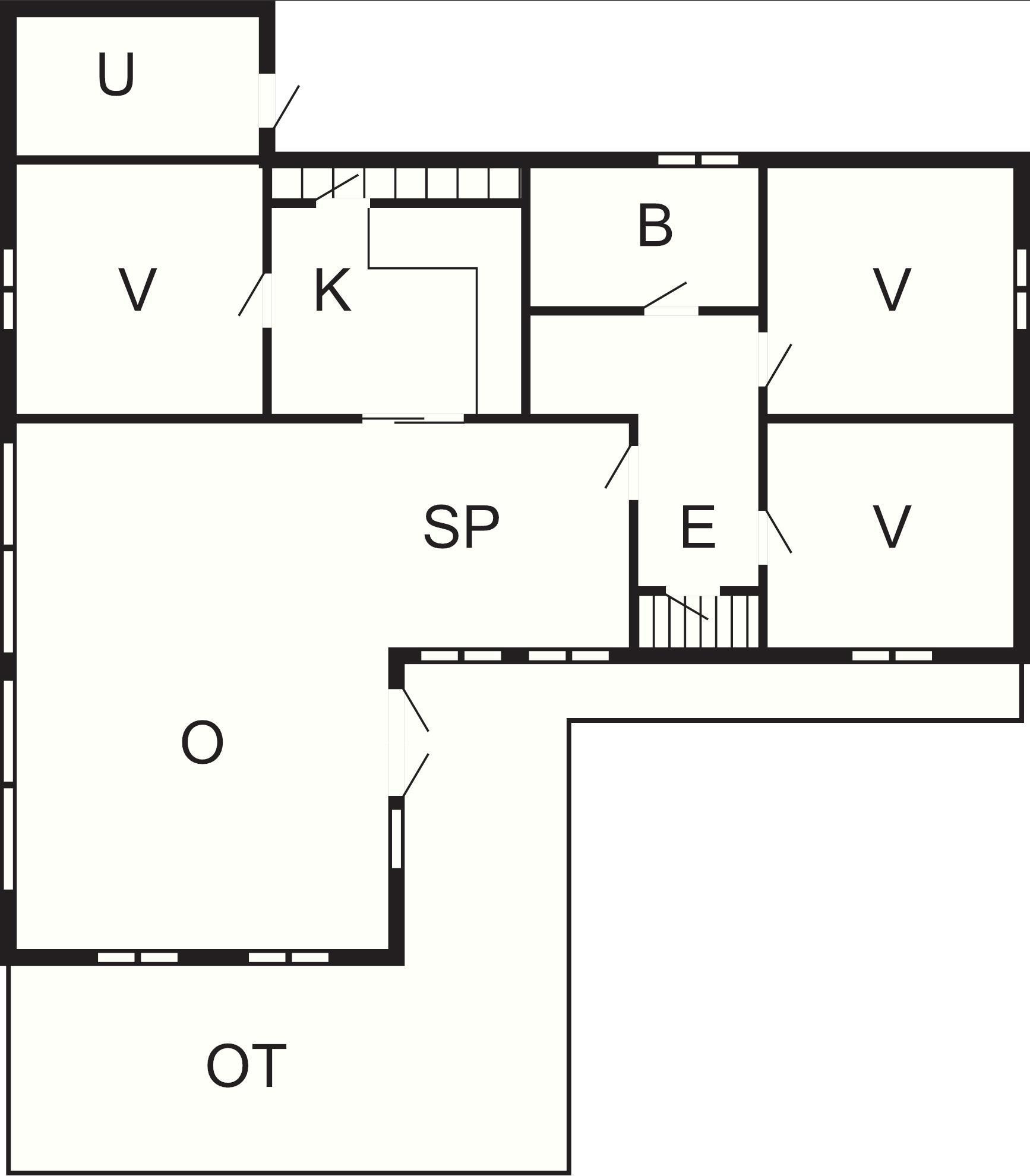
Foruden køkken og kombinerede opholds- og spisestue er sommerhuset også indrettet med tre soverum og et badeværelse. Et af soverummene er indrettet med dobbeltseng, mens de sidste to soverum hver er indrettet med en etageseng til to personer.

Energivenlig luft/luft varmepumpe, brændeovn, vaskemaskine, tørretumbler, gratis trådløs internet, tv med tyske kanaler er blot nogle af de ting sommerhuset er udstyret med. Der er DR-kanaler på tv'et.

På den delvist overdækkede terrasse kan I nyde børnenes leg på sommerhusets omkringliggende græsplæne. Udlejes ikke til ungdomsgrupper.

1 Opholdsstue: Brændeovn, radio, stereoanlæg med cd, dvd-afspiller, Chromecast, tv, parabol, høj stol
3 Soveværelser: (1DS)+(2K)+(1DS)
Køkkenafd.: El-komfur, køleskab m/frostboks, emhætte, kaffemaskine, opvaskemask.
Bad/wc: Vaskemask., tørretumbler, wc, håndvask, bruseniche
Og: Terrasse, overd. terrasse, el-varme, luft/luft varmepumpe, havegrill, naturgrund med træer 1200 m2, hyggelig møblering, sommerhusområde, ikke-ryger hus

Nøgleinformation
  • Nøglen til ferieboligen er til rådighed fra kl. 16:00 på indflytningsdagen.
  • Nøglen udleveres ved huset.
  • Dette hus er udstyret med smart lock

Vores gæsteanmeldelser Eksterne anmeldelser

Ingen gæsteanmeldelser
3,6
Møblering:
3,8
Anbefalelsesværdig:
3,2
Generelt med børn:
3,3
Generelt uden børn:
3,8
Eksterne anmeldelser
Ingen detaljerede eksterne anmeldelser

Faciliteter

  • Afstand

    • Indkøb
      4 km
    • Kyst
      800 m
    • Restaurant
      800 m
  • Bad

    • Bruseniche
    • Håndvask
    • WC
  • Diverse

    • Antal badeværelser
      1
    • Antal soveværelser
      3
    • Boligareal
      63 m²
    • Byggeår
      1974
    • Energihus
    • Høj stol
    • Ikke ryger
    • Internet
    • Luft/luft varmepumpe
    • Tysk TV
  • Indendørs

    • CD afspiller
    • Chromecast
    • DVD-afspiller
    • Parabol
    • Pejs / brændeovn
    • Radio
    • Stereoanlæg
    • TV
    • Tørretumbler
    • Vaskemaskine
  • Køkken

    • El-komfur
    • Emhætte
    • Kaffemaskine
    • Køleskab m/frostboks
    • Opvaskemask.
  • Udendørs

    • Havegrill

Miniferie

Der er begrænset mulighed for miniferie hele året, typisk uden for højsæsonen.

Priser og kalender

Kalender

Ankomst
Næste
  • april 2026
    mationtofr
    1412345
    156789101112
    1613141516171819
    1720212223242526
    1827282930
    19
  • maj 2026
    mationtofr
    18123
    1945678910
    2011121314151617
    2118192021222324
    2225262728293031
    23
   Se om emnet er ledigt på den valgte dato
Ledig
Optaget
   Ankomst mulig
Varighed

Pris

Periode
Ankomst
Afrejse
Varighed
1 uge
Personer
Op til 6 personer

Bemærk

Ankomst er ikke valgt.
Aftale- og lejebetingelser