Hyggeligt sommerhus nær Vesterhavet i Nr. Lyngby

Sommerhus - 4 personer - Sælvej - Nr. Lyngby - 9480 - Løkken

4 personer
Emne nr.: 122-LK1817
7 overnatninger
Fra DKK 3.440,-
Inkl. rengøring og forsikring
4 personer
Hyggeligt sommerhus i Nr. Lyngby med 2 terrasser og kort afstand til Vesterhavet, perfekt til afslapning i fredelige omgivelser.
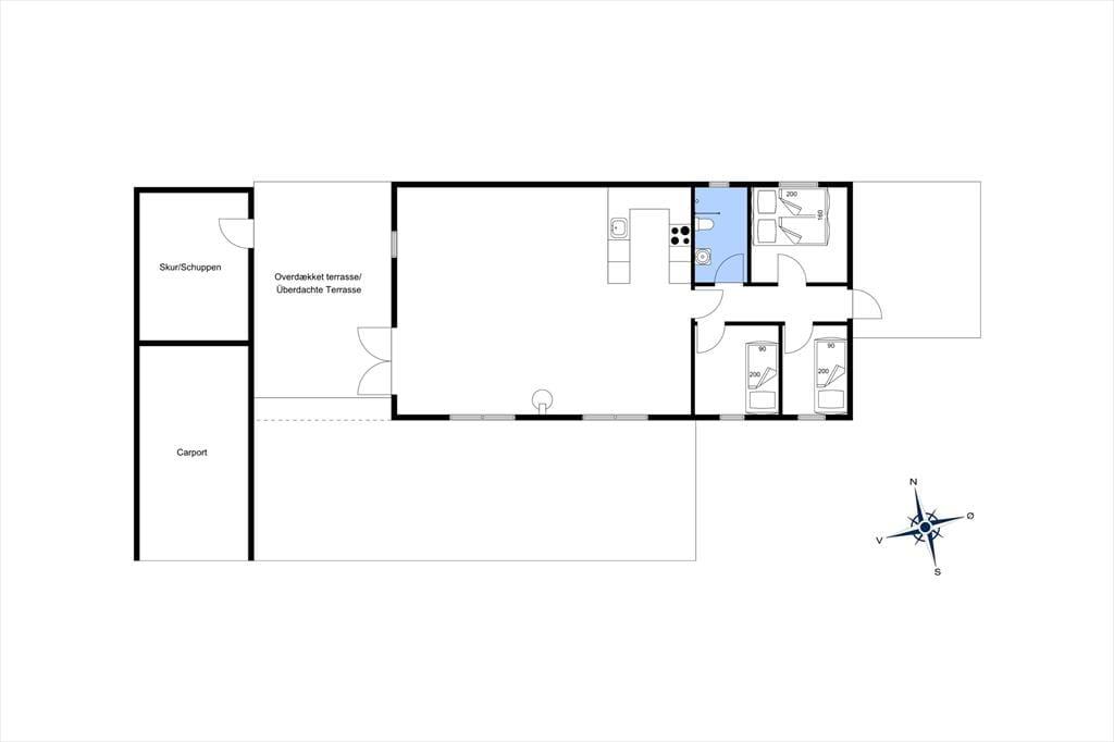
  • Soverum 3
  • Badeværelser 1
  • Boligareal 74 m²
  • Grundareal 1.258 m²
  • Husdyr Ikke tilladt
  • Tilbyder miniferie Ja
  • Afstand vand 425 m
  • Afstand indkøb 5.150 m
  • Highspeed internet Ja
  • Parabol/kabel TV Ja
  • Brændeovn Ja
  • Aircondition Ja
  • Opvaskemaskine Ja
  • Ikkeryger Ja
  • Ladestander til elbil Ja
  • Energivenligt Ja

Beskrivelse

Fredelige omgivelser på lukket vej og kort afstand til Vesterhavet.
Hvad skal jeres næste ferie bruges på? Hvis I drømmer om at komme helt ned i tempo og langt væk fra hverdagslivets pligter, er dette hyggelige sommerhus i Nr. Lyngby oplagt at kigge nærmere på.

Velkommen indenfor
Sælvej 3 er lige noget for jer, der leder efter et sommerhus uden for mange dikkedarer. Sådan ét, der er enkelt og hyggeligt indrettet, og hvor formålet med ferien er at slappe af og nyde tiden sammen. I kan hygge jer med brætspil, gode bøger og ild i brændeovnen – og eventuelt en god film, for stuen er udstyret med et TV med parabol. En del af tiden kan også bruges i den åbne køkkenafdeling, hvor I kan diske op med lækkerier til alle måltider. Nattesøvnen kommer til at foregå på de tre soveværelser, der i alt byder på fire sengepladser, og på badeværelset kan I blive frisket op med et morgenbrusebad, inden feriedagen for alvor begynder.

Nyd livet udenfor
Skinner sommersolen, kan morgenmaden blive serveret på terrassen. Faktisk er der to terrasser at vælge imellem: En østvendt, der netop ligger godt i forhold til dagens tidlige solstråler, og en sydvendt terrasse, som er både stor, solrig og delvist overdækket. Den store grund er enkelt anlagt med græsplæne og randbeplantning, og så er der for øvrigt en carport til bilen.

Kom tæt på de lokale oplevelser
På den lukkede vej ånder alt fred og idyl – og det gør sig faktisk også gældende i Nr. Lyngby i det hele taget. Det lille sommerhusområde ligger naturskønt placeret lige ud til kysten, så der er kun en dejlig strand og stejle klitter mellem de små sommerhusveje og Vesterhavet. Udsigten over havet er forrygende fra toppen af klitterne, og ved nedkørslen til stranden er der etableret en solnedgangsplads, hvorfra I sikkert også kan kigge på paragliderne, der benytter sig af de gode vindforhold. I Nr. Lyngby finder du om sommeren en lille købmand og restaurant kun 400 m fra huset. Fra Nr. Lyngby er der kort køreafstand til både Løkken og Lønstrup, og det er også oplagt at besøge Rubjerg Knude, Børglum Kloster og Family Farm Fun Park, når I er på disse kanter.

Husk, at du altid kan låne trækvogne, barnestole og barnesenge hos os i Løkken. Du kan hente dem direkte på bureauet og returnere dem til os igen, når din ferie er vel overstået.


Rumindretning

  • Soveværelse
    • Dobbeltseng - 1x160x200
  • Soveværelse
    • Enkelt seng - 1x90x200
  • Soveværelse
    • Enkelt seng - 1x90x200

Vores gæsteanmeldelser Eksterne anmeldelser

4,5
Baseret på 2 vurderinger
Sidste vurdering fra d. 12-07-2025
5
(1)
4
(1)
3
(0)
2
(0)
1
(0)
Kommentarer
Ingen vurderinger har kommentarer.

Faciliteter

  • Hus Info

    • Antal voksne
      4
    • Bruser
    • Byggeår
      1976
    • Grundareal / Naturgrund
      1258 m²
    • Husareal
      74 m²
    • Renoveringsår
      2022
    • WC
  • Afstande

    • Afstand golfbane
      6,4 km
    • Afstand indkøb / Helårsbutik
      5,2 km
    • Afstand restaurant
      5,6 km
    • Afstand strand / Sandstrand
      425 m
  • Energi / Opvarmning

    • Brændeovn
    • Elvarme
    • Varmepumpe / Med køl
  • Hårde hvidevarer

    • Elkedel
    • Emhætte
    • Kaffemaskine
    • Kogeplader
    • Køleskab med frys
      80
    • Opvaskemaskine
    • Ovn
    • Strygebræt
    • Strygejern
  • Multimedier

    • Dansk tv
    • Gratis Wi-Fi - Over 100 Mbit
    • Norsk TV
    • Parabol
    • Svensk TV
    • TV
    • Tysk TV
  • Ekstra

    • Barnestol
    • Golfferie
    • Vandrevenlig
  • Udenfor

    • Carport
    • Delvis overdækket terrasse
    • Grill
    • Havemøbler
    • Liggestole
      2
    • Parasol
      2
    • Parkering på grunden
    • Åben terrasse
  • Diverse

    • Afmærkede vandreruter i nærheden
    • Tørrestativ / Tørresnor
  • Regler

    • Husdyr ikke tilladt
    • Opladning af elbil tilladt / Lader til elbil forefindes (Type 2 stik, inklusiv kabel)
    • Rygning ikke tilladt
  • Pris inklusiv

    • Slutrengøring inkl.
    • Vand inkl.
  • GAMMEL

    • Radio

Miniferie

Der er begrænset mulighed for miniferie hele året, typisk uden for højsæsonen.

Priser og kalender

Kalender

Ankomst
Næste
  • april 2026
    mationtofr
    1412345
    156789101112
    1613141516171819
    1720212223242526
    1827282930
    19
  • maj 2026
    mationtofr
    18123
    1945678910
    2011121314151617
    2118192021222324
    2225262728293031
    23
   Se om emnet er ledigt på den valgte dato
Ledig
Optaget
   Ankomst mulig
Varighed
Personer

Pris

Periode
Ankomst
Afrejse
Varighed
1 uge
Personer
Ingen personer er valgt

Bemærk

Ankomst er ikke valgt.
Der er ikke valgt personer.
Aftale- og lejebetingelser