Luksuriøst sommerhus med spa og skøn terrasse

Sommerhus - 8 personer - Helledievej - Nr. Lyngby - 9480 - Løkken

8 personer
Emne nr.: 122-LK1650
Moderne sommerhus i Nr. Lyngby med både indendørs og udendørs spabad, tæt på strand og naturskønne omgivelser.
  • Soverum 4
  • Badeværelser 2
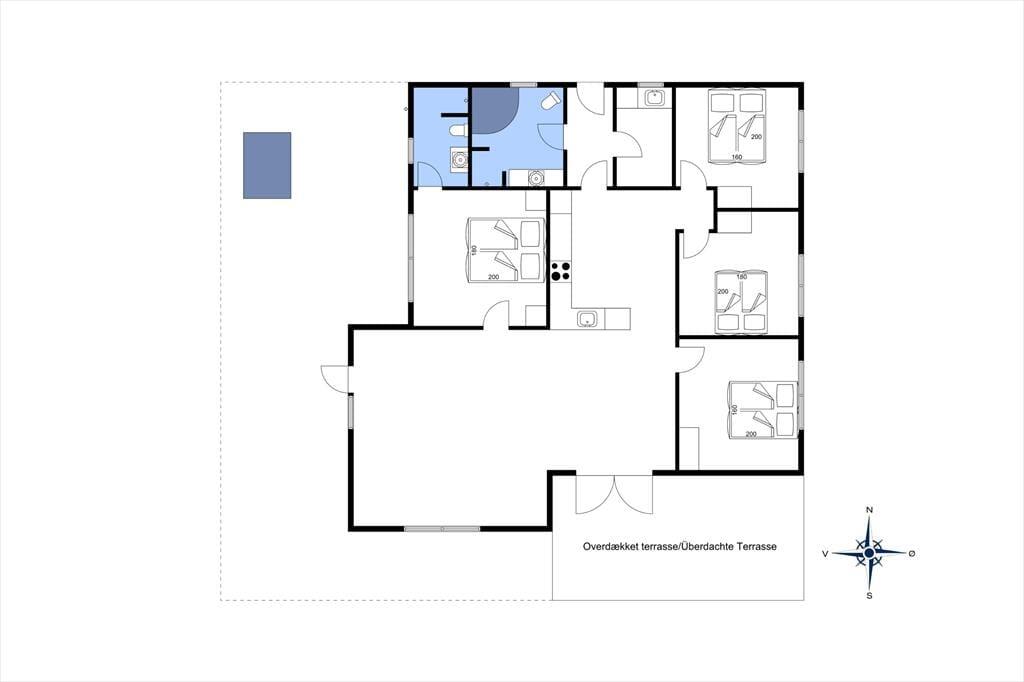
  • Boligareal 122 m²
  • Grundareal 1.726 m²
  • Husdyr 2
  • Tilbyder miniferie Ja
  • Afstand vand 750 m
  • Afstand indkøb 5 km
  • Spa Ja
  • Highspeed internet Ja
  • Vaskemaskine Ja
  • Tørretumbler Ja
  • Opvaskemaskine Ja
  • Ikkeryger Ja
  • Energivenligt Ja

Beskrivelse

Det søde ferieliv får de bedste betingelser her på Helledievej i Nr. Lyngby: Dette sommerhus er nemlig superflot, ekstremt velholdt og særdeles lækkert indrettet, blandt andet med spabad indefor såvel som ude på terrassen.

Velkommen indenfor
Med 122 m2, der blandt andet byder på fire soveværelser og to badeværelser, er der masser af plads til hele familien – eller måske endda to børnefamilier, hvis I gerne vil holde ferie sammen med gode venner. Under alle omstændigheder kan I se frem til at tilbringe dagene i stilfulde og komfortable rammer, for huset er et moderne byggeri med mange lækre detaljer. Eksempelvis er der gulvvarme i alle rum, hvilket giver et behageligt indeklima, og de store vinduespartier og lyse farvetoner bidrager til den dejlige rumfornemmelse. Stuen er som skabt til hyggelige stunder i sofaafdelingen og lækre middage ved langbordet, og i det åbne køkken kan I sagtens være flere om at kokkerere. Trænger I til total afslapning, kan det foregå i spabadet på det største badeværelse.

Nyd livet udenfor
Den tilbagelænede luksustilværelse kan også udspille sig i det fri, for på den store, afskærmede terrasse står en lækker standvandsspa. Det er herligt at sidde her i fredelige omgivelser og under den store himmel – og det er noget, I kan gøre i snart sagt al slags vejr. Skinner sommersolen, kan I også slænge jer i havemøblerne, mens børnene gynger, hopper i trampolin eller boltrer sig på den store græsplæne. Efter leg og solbadning kan I blive frisket op under den udendørs bruser, inden I samles til frokost på en af de dejlige terrasser.

Kom tæt på de lokale oplevelser
Sommerhuset ligger smukt placeret i udkanten af Nr. Lyngby, så omgivelserne er fredelige og børnevenlige. Samtidig er der ikke langt til kysten og Vesterhavet, som må siges at være noget af et tilløbsstykke på disse kanter. Den lokale strand er dog ikke så velbesøgt som Løkken Strand, der ligger få kilometer sydpå: Med andre ord kan I nyde badeturene og de smukke solnedgange i ro og mag her i det gamle fiskerleje, og hvis der skal være mere gang i den, kan I hurtigt køre til Løkken og få badebystemning for alle pengene. Er I mere i humør til storslået natur, kan I tage nordpå til Rubjerg Knude og lade jer imponere over det enorme sandlandskab og den smukke havudsigt.

Husk, at du altid kan låne trækvogne, barnestole og barnesenge hos os i Løkken. Du kan hente dem direkte på bureauet og returnere dem til os igen, når din ferie er vel overstået.

Huset har et standvands-spa, som vi gerne vil gøre klar til jer ved ankomsten. Af hensyn til miljøet og udgiften til opvarmning, vil vi meget gerne have besked senest 1 uge inden jeres ankomst, hvis I IKKE ønsker at benytte spabadet. På forhånd tak for hjælpen.


Rumindretning

  • Soveværelse
    • Dobbeltseng - 1x160x200
  • Soveværelse
    • Dobbeltseng - 1x180x200
  • Soveværelse
    • Dobbeltseng - 1x160x200
  • Soveværelse
    • Dobbeltseng - 1x180x200

Vores gæsteanmeldelser Eksterne anmeldelser

4,7
Baseret på 3 vurderinger
Sidste vurdering fra d. 27-07-2025
5
(2)
4
(1)
3
(0)
2
(0)
1
(0)
Kommentarer
Ingen vurderinger har kommentarer.

Faciliteter

  • Hus Info

    • 2 x Bruser
    • 2 x WC
    • Antal husdyr
      2
    • Antal voksne
      8
    • Byggeår
      2012
    • Grundareal / Naturgrund
      1726 m²
    • Husareal
      122 m²
    • Indendørs spabad
    • Renoveringsår
      2020
    • Udendørs spabad / Standvandsspa
  • Afstande

    • Afstand golfbane
      6 km
    • Afstand indkøb / Helårsbutik
      5 km
    • Afstand restaurant
      750 m
    • Afstand strand / Sandstrand
      750 m
  • Energi / Opvarmning

    • Varmepumpe / Uden køl
      Luft - vand
  • Hårde hvidevarer

    • Elkedel
    • Emhætte
    • Kaffemaskine
    • Kogeplader
    • Køleskab med frys
    • Mikroovn
    • Opvaskemaskine
    • Ovn
    • Strygebræt
    • Strygejern
    • Tørretumbler
    • Vaskemaskine
  • Multimedier

    • Dansk tv
    • Gratis Wi-Fi - Over 20 Mbit
    • Norsk TV
    • Svensk TV
    • TV
    • Tysk TV
  • Ekstra

    • 2 x Barnestol
    • Golfferie
    • Vandrevenlig
  • Udenfor

    • Delvis overdækket terrasse
    • Grill
      Gasgrill
    • Gynge
    • Havemøbler
    • Parasol
      2
    • Parkering på grunden
    • Trampolin
    • Udendørs bruser
    • Åben terrasse
  • Diverse

    • 8 x Gulvvarme
    • Afmærkede vandreruter i nærheden
  • Regler

    • Opladning af elbil ikke tilladt
    • Rygning ikke tilladt
  • Pris inklusiv

    • Slutrengøring inkl.
  • GAMMEL

    • Radio
      Bluetooth

Miniferie

Der er begrænset mulighed for miniferie hele året, typisk uden for højsæsonen.

Priser og kalender

Kalender

Ankomst
Næste
   Se om emnet er ledigt på den valgte dato
Ledig
Optaget
   Ankomst mulig
Varighed
Personer

Pris

Periode
Ankomst
Afrejse
Varighed
1 uge
Personer
Ingen personer er valgt

Bemærk

Ankomst er ikke valgt.
Der er ikke valgt personer.
Aftale- og lejebetingelser