Stort sommerhus med pool og skøn have

Sommerhus - 16 personer - Østerhusevej - Lohals - 5953 - Tranekær

16 personer
Emne nr.: 121-75-6030
Stort sommerhus nær havet med egen svømmehal, sauna og stor have med aktiviteter.
  • Soverum 6
  • Badeværelser 3
  • Boligareal 247 m²
  • Grundareal 2.836 m²
  • Husdyr Ikke tilladt
  • Tilbyder miniferie Ja
  • Afstand vand 525 m
  • Afstand indkøb 1.450 m
  • Swimmingpool inde Ja
  • Sauna Ja
  • Internet Ja
  • Parabol/kabel TV Ja
  • Brændeovn Ja
  • Aktivitetsrum Ja
  • Gode fiskeforhold Ja
  • Vaskemaskine Ja
  • Tørretumbler Ja
  • Opvaskemaskine Ja
  • Ikkeryger Ja
  • Energivenligt Ja

Beskrivelse

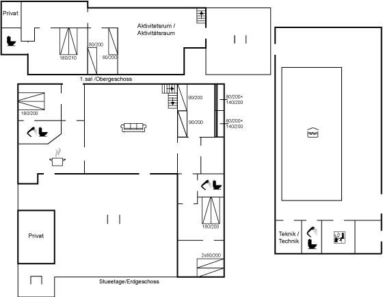
Et stort og veludstyret sommerhus med egen svømmehal! Ved det skønne Østerhuse øst for Lohals på Nordlangeland, ligger dette netop helt istandsatte store sommerhus. Huset der er i to plan, har i stueplan flere værelser, hvoraf det ene er indrettet som et stort børne-/ungdomsværelse med bl.a. 2 store køjesenge med dobbeltseng forneden. Herudover findes der bl.a. et nyt stort køkken, en stor stue og to badeværelser. 1. salen indeholder 2 værelser, et gæstetoilet og et aktivitetsrum med flere aktiviteter. Herfra er der udgang til en stor, skøn tagterrasse med lækre loungemøbler, hvorfra man kan nyde både solopgangen og solnedgangen samt kig til vandet. Bagved huset er der stort terrasseareal og der er herfra udgang til den store have, som bl.a. byder på mange gamle flotte træer, et stort bålsted, legetårn med rutchebane, gynger, sandkasse og i øvrigt masser af plads til udendørs aktiviteter. Ved siden af huset ligger den store svømmehal, hvor I bl.a. finder den store pool. Bemærk at poolen i den dybe ende er 2,5 meter dyb, hvorfor børn ikke må efterlades uden voksnes opsyn. Svømmehallen indeholder desuden sauna og badeværelse. Hele svømmehallen er i starten af 2026 blevet totalt renoveret indenfor, så alt nu fremstår helt nyt. Bygningen er desuden blevet kraftigt energioptimeret med isolering i gulv og ydervægge, nye 3-lags energiruder og døre, ny affugter m.m. hvorfor energiforbruget kan forventes at være reduceret kraftigt i forhold til tidligere. I kort gåafstand fra huset ligger en dejlig badestrand, hvor der i sommersæsonen er opsat en badebro. Bemærk, at det ene værelse i stueplan fungerer som gennemgangsværelse til det bagerste værelse.

Indretning
Denne tidligere landejendom egner sig til 16 personer samt 2 børn op til 3 år. Ferieboligen er på 247 m² og er bygget i 1885. I 2023 gennemgik ferieboligen en renovering. Det er ikke tilladt at medbringe husdyr. Ferieboligen er udstyret med 1 energivenlig luft til vand varmepumpe. Ferieboligen har vaskemaskine. Tørretumbler. Frysekapacitet på 100 liter. Endvidere pejs. Til de små er der 2 stk. barnestole.

Udenfor
Ferieboligen er beliggende på en 2836 m² stor havegrund. Der er 525 m til havet. Der er en badebro i nærheden. Nærmeste forretning er beliggende i en afstand af 1450 m. Til ferieboligen hører åbent terrasseareal. Udgang til altan. Gynge. Sandkasse. Legetårn. Rutchebane. Bålsted. 2 stk. grill til rådighed. Parkering ved ferieboligen.

Swimmingpool
I den indendørs swimmingpool er der mulighed for leg og hyggeligt samvær. Swimmingpoolen måler op til 5 m i bredden, 10 m i længden og den er fra 0,8 m til 2,5 m dyb. Der er gulvvarme i swimmingpoolområdet.

Aktivitetsrum
I aktivitetsrummet er der følgende udstyr: Poolbord. Dart. Bordfodbold.

Soveforhold
Der er i alt 6 soveværelser. Sovepladserne fordeler sig på: 6 sovepladser i dobbeltsenge. 6 sovepladser i enkeltsenge. 4 sovepladser i køjesenge. Derudover er der 2 stk. barnesenge.

Køkken
Køkkenet er udstyret med 2 køleskabe. Der er 5 induktionskogeplader, 2 varmluftovne, mikrobølgeovn samt opvaskemaskine.

Toilet og bad
Der er 3 badeværelser med bruseniche og 4 toiletter. Der er gulvvarme på 2 badeværelser. I saunaen er der mulighed for afslapning.

Multimedier
I ferieboligen findes der 3 TV, heraf 1 Smart-TV. 3 Chromecasts. Radio. Der er mindst 4 danske kanaler. 1-3 svenske kanaler. 1-3 norske kanaler. Mindst 4 tyske kanaler. Der er trådløst internet til rådighed.

Værd at vide
Ingen udlejning til ungdomsgrupper, hvor alle er 15-25 år. Rygning ikke tilladt. Ved overtrædelse af forbuddet opkræves et gebyr på minimum DKK 3.000,-.

Vores gæsteanmeldelser Eksterne anmeldelser

4,0
Baseret på 6 vurderinger
Sidste vurdering fra d. 03-11-2025
5
(2)
4
(3)
3
(0)
2
(1)
1
(0)
Kommentarer
2 vurderinger har kommentarer på dansk.
2 vurderinger har komentarer på andre sprog.
5 voksne 0 børn 0 husdyr 2 overnatninger 2025 oktober
Meget slidt. Pool område slidt og MEGET frastødende
13 voksne 3 børn 0 husdyr 3 overnatninger 2024 maj
Der manglede intet i huset og meget hyggeligt
4,5
Generelt:
4,6
Service på stedet:
4,6
Værdi for pengene:
4,2
Beliggenhed:
4,6
1 ekstern anmeldelse
4,0
Generelt:
5
Service på stedet:
2
Værdi for pengene:
4
Beliggenhed:
5
Generel:
Das Haus ist wirklich schön und geschmackvoll eingerichtet. Die Größe war für uns optimal und man konnte die Zeit mit Kamin, Billard, Dart und Schwimmbad genießen. Der Weg zum Wasser ist ein kurzer Spaziergang. Leider gab es auch negative Dinge die ich anmerken muss. Wir haben im Voraus bestätigt bekommen, dass ein Gasgrill und Kohlegrill verfügbar sind. Diese waren jedoch so verdreckt, dass sie nicht zu benutzen waren. Die Sauna war leider nicht funktionsfähig, obwohl es ein sehr wichtiger Aspekt für unsere Buchung war. Nachdem wir uns darüber im Nachhinein beschwert haben wurden wir mit einem 100€ Gutschein für die nächste Buchung abgespeist. Abschließend kann ich das Haus sehr empfehlen, man sollte im voraus nur sichergehen, dass alles funktionsfähig ist.

Faciliteter

  • Adgang til ferieboligen

    • Nøgleboks med kode
  • Aktivitetsrum

    • Aktivitetsrum
    • Bordfodbold
    • Dart
    • Poolbord
  • Bemærk

    • Aktivitetshus
    • Ingen ungdomsgrupper efter anmodning
    • Lystfiskerhus
    • Rygning er forbudt
  • Detaljer lystfiskerhuse

    • Indendørs bord med skærebræt
  • Indretning

    • Antal børn (0-3 år)
      2
    • Antal voksne inkl. 4-11 år
      16
    • Bebygget areal
      247 m²
    • Byggeår
      1885
    • Frysekapacitet (antal liter)
      100
    • Højstol
      2
    • Pejs
      1
    • Renovering
      2023
    • Tidligere gård
    • Tørretumbler
      1
    • Varmepumpe
    • Varmepumpe luft til vand
    • Vaskemaskine
      1
  • Køkken

    • Antal induktionskogeplader
      5
    • Køleskab
      2
    • Mikrobølgeovn
      1
    • Opvaskemaskine
      1
    • Varmluftovn
      2
  • Multimedier

    • > 3 danske kanaler
    • > 3 tyske kanaler
    • 0-3 norske kanaler
    • 0-3 svenske kanaler
    • Antal tv'er
      3
    • Chromecast
      3
    • Radio
    • Smart-Tv
      2
    • Trådløst internet
  • Soveforhold

    • Antal soveværelser
      6
    • Barneseng
      2
    • Dobbeltseng (antal sovepladser)
      6
    • Enkeltseng (antal sovepladser)
      6
    • Køjeseng (antal sovepladser)
      4
  • Swimmingpool

    • Gulvvarme
    • Indendørs swimmingpool
    • Svømmebassinets bredde
      5
    • Svømmebassinets dybde
      0,8
    • Svømmebassinets længde
      10
  • Toilet og bad

    • Antal badeværelser
      3
    • Antal toiletter
      4
    • Brusekabine
    • Gulvvarme
      2
    • Sauna
  • Udenfor

    • Anlagt have
    • Butik
      1,5 km
    • Bålplads
    • Glide
    • Grill
      1
    • gynge
    • Hav
      525 m
    • Legetårn
    • Parkeringsplads ved huset
    • Sandkasse
    • Størrelse af grunden
      2836 m²
    • Terrasse
    • Terrasse
    • Træmole

Miniferie

Der er begrænset mulighed for miniferie hele året, typisk uden for højsæsonen.

Priser og kalender

Kalender

Ankomst
Næste
   Se om emnet er ledigt på den valgte dato
Ledig
Optaget
   Ankomst mulig
Varighed

Pris

Periode
Ankomst
Afrejse
Varighed
1 uge
Personer
Op til 16 personer

Bemærk

Ankomst er ikke valgt.
Aftale- og lejebetingelser