Nyrenoveret sommerhus med charme

Sommerhus - 4 personer - Egernvej - Lodbjerg Hede - 6950 - Ringkøbing

4 personer
Emne nr.: 328-136946
Velkommen til det nyrenoverede sommerhus på Egernvej 3, perfekt til en afslappende ferie nær Vesterhavet.
  • Soverum 2
  • Badeværelser 1
  • Boligareal 74 m²
  • Grundareal 2.051 m²
  • Husdyr 1
  • Tilbyder miniferie Nej
  • Afstand vand 1 km
  • Afstand indkøb 800 m
  • Highspeed internet Ja
  • Opvaskemaskine Ja
  • Ikkeryger Ja
  • Ladestander til elbil Ja

Beskrivelse

På Egernvej 3 nær Søndervig står dette nyrenoverede sommerhus fra 2024 lyst og klar til en ferie for op til 4 personer og 1 hund – et oplagt feriehus til et par eller en lille familie. I sommerhuset venter jer en lys indretning, og udendørs har I en sydvendt terrasse, der er delvis overdækket.

Hvis I ankommer i en elbil, er det muligt at lade den op direkte ved feriehuset.

Lys indretning på Egernvej 3

Sommerhuset er blevet totalt renoveret i 2024. Her venter jer en lys og pæn indretning, hvor I vil komme til at føle jer hjemme med det samme, når I træder indenfor døren. 

Feriehusets hjerte er køkkenalrummet, hvor I uden tvivl kommer til at tilbringe mange dejlige hyggestunder i løbet af jeres ferie. Her kan I spille spil omkring spisebordet, lave et lækkert måltid i køkkenet og meget mere. Det er samlingspunktet, hvor hele familien kan nyde hinandens selskab

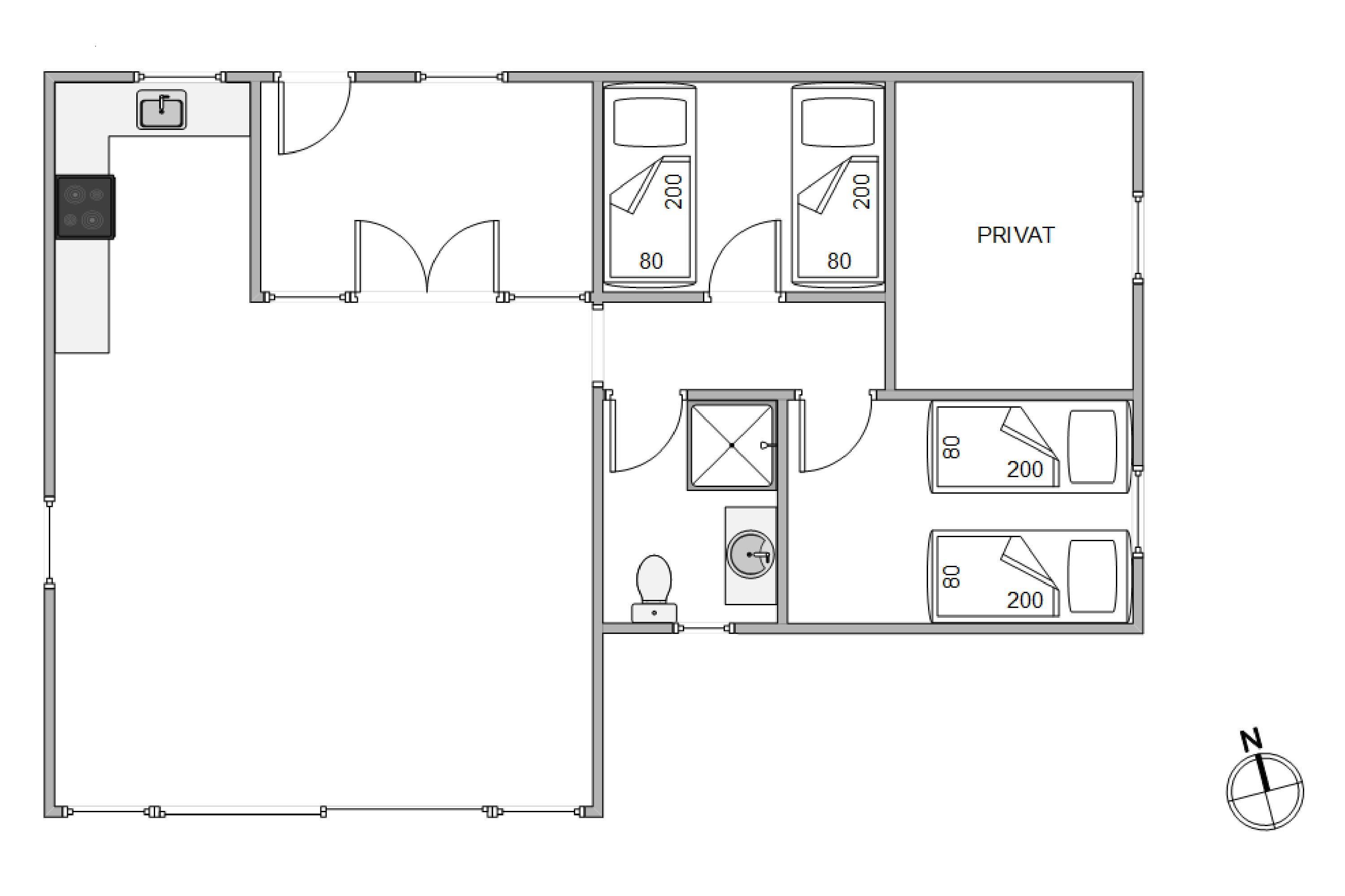
Foruden alrummet byder sommerhuset også på 2 gode soveværelser, der er indrettet med enkeltsenge. Her har I mulighed for at få ladet batterierne op til en ny dag. I køkken - og gangområde er der trægulve og der er gulvtæpper i stue og soverum.

Lækker plænegrund med dejligt terrasseområde

Feriehuset på Egernvej 3 ligger på en stor plænegrund. Her finder I en skøn sydvendt terrasse, som I kan rykke ferien ud på, når ferievejret er varmt og solrigt. Her står der havemøbler og liggestole til jeres rådighed, som I kan læne jer tilbage i. 
Terrassen er delvis overdækket, og I har her mulighed for at finde en god læ plet.

I har også mulighed for at tilberede et lækkert aftensmåltid på sommerhusets tilhørende grill, som I efterfølgende kan nyde på terrassen.

Med ca. 1000 meter til Vesterhavet fra jeres ferieadresse på Egernvej 3, kan I nyde gåture på stranden i det bløde sand, tage en dukkert i havet eller blot dyppe tæerne og meget mere. Uanset årstiden er det værd at tage en tur til Vesterhavet. Her kan I ydermere opleve de smukke og betagende solnedgange.

I har desuden kun 1200 meter til jeres nærmeste indkøbsmulighed fra feriehuset. I Søndervig kan I handle ind i supermarkedet Meny og specialbutikkerne, og ellers er der også skønne spisesteder i byen, som I kan besøge på de dage, hvor I selv vil slippe for madlavningen.

Er I til en lidt mere aktiv ferie, ligger der en golfbane kun 50 meter fra sommerhuset. Her er der rig mulighed for at udfordre hinanden, og se hvem der er feriens golf mester.

Faciliteter

  • Opholdsrum

    • Gulv: Tæppe
    • Fladskærms-TV
      1
    • Ekstra varmekilder
  • Soverum

    • Gulv: Tæppe
    • Enkeltsenge
      4
    • Sovepladser
      4
    • Soverum
      2
    • 1. soverum/sengestørrelser
      2x80x200
    • 2. soverum/sengestørrelser
      2x80x200
  • Køkken

    • Komfur: El m. ovn
    • Køleskab m. frostboks
    • Opvaskemaskine
  • Baderum

    • Antal badeværelser
      1
  • Objektinfo - Inde

    • Areal: Hus m²
      74
    • Byggeår
      1985
    • Husdyr tilladt
    • Husdyr antal, max
      1
    • Ikke ryger hus
    • Personantal
      4
    • Renoveret
      2024
    • Danske TV-kanaler (Betalingskanaler)
    • Tyske tv-programmer
    • Varme: Elvarme
    • Gratis fiber Internet
    • Jubilæumsmønt er udleveret
  • Objektinfo - ude

    • Afstand hav
      1 km
    • Afstand indkøb
      800 m
    • Areal: Grund m²
      2051
    • Grill
    • Havemøbler
    • Solvogne
    • Terrasse: Afskærmet
    • Terrasse: Overdækket
    • Plænegrund
    • Affald hentes:
      Torsdag
    • Affald: Helårstømning
    • Affald: Liter
      240
    • Ladestik til el-bil
  • Koncepter

    • Skiftedag: Fredag

Priser og kalender

Kalender

Ankomst
Næste
  • december 2025
    mationtofr
    491234567
    50891011121314
    5115161718192021
    5222232425262728
    1293031
    2
  • januar 2026
    mationtofr
    11234
    2567891011
    312131415161718
    419202122232425
    5262728293031
    6
   Se om emnet er ledigt på den valgte dato
Ledig
Optaget
   Ankomst mulig
Varighed

Pris

Periode
Ankomst
Afrejse
Varighed
Personer
Op til 4 personer

Bemærk

Ankomst er ikke valgt.
Varighed er ikke valgt.
Aftale- og lejebetingelser