Moderne byhus tæt på børnevenlig strand i Liseleje

Sommerhus - 4 personer - Lisegårdsvej - 3360 - Liseleje

4 personer
Emne nr.: 090-59999
Moderne byhus i Liseleje med terrasse, privat balkon og tæt på børnevenlig strand – ideelt til familier.
  • Soverum 2
  • Badeværelser 1
  • Boligareal 74 m²
  • Husdyr Ikke tilladt
  • Tilbyder miniferie Ja
  • Afstand vand 700 m
  • Afstand indkøb 2 km
  • Highspeed internet Ja
  • Ikkeryger Ja
  • Energivenligt Ja

Beskrivelse

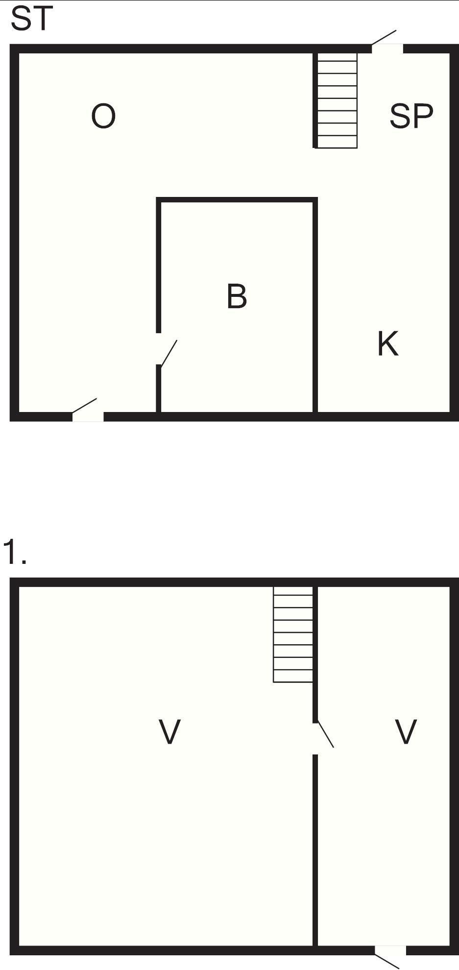
Dette charmerende byhus, bygget i 2024 og udlejes fra midten af januar 2025, er det perfekte fristed for familier, der søger komfort og stil. Med 74 m² omhyggeligt designet plads har det et lyst køkken / alrum, der problemfrit åbner til en solrig terrasse, ideel til udendørs spisning og afslapning. Den hyggelige tv-stue indbyder til at slappe af efter en dag på eventyr, og det smagfuldt flisebelagte badeværelse giver et strejf af luksus.

På første sal er der et charmerende »master«-soveværelse i den ene ende, mens der i den anden side er plads til to komfortable enkeltsenge. Det smukke karnapvindue byder på en fantastisk udsigt og fører ud til en privat balkon. Huset er udstyret med moderne bekvemmeligheder som gulvvarme, en luft/vand-varmepumpe og en anlagt have på 145 m², der skaber en varm og indbydende atmosfære.

Dette byhus ligger kun 700 meter fra Liseleje Strand, der er kendt for sine børnevenlige sandstrande, og er et ideelt sted for familier at nyde en strandferie. Uanset om du ønsker at udforske lokalområdet eller bare slappe af, er dette hus den perfekte base for din ferie.

1 Opholdsstue: Tv
2 Soveværelser: (1DS)+(2S)
Køkken: Ovn, køle-frys
Bad/wc: Wc, håndvask, bruser
1 Udeareal: Havemøbler, kulgrill, Terrasse
Og: Gulvvarme, luft/vand varmepumpe, anlagt have 145 m2, sommerhusområde

Nøgleinformation
  • Nøglen til ferieboligen er til rådighed fra kl. 16:00 på indflytningsdagen.
  • Nøglen udleveres ved huset.
  • Dette hus er udstyret med smart lock

Faciliteter

  • Afstand

    • Indkøb
      2 km
    • Kyst
      700 m
    • Restaurant
      2 km
  • Bad

    • Bruser
    • Håndvask
    • WC
  • Diverse

    • Antal badeværelser
      1
    • Antal soveværelser
      2
    • Boligareal
      74 m²
    • Byggeår
      2024
    • Energihus
    • Højhastighedsinternet
    • Ikke ryger
    • Internet
    • Luft/vand varmepumpe
  • Indendørs

    • TV
  • Køkken

    • Køle-frys
    • Ovn
  • Udendørs

    • Bademuligheder (lavvandet)
    • Havemøbler
    • Terrasse
    • Trækulgrill

Miniferie

Der er begrænset mulighed for miniferie hele året, typisk uden for højsæsonen.

Priser og kalender

Kalender

Ankomst
Næste
   Se om emnet er ledigt på den valgte dato
Ledig
Optaget
   Ankomst mulig
Varighed

Pris

Periode
Ankomst
Afrejse
Varighed
1 uge
Personer
Op til 4 personer

Bemærk

Ankomst er ikke valgt.
Aftale- og lejebetingelser