Hyggeligt sommerhus med terrasse nær Lønstrup

Sommerhus - 4 personer - Sneppevej - Lønstrup - 9800 - Hjørring

4 personer
Emne nr.: 123-LN729
Hyggeligt sommerhus i rolige omgivelser nær Lønstrup med terrasse, petanquebane og gratis Wi-Fi.
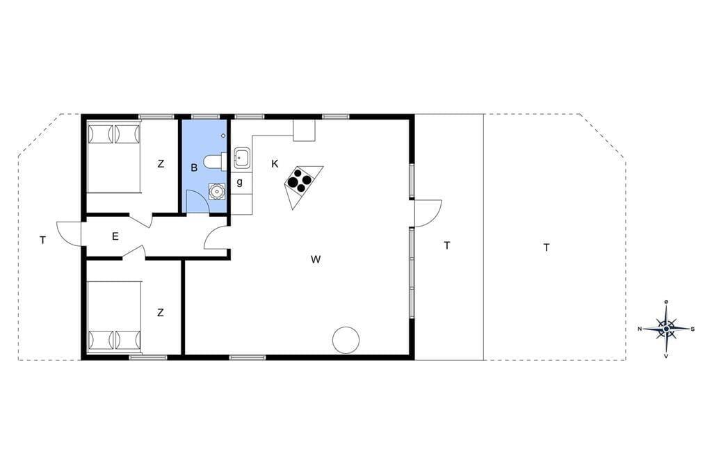
  • Soverum 2
  • Badeværelser 1
  • Boligareal 58 m²
  • Grundareal 1.269 m²
  • Husdyr Ikke tilladt
  • Tilbyder miniferie Ja
  • Afstand vand 960 m
  • Afstand indkøb 995 m
  • Highspeed internet Ja
  • Parabol/kabel TV Ja
  • Brændeovn Ja
  • Vaskemaskine Ja
  • Opvaskemaskine Ja
  • Ikkeryger Ja

Beskrivelse

Skønt sommerhus på rolig beliggenhed i udkanten af feriebyen Lønstrup
De helt ideelle rammer for den lille familie eller parret, som ønsker fred og ro!

Velkommen indenfor
Dettes sommerhus hører på papiret til et af de mindre, men størrelsen udlignes helt bestemt af den hyggelige og varme stemning, som man møder ved det første skridt ind i entreen. Med to værelser og fire sengepladser er her fint plads til en lille familie, og helt ideelt for et par, som gerne vil lidt væk fra hverdagens høje tempo. Sommerhuset har et stort og åbent opholdsrum med højt til loftet og et dejligt lysindfald. Køkkenet er placeret i det ene hjørne, kun adskilt fra stuen med spisebord, brændeovn og tv af en halvmur. Desuden også et pænt badeværelse med bruser. Sommerhuset er fint udstyret med vaskemaskine og opvaskemaskine, så man ikke behøver bruge mere tid på praktiske gøremål end normalt, og endelig kan det nævnes, at det er muligt at benytte det trådløse internet uden beregning, husk blot pc eller tablet hjemmefra.

Nyd livet udenfor
Sommerhuset ligger på en rolig havegrund med plæne og godt afskærmet af høje træer. Til børnene er her gyngestativ, mens de voksne kan tage en dyst eller to på petanquebanen. Mod vest og med udgang fra stuen ligger en dejlig terrasse med en overdækket del; her er lagt op til mange hyggelige stunder, både i løbet af dagen og på de lange, lune aftener.

Kom tæt på de lokale oplevelser
Fra sommerhuset er der 10 minutters gang til Lønstrup By, der er kendt for sin hyggelige og charmerende stemning, de mange kunsthåndværkere, gallerier og anerkendte spisesteder; her er store oplevelser i vente. Vesterhavet ligger en lille kilometer væk, og stranden har fine badeforhold med dejligt, blødt sand og smukt, blåt vand. I kort afstand kan man besøge Skallerup Seaside Resort med badeland, legeland, wellnessafdeling og mange andre sjove aktiviteter, og her er også en lille købmand og flere restauranter.

Husk, at du altid kan låne trækvogne, barnestole og barnesenge hos os i Lønstrup. Du kan hente dem direkte på bureauet og returnere dem til os igen, når din ferie er vel overstået.

Vores gæsteanmeldelser Eksterne anmeldelser

3,5
Baseret på 2 vurderinger
Sidste vurdering fra d. 08-07-2024
5
(0)
4
(1)
3
(1)
2
(0)
1
(0)
Kommentarer
1 vurdering har kommentar på dansk.
2 voksne 0 børn 0 husdyr 7 overnatninger 2024 juni
For lidt skabsplads til tøj

Faciliteter

  • Hus Info

    • Antal voksne
      4
    • Bruser
    • Byggeår
      1980
    • Grundareal / Have
      1269 m²
    • Husareal
      58 m²
    • WC
  • Afstande

    • Afstand golfbane
      3,2 km
    • Afstand indkøb / Helårsbutik
      995 m
    • Afstand restaurant
      1,3 km
    • Afstand strand / Sand-/stenstrand
      960 m
  • Energi / Opvarmning

    • Brændeovn
    • Elvarme
  • Hårde hvidevarer

    • Elkedel
    • Emhætte
    • Kaffemaskine
    • Komfur
    • Køleskab med frys
    • Mikroovn
    • Opvaskemaskine
    • Vaskemaskine
  • Multimedier

    • Dansk tv
      Inkl. TV2
    • Gratis Wi-Fi - Over 20 Mbit
    • Norsk TV
    • Parabol
    • Svensk TV
    • TV
    • Tysk TV
  • Ekstra

    • Barneseng
    • Barnestol
    • Golfferie
  • Udenfor

    • Grill
    • Gynge
    • Havemøbler
    • Liggestole
    • Overdækket terrasse
    • Parkering på grunden
    • Petanque
    • Åben terrasse
  • Diverse

    • 2 x Dobbeltseng 1x140x200
  • Regler

    • Husdyr ikke tilladt
    • Opladning af elbil ikke tilladt
    • Rygning ikke tilladt
  • Pris inklusiv

    • Slutrengøring inkl.
    • Vand inkl.
  • GAMMEL

    • CD
    • Radio

Miniferie

Der er begrænset mulighed for miniferie hele året, typisk uden for højsæsonen.

Priser og kalender

Kalender

Ankomst
Forrige Næste
   Se om emnet er ledigt på den valgte dato
Ledig
Optaget
   Ankomst mulig
Varighed

Pris

Periode
Ankomst
Afrejse
Varighed
1 uge
Personer
Op til 4 personer

Bemærk

Ankomst er ikke valgt.
Aftale- og lejebetingelser