Lyst sommerhus med stor terrasse nær Lønstrup

Sommerhus - 6 personer - Rypevej - Lønstrup - 9800 - Hjørring

6 personer
Emne nr.: 123-LN1888
Skønt sommerhus med lys atmosfære og stor træterrasse tæt på Lønstrup centrum og natur.
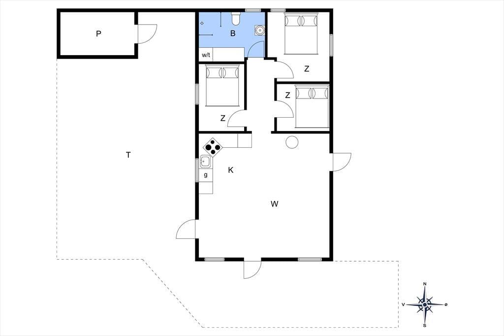
  • Soverum 3
  • Badeværelser 1
  • Boligareal 75 m²
  • Grundareal 1.100 m²
  • Husdyr Ikke tilladt
  • Tilbyder miniferie Nej
  • Afstand vand 1.200 m
  • Afstand indkøb 1.300 m
  • Highspeed internet Ja
  • Parabol/kabel TV Ja
  • Brændeovn Ja
  • Vaskemaskine Ja
  • Tørretumbler Ja
  • Opvaskemaskine Ja
  • Ikkeryger Ja

Beskrivelse

Skønt sommerhus med lys atmosfære og gåafstand til Lønstrup
Rummenes lyse atmosfære, det komfortable møblement og det lækre terrassemiljø i den grønne have – det er nogle af kvaliteterne ved dette skønne sommerhus, der ligger på Rypevej i bekvem gåafstand fra Lønstrups bymidte. Og dermed er det et oplagt valg til dig, der leder efter en rar og indbydende base at slappe af i sammen med familie eller venner.

Velkommen indenfor
Inden døre i sommerhuset er alle rum indrettet i en hyggelig og afslappet feriestil. Farvetonerne er lyse, og vinduerne sørger for, at du kan nyde både solstrålerne og udsigten til havens træer, mens du læser i sofaen eller prøver at slå dine kære i 500 og andre kortspil. Stuens brændeovn og det åbne køkken er med til at fuldende det dejlige helhedsindtryk, og takket være fladskærms-tv’et med Chromecast har du mulighed for at følge med i nyhederne eller slutte dagen af med en spændende film. Soveværelser er der tre af, og de er alle udstyret med gode dobbeltsenge, så alle kan sove komfortabelt.

Nyd livet udenfor
Skal der slappes af i det gode sommervejr, er husets store træterrasse perfekt til formålet: Den breder sig mod syd og vest, og der er flere skønne opholdspladser, uanset om du vil sidde under pergolaen eller helt under åben himmel. Der er solsenge, træbord og andre gode havemøbler til rådighed, og hvis du drømmer om at kunne byde familien på overdådige aftensmåltider tilberedt på grillen, kan det sagtens lade sig gøre. Mens du hygge dig med at kræse om maden, har resten af selskabet god plads til at lege og spille havespil på græsplænen på den store grund.

Kom tæt på de lokale oplevelser
Sommerhuset ligger i et roligt og naturskønt område tæt på Lønstrup By. Stranden har du også nem adgang til, hvis du følger stierne eller de små veje ud mod kysten – og hvis du ikke vil helt ned på sandet, kan du i stedet begive dig op på toppen af Lønstrup Klint for at beundre panoramaudsigten over kysten og skue langt ud over Vesterhavet. Lønstrup er en hyggelig by at holde ferie i, og så ligger den tilmed godt, hvis du vil bruge dagene på at udforske Nordjylland. Blandt andet har du nem adgang til Rubjerg Knude og til havnebyen Hirtshals med det populære akvarium Nordsøen Oceanarium, og køreturen til Skagen tager knap en time.

Husk, at du altid kan låne trækvogne, barnestole og barnesenge hos os i Lønstrup. Du kan hente dem direkte på bureauet og returnere dem til os igen, når din ferie er vel overstået.


Faciliteter

  • Hus Info

    • Antal voksne
      6
    • Bruser
    • Byggeår
      1987
    • Grundareal / Have
      1100 m²
    • Husareal
      75 m²
    • Renoveringsår
      2021
    • WC
  • Afstande

    • Afstand golfbane
      3 km
    • Afstand indkøb / Helårsbutik
      1,3 km
    • Afstand restaurant
      1,3 km
    • Afstand strand / Sandstrand
      1,2 km
  • Energi / Opvarmning

    • Brændeovn
    • Elvarme
  • Hårde hvidevarer

    • Elkedel
    • Emhætte
    • Kaffemaskine
    • Komfur
    • Køleskab med frys
    • Mikroovn
    • Opvaskemaskine
    • Strygebræt
    • Strygejern
    • Tørretumbler
    • Vaskemaskine
  • Multimedier

    • Chromecast
    • Dansk tv
    • Gratis Wi-Fi - Over 20 Mbit
    • Kabel-TV
    • Norsk TV
    • Svensk TV
    • TV
    • Tysk TV
  • Ekstra

    • Barnestol
    • Golfferie
  • Udenfor

    • 2 x Terrasse
    • Grill
    • Havemøbler
    • Liggestole
    • Parasol
    • Parkering på grunden
    • Sandkasse
  • Diverse

    • Dobbeltseng 140x200
    • Dobbeltseng 160x200
    • Dobbeltseng 180x200
  • Regler

    • Husdyr ikke tilladt
    • Opladning af elbil ikke tilladt
    • Rygning ikke tilladt
  • Pris inklusiv

    • Slutrengøring inkl.
    • Vand inkl.

Priser og kalender

Kalender

Ankomst
Forrige Næste
  • januar 2026
    mationtofr
    11234
    2567891011
    312131415161718
    419202122232425
    5262728293031
    6
  • februar 2026
    mationtofr
    51
    62345678
    79101112131415
    816171819202122
    9232425262728
    10
   Se om emnet er ledigt på den valgte dato
Ledig
Optaget
   Ankomst mulig
Varighed

Pris

Periode
Ankomst
Afrejse
Varighed
1 uge
Personer
Op til 6 personer

Bemærk

Ankomst er ikke valgt.
Aftale- og lejebetingelser