Alternative emner
Hyggelig feriebolig med havudsigt og stor terrasse
Sommerhus - 4 personer - Lønstrupvej 125B, tv. - Lønstrup - 9800 - Hjørring
4 personer
Emne nr.: 090-59871
Kalvestalden i Lønstrup er en charmerende feriebolig med havudsigt, moderne komfort og en stor privat terrasse med grill.
- Soverum 2
- Badeværelser 1
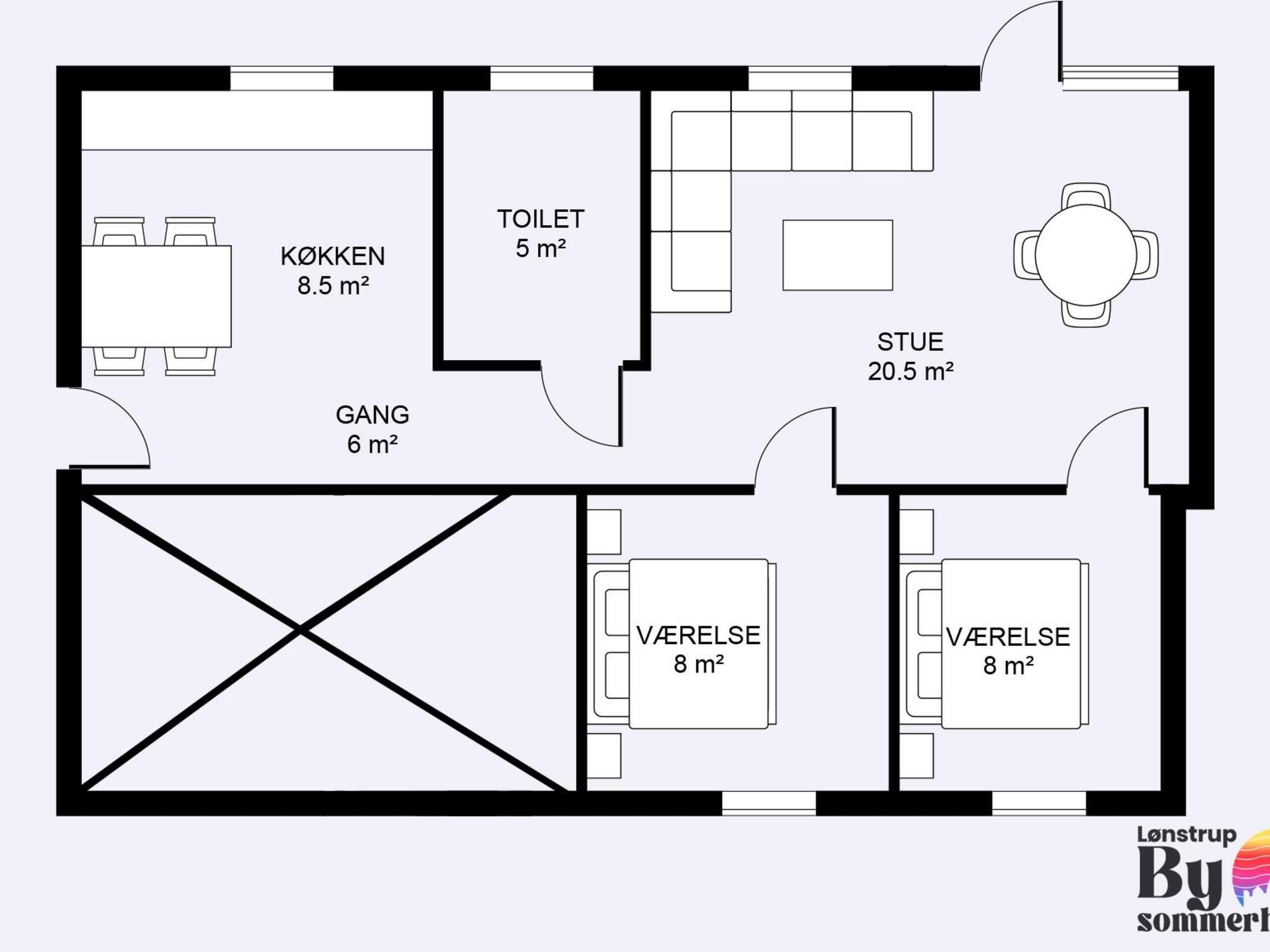
- Boligareal 60 m²
- Husdyr 2
- Tilbyder miniferie Ja
- Afstand vand 1.500 m
- Afstand indkøb 1.800 m
- Internet Ja
- Opvaskemaskine Ja
- Ikkeryger Ja
Beskrivelse
Kalvestalden - En hyggelig feriebolig
"Træd ind i Kalvestalden og mærk den indbydende atmosfære, hvor de gamle buede loftshvælvinger er bevaret og Lønstrups sjæl mærkes. Moderne komfort, herunder fuldt udstyret køkken og stilfulde møbler sikrer en afslappende ferie. Der er hurtigt wifi, apple-tv og masser af dvd-film og spil til hyggeaftener.
Udenfor kan I nyde den bredeste solnedgang eller grille fra den store, private terrasse.
Fra soveværelserne er en fortryllende havudsigt og fra stuen og køkkenet er der et roligt kig ud over marker og træer, der skaber en lille plet med læ - den perfekte oase ved vestkysten.
Ferieboligen er helt oplagt at leje, hvis du søger såvel fred og ro samt masser af aktiviteter tæt på strand og ferieby.
Detaljer om Kalvestalden
Kalvestalden på Hawbakken kan huse 4 personer fordelt på 2 soveværelser med komfortable dobbeltsenge med tykke topmadrasser i hvert værelse. Der er desuden et badeværelse med bruseniche.
Ferieboligens kapacitet:
4 gæster, 2 soveværelser med havudsigt, 1 rummeligt badeværelse, To terrasser med gasgrill, 1 babyseng og 1 højstol ved forespørgsel.
BEMÆRK: Der er ikke plads til en ekstra opredning i denne feriebolig.
Ro til fordybelse og plads til bevægelse:
Hawbakken er et skønt og familievenligt feriested med i alt tre ferieboliger på samme matrikel, som du kan leje i forskellige kombinationer eller samlet.
Udenfor på Hawbakken er der god plads og mange små hyggekroge med borde og bænke og en fabelagtig 180 graders panoramaudsigt over Vesterhavet, Rubjerg Knude Fyr og Lønstrup.
Som gæst har du gratis adgang til stedets mange aktiviteter i ”Sport & Spas”. Her kan man nyde en bred vifte af aktiviteter, både indendørs og udendørs.
Ferieboligen er røgfri og ungdomsgrupper/nattefester er ikke tilladt. Husdyr må ikke være i møblerne eller være alene hjemme.
Sport & Spas på Hawbakken:
Hawbakken Sport & Spas er en mere end 15 forskellige aktiviteter for alle. F.eks. minigolf, basketball, fodbold, volley, bordtennis, petanque, airhockey, bordfodbold, streethockey, kongespil, legehus og meget mere.
Sport og Spas er gratis for gæster, der overnatter på Hawbakken, mens gæster udefra kan købe sig adgang for 75 kr. om dagen. Man er selv ansvarlig for at holde orden og passe på tingene af hensyn til andre gæster.
Sport & Spas er åbent fra påske til udgangen af uge 42. Ved forespørgsel har du mulighed for at benytte faciliteterne uden for sæson - ring for mere info.
Oplev Vestkystens skønhed:
Beliggende nær Løkken og Lønstrup, giver Høloftet dig mulighed for at udforske vestkysten, Rubjerg Knude Fyr og de populære feriebyer i området - Løkken og Lønstrup. Området byder på storslået natur, shopping i eksklusive butikker, kunsthåndværk og kulinariske oplevelser lige rundt om hjørnet. F.eks.
Lophave Gårdbutik - kød i verdensklasse. Denne gårdbutik byder på nøje udvalgte kødprodukter, der er af højeste kvalitet. Med fokus på bæredygtighed og lokale råvarer kan du forvente en smagsoplevelse ud over det sædvanlige. Udforsk udvalget af friske kødvarer og bring det bedste til din egen feriemiddag.
Svennings Hjemmedyrkede Grøntsager i Den Grønne Vogn: Her tilbydes et udvalg af sæsonbestemte grøntsager direkte fra gården. Nyd smagen af friskplukkede grøntsager og tilføj en sund dimension til dine måltider. Udforsk bæredygtigheden og kvaliteten af Svennings friske produkter.
Møllehuset er stedet, hvor fuglene synger, og du kan nyde en lækker brunch, velsmagende brød, fristende kager og duftende kaffe. Dette charmerende sted skaber en hyggelig atmosfære, der inviterer dig til at slappe af og nyde et lækkert måltid. Oplev lokalt håndværk og smagfulde kreationer, der vil glæde dine smagsløg.
Villa Vest er det ideelle sted for dem, der søger et veltillavet måltid og en uforglemmelig restaurantoplevelse. I 2023 fik restauranten en Michelinstjerne. Med en omhyggeligt sammensat menu og en atmosfære af elegance og komfort, tilbyder denne restaurant en kulinarisk rejse."
"Træd ind i Kalvestalden og mærk den indbydende atmosfære, hvor de gamle buede loftshvælvinger er bevaret og Lønstrups sjæl mærkes. Moderne komfort, herunder fuldt udstyret køkken og stilfulde møbler sikrer en afslappende ferie. Der er hurtigt wifi, apple-tv og masser af dvd-film og spil til hyggeaftener.
Udenfor kan I nyde den bredeste solnedgang eller grille fra den store, private terrasse.
Fra soveværelserne er en fortryllende havudsigt og fra stuen og køkkenet er der et roligt kig ud over marker og træer, der skaber en lille plet med læ - den perfekte oase ved vestkysten.
Ferieboligen er helt oplagt at leje, hvis du søger såvel fred og ro samt masser af aktiviteter tæt på strand og ferieby.
Detaljer om Kalvestalden
Kalvestalden på Hawbakken kan huse 4 personer fordelt på 2 soveværelser med komfortable dobbeltsenge med tykke topmadrasser i hvert værelse. Der er desuden et badeværelse med bruseniche.
Ferieboligens kapacitet:
4 gæster, 2 soveværelser med havudsigt, 1 rummeligt badeværelse, To terrasser med gasgrill, 1 babyseng og 1 højstol ved forespørgsel.
BEMÆRK: Der er ikke plads til en ekstra opredning i denne feriebolig.
Ro til fordybelse og plads til bevægelse:
Hawbakken er et skønt og familievenligt feriested med i alt tre ferieboliger på samme matrikel, som du kan leje i forskellige kombinationer eller samlet.
Udenfor på Hawbakken er der god plads og mange små hyggekroge med borde og bænke og en fabelagtig 180 graders panoramaudsigt over Vesterhavet, Rubjerg Knude Fyr og Lønstrup.
Som gæst har du gratis adgang til stedets mange aktiviteter i ”Sport & Spas”. Her kan man nyde en bred vifte af aktiviteter, både indendørs og udendørs.
Ferieboligen er røgfri og ungdomsgrupper/nattefester er ikke tilladt. Husdyr må ikke være i møblerne eller være alene hjemme.
Sport & Spas på Hawbakken:
Hawbakken Sport & Spas er en mere end 15 forskellige aktiviteter for alle. F.eks. minigolf, basketball, fodbold, volley, bordtennis, petanque, airhockey, bordfodbold, streethockey, kongespil, legehus og meget mere.
Sport og Spas er gratis for gæster, der overnatter på Hawbakken, mens gæster udefra kan købe sig adgang for 75 kr. om dagen. Man er selv ansvarlig for at holde orden og passe på tingene af hensyn til andre gæster.
Sport & Spas er åbent fra påske til udgangen af uge 42. Ved forespørgsel har du mulighed for at benytte faciliteterne uden for sæson - ring for mere info.
Oplev Vestkystens skønhed:
Beliggende nær Løkken og Lønstrup, giver Høloftet dig mulighed for at udforske vestkysten, Rubjerg Knude Fyr og de populære feriebyer i området - Løkken og Lønstrup. Området byder på storslået natur, shopping i eksklusive butikker, kunsthåndværk og kulinariske oplevelser lige rundt om hjørnet. F.eks.
Lophave Gårdbutik - kød i verdensklasse. Denne gårdbutik byder på nøje udvalgte kødprodukter, der er af højeste kvalitet. Med fokus på bæredygtighed og lokale råvarer kan du forvente en smagsoplevelse ud over det sædvanlige. Udforsk udvalget af friske kødvarer og bring det bedste til din egen feriemiddag.
Svennings Hjemmedyrkede Grøntsager i Den Grønne Vogn: Her tilbydes et udvalg af sæsonbestemte grøntsager direkte fra gården. Nyd smagen af friskplukkede grøntsager og tilføj en sund dimension til dine måltider. Udforsk bæredygtigheden og kvaliteten af Svennings friske produkter.
Møllehuset er stedet, hvor fuglene synger, og du kan nyde en lækker brunch, velsmagende brød, fristende kager og duftende kaffe. Dette charmerende sted skaber en hyggelig atmosfære, der inviterer dig til at slappe af og nyde et lækkert måltid. Oplev lokalt håndværk og smagfulde kreationer, der vil glæde dine smagsløg.
Villa Vest er det ideelle sted for dem, der søger et veltillavet måltid og en uforglemmelig restaurantoplevelse. I 2023 fik restauranten en Michelinstjerne. Med en omhyggeligt sammensat menu og en atmosfære af elegance og komfort, tilbyder denne restaurant en kulinarisk rejse."
1 Opholdsstue: Chromecast, Apple TV, tv
2 Soveværelser: (1DS)+(1DS)
Køkken: Kulgrill, el-komfur, elkogepl., ovn, køleskab, køle-frys, Miniovn, opvaskemask.
Bad/wc: Wc, håndvask, bruser
1 Udeareal: Havemøbler, liggestole
Og: Gulvvarme, naturgrund 10000 m2, sommerhusområde
Faciliteter
-
Afstand
-
Indkøb1,8 km
-
Kyst1,5 km
-
Restaurant1,5 km
-
-
Bad
-
Bruser
-
Håndvask
-
WC
-
-
Diverse
-
Antal badeværelser1
-
Antal soveværelser2
-
Boligareal60 m²
-
Byggeår1927
-
Husdyr tilladt
-
Ikke ryger
-
Internet
-
Nationalt tv
-
Rengøring inkluderet
-
Renoveret2021
-
-
Indendørs
-
Apple TV
-
Chromecast
-
TV
-
-
Køkken
-
Elkogeplader
-
El-komfur
-
Køle-frys
-
Køleskab
-
Miniovn
-
Opvaskemask.
-
Ovn
-
-
Udendørs
-
Havemøbler
-
Liggestole
-
Trækulgrill
-
Miniferie
Der er mulighed for miniferie i udvalgte perioder af året.
Priser og kalender
Kalender
Varighed
Pris
Periode
- Ankomst
- Afrejse
- Varighed
- 1 uge
Personer
Op til 4 personer
Bemærk
Ankomst er ikke valgt.