Charmerende sommerhus med central beliggenhed i Løkken

Sommerhus - 6 personer - Norgesvej - 9480 - Løkken

6 personer
Emne nr.: 546-117227
Skøn feriebolig i Løkken med central beliggenhed, plads til 6 personer og to husdyr samt privat parkering og elstander.
  • Soverum 3
  • Badeværelser 1
  • Boligareal 150 m²
  • Grundareal 465 m²
  • Husdyr 2
  • Tilbyder miniferie Ja
  • Afstand vand 200 m
  • Afstand indkøb 160 m
  • Internet Ja
  • Parabol/kabel TV Ja
  • Vaskemaskine Ja
  • Tørretumbler Ja
  • Opvaskemaskine Ja
  • Ikkeryger Ja

Beskrivelse

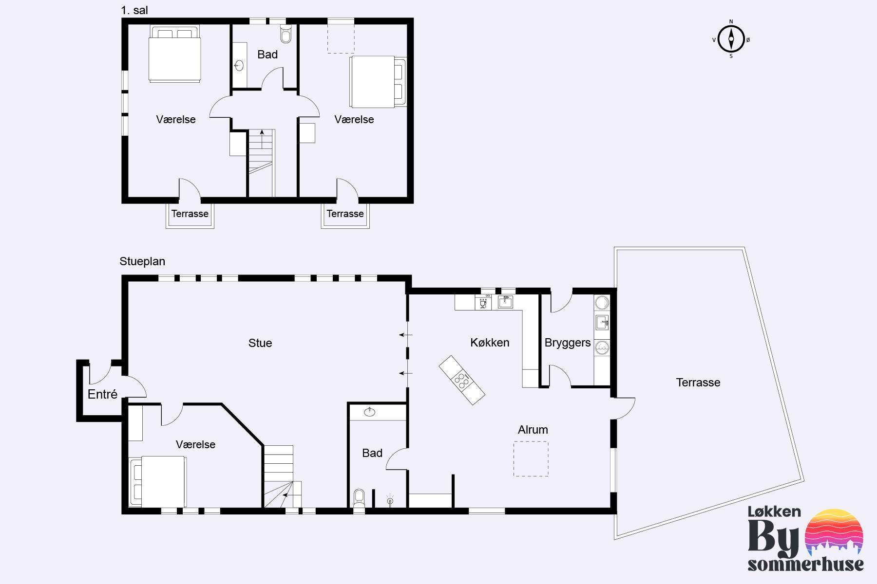
“Strandly” er navnet på denne skønne feriebolig på Norgesvej 8. Her møder du frem til en lys og imødekommende bolig, der er praktisk indrettet med åbent køkken/alrum og en super charmerende stue i sikker sommerhusstil. Der findes et dejligt soveværelse i stueplan og to ligeså på husets første sal, hvor der også er charmerende skråvægge. På første sal er der et gæstetoilet og i stueplan er der toilet i forbindelse med husets badeværelse. Du kan entrere praktisk i husets bryggers - hvad end det er sand eller sne, du ikke vil bringe med dig indenfor, eller du kan benytte det super charmerende indgangsparti ved fordøren. Her er plads til 6 personer, og to husdyr er tilladt. 
Luksus med privat parkering og elstander:
Lige meget hvor turistfyldt Løkken er, når du lejer denne feriebolig, er der altid plads til minimum to biler i husets indkørsel, hvilket er luksus, når du fx ankommer eller skal fraflytte. Ellers er der faktisk mulighed for slet ikke at starte bilen op, når du er på ferie i Norgesvej 8 - dette grundet den super centrale beliggenhed tæt på alt. Der er ladestander ved huset.
Du må opleve denne dejlige feriebolig, og det kan du ved at leje den her hos By Sommerhuse. 
Ferieboligen er røgfri og ungdomsgrupper er ikke tilladt. Husk at bestille evt. linnedpakker ved booking.


Vores gæsteanmeldelser Eksterne anmeldelser

4,3
Baseret på 3 vurderinger
Sidste vurdering fra d. 27-11-2025
5
(1)
4
(2)
3
(0)
2
(0)
1
(0)
Kommentarer
2 vurderinger har kommentarer på dansk.
2 voksne 0 børn 2 husdyr 7 overnatninger 2025 september
Huset er perfekt, men trappen op til soveværelser på 1. Sal er lidt stejl for ældre folk Så en bredere og bedre seng i stueetagen er ønskelig
3 voksne 2 børn 0 husdyr 7 overnatninger 2024 februar
Dejligt stort hus med god planløsning. Lyst og nemt at varme op.

Faciliteter

  • Afstande

    • Afstand strand
      200 m
    • Afstand indkøb
      160 m
    • Afstand restaurant
      140 m
  • Multimedier

    • Kabel TV
    • Antal TV
      1
    • Trådløst internet
  • Hvidevarer

    • Opvaskemaskine
    • Mikrobølgeovn
    • Køle-/fryseskab
    • Vaskemaskine
    • Antal ovne
      1
    • Tørretumbler
    • Elkedel
  • Bad / Toilet

    • Toiletter
      1
    • Badeværelser
      1
  • Soverum

    • Antal soverum
      3
    • Dobbeltsenge
      3
  • Opvarmning

    • Gulvvarme
    • Gulvvarme på badeværelse
    • Fjernvarme
  • Huset inde

    • Byggeår
      1917
    • Grundareal m²
      465
    • Husareal
      150
    • Husdyr
    • Rygning ikke tilladt
    • Max antal personer
      6
    • Antal tilladte husdyr
      2
  • Huset ude

    • Havemøbler
    • Grill
    • Liggestole
      2
  • Faciliteter

    • Husdyrgebyr pr. husdyr

Miniferie

Der er mulighed for miniferie hele året.

Priser og kalender

Kalender

Ankomst
Næste
   Se om emnet er ledigt på den valgte dato
Ledig
Optaget
   Ankomst mulig
Varighed

Pris

Periode
Ankomst
Afrejse
Varighed
1 uge
Personer
Op til 6 personer

Bemærk

Ankomst er ikke valgt.
Aftale- og lejebetingelser