Charmerende feriebolig med terrasse og sauna

Sommerhus - 8 personer - Laksen - 9480 - Løkken

8 personer
Emne nr.: 122-LK898
Charmerende feriebolig i Løkken med stor terrasse, sauna og nærhed til strand og centrum.
  • Soverum 4
  • Badeværelser 2
  • Boligareal 105 m²
  • Grundareal 500 m²
  • Husdyr Ikke tilladt
  • Tilbyder miniferie Ja
  • Afstand vand 800 m
  • Afstand indkøb 800 m
  • Spa Ja
  • Sauna Ja
  • Highspeed internet Ja
  • Parabol/kabel TV Ja
  • Vaskemaskine Ja
  • Tørretumbler Ja
  • Opvaskemaskine Ja
  • Ikkeryger Ja

Beskrivelse

Denne charmerende feriebolig ligger i udkanten af badebyen Løkken, i gåafstand til centrum og i nærheden af Løkken Golfklubs Pay & Playbane.

Velkommen indenfor
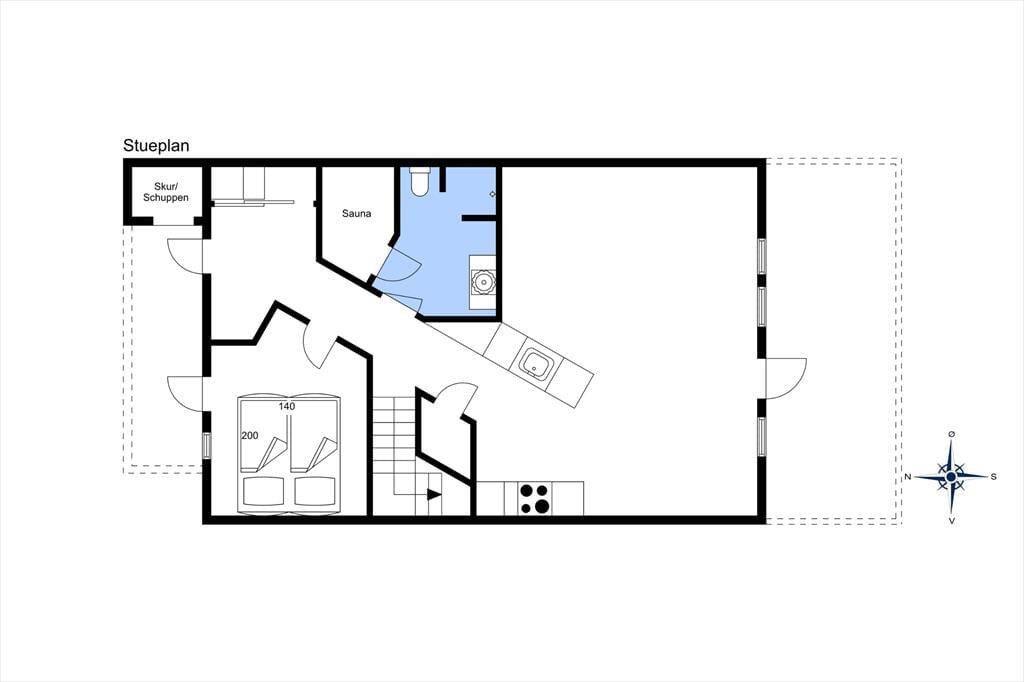
Lejligheden er opført i to plan og hører til Løkken Feriepark, Nordenlys. Stueetagen indeholder et af i alt fire soveværelser, et badeværelse med sauna, og opholdsstuen med et åbent og veludstyret køkken. Herfra er der adgang til en stor sydvendt stenterrasse. På første sal ligger yderligere tre soveværelser. Fra to af soveværelserne har man adgang til en stor og delvis overdækket balkon, mens badeværelset her byder på toilet, bruser og spabad. Fordelingen af værelser og badeværelser gør det oplagt at vælge denne lejlighed, hvis man er to familier, som ønsker at holde ferie sammen.

Nyd livet udenfor
Ganske kort fra lejligheden ligger 2 flotte legepladser, som vil skabe lykke hos både små og lidt større børn, og tæt på er også en stor Pay & Play-golfbane for de golfinteresserede. Med både en flot balkon og en skøn terrasse har man alle muligheder for at nyde lyden af det brusende Vesterhav og se solnedgangen i horisonten.

Kom tæt på de lokale oplevelser
Ferieboligen hører til Feriepark Nordenlys, som ligger syd for Løkkens centrum. Løkken by har mange hyggelige butikker og restauranter, og ligger blot ti minutters gang fra lejligheden. Sandstranden, som hører til en af de kendteste i Nordeuropa, ligger kun 800m fra ferieparken, og hele området byder på en dejlig kombination af ro, afslapning, naturoplevelser og mulighed for mange aktiviteter hele året rundt.

Husk, at du altid kan låne trækvogne, barnestole og barnesenge hos os i Løkken. Du kan hente dem direkte på bureauet og returnere dem til os igen, når din ferie er vel overstået.


Rumindretning

  • Soveværelse
    • Dobbeltseng - 1x160x200
  • Soveværelse
    • Dobbeltseng - 1x140x200
  • Soveværelse
    • Dobbeltseng - 1x160x200
  • Soveværelse
    • Dobbeltseng - 1x160x200

Vores gæsteanmeldelser Eksterne anmeldelser

5,0
Baseret på 1 vurdering
Vurderet d. 07-01-2026
5
(1)
4
(0)
3
(0)
2
(0)
1
(0)
Kommentarer
Ingen vurderinger har kommentarer.

Faciliteter

  • Hus Info

    • 2 x Bruser
    • 2 x WC
    • Antal voksne
      8
    • Byggeår
      2006
    • Grundareal / Naturgrund
      500 m²
    • Husareal
      105 m²
    • Indendørs spabad
    • Sauna
  • Afstande

    • Afstand golfbane
      1,5 km
    • Afstand indkøb / Helårsbutik
      800 m
    • Afstand restaurant
      1 km
    • Afstand strand / Sandstrand
      800 m
  • Energi / Opvarmning

    • Fjernvarme
  • Hårde hvidevarer

    • Elkedel
    • Emhætte
    • Kaffemaskine
    • Komfur
    • Køleskab med frys
    • Mikroovn
    • Opvaskemaskine
    • Tørretumbler
    • Vaskemaskine
  • Multimedier

    • Chromecast
    • Dansk tv
      Inkl. TV2
    • Gratis Wi-Fi - Over 20 Mbit
    • Kabel-TV
      Løkken Antennelaug
    • TV
    • Tysk TV
      Kun få tyske programmer
  • Ekstra

    • Barnestol
    • Børnevenlig
    • Golfferie
    • Vandrevenlig
  • Udenfor

    • Grill
    • Gynge
    • Havemøbler
    • Liggestole
      2
    • Parkering på grunden
    • Sandkasse
    • Åben terrasse
  • Diverse

    • 3 x Gulvvarme
    • Afmærkede vandreruter i nærheden
  • Regler

    • Husdyr ikke tilladt
    • Opladning af elbil ikke tilladt
    • Rygning ikke tilladt
  • Pris inklusiv

    • Slutrengøring inkl.
    • Vand inkl.
  • GAMMEL

    • CD
    • DVD
    • Radio

Miniferie

Der tilbydes i øjeblikket ikke miniferie. Typisk skyldes dette at miniferie ikke er muligt i højsæsonen.

Priser og kalender

Kalender

Ankomst
Næste
  • april 2026
    mationtofr
    1412345
    156789101112
    1613141516171819
    1720212223242526
    1827282930
    19
  • maj 2026
    mationtofr
    18123
    1945678910
    2011121314151617
    2118192021222324
    2225262728293031
    23
   Se om emnet er ledigt på den valgte dato
Ledig
Optaget
   Ankomst mulig
Varighed
Personer

Pris

Periode
Ankomst
Afrejse
Varighed
Personer
Ingen personer er valgt

Bemærk

Kan ikke bookes på nuværende tidspunkt.
Aftale- og lejebetingelser