Alternative emner
Charmerende feriehus i historisk bygning
Sommerhus - 8 personer - Vestergade - 6240 - Løgumkloster
8 personer
Emne nr.: 121-29-7003
Charmerende feriehus i Løgumkloster med historisk charme og moderne faciliteter.
- Soverum 3
- Badeværelser 2
- Boligareal 205 m²
- Grundareal 276 m²
- Husdyr 1
- Tilbyder miniferie Nej
- Afstand vand 21 km
- Afstand indkøb 200 m
- Internet Ja
- Vaskemaskine Ja
- Opvaskemaskine Ja
- Ikkeryger Ja
Beskrivelse
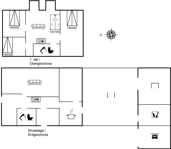
Denne feriebolig, som er indrettet i en bevaringsværdig bygning, ligger i byen Løgumkloster, som er en hyggelig by med masser af kultur og historie. Huset ligger i et område med skøn natur, som inviterer til lange gåture. Bemærk: Udover 3 soveværelser findes der 2 sovepladser på en dobbelt sovesofa i opholdsstuen.
Indretning
Sommerhuset egner sig til 8 personer samt 1 barn op til 3 år. Ferieboligen er på 205 m², er i 2 plan, og er bygget i 1870. I 1997 gennemgik ferieboligen en delvis renovering. Det er tilladt at medbringe 1 husdyr. Der er gulvvarme i alle klinkegulve. Ferieboligen har vaskemaskine. Frysekapacitet på 10 liter. Til de små er der 1 stk. barnestol.
Udenfor
Ferieboligen er beliggende på en 276 m² stor naturgrund. Der er 32000 m til havet. Der er 21000 m til Vadehavet. Nærmeste forretning er beliggende i en afstand af 200 m. Udgang til solgård. Grill til rådighed. Der er garage til rådighed. Parkering ved ferieboligen.
Soveforhold
Der er i alt 3 soveværelser. Sovepladserne fordeler sig på: 6 sovepladser i dobbeltsenge. 2 sovepladser i sovesofa (dobbelt). Derudover er der 1 stk. barneseng.
Køkken
Køkkenet er udstyret med 1 køleskab. Der er 4 elkogeplader, bageovn, mikrobølgeovn samt opvaskemaskine.
Toilet og bad
Der er 2 badeværelser med bruseniche og 2 toiletter. Der er gulvvarme på 1 badeværelse.
Multimedier
I ferieboligen er der 1 Smart-TV. Radio. Der er 1-3 danske kanaler. 1-3 tyske kanaler. Der er trådløst internet til rådighed.
Værd at vide
Ingen udlejning til ungdomsgrupper, hvor alle er 15-25 år. Rygning ikke tilladt. Ved overtrædelse af forbuddet opkræves et gebyr på minimum DKK 3.000,-.
Indretning
Sommerhuset egner sig til 8 personer samt 1 barn op til 3 år. Ferieboligen er på 205 m², er i 2 plan, og er bygget i 1870. I 1997 gennemgik ferieboligen en delvis renovering. Det er tilladt at medbringe 1 husdyr. Der er gulvvarme i alle klinkegulve. Ferieboligen har vaskemaskine. Frysekapacitet på 10 liter. Til de små er der 1 stk. barnestol.
Udenfor
Ferieboligen er beliggende på en 276 m² stor naturgrund. Der er 32000 m til havet. Der er 21000 m til Vadehavet. Nærmeste forretning er beliggende i en afstand af 200 m. Udgang til solgård. Grill til rådighed. Der er garage til rådighed. Parkering ved ferieboligen.
Soveforhold
Der er i alt 3 soveværelser. Sovepladserne fordeler sig på: 6 sovepladser i dobbeltsenge. 2 sovepladser i sovesofa (dobbelt). Derudover er der 1 stk. barneseng.
Køkken
Køkkenet er udstyret med 1 køleskab. Der er 4 elkogeplader, bageovn, mikrobølgeovn samt opvaskemaskine.
Toilet og bad
Der er 2 badeværelser med bruseniche og 2 toiletter. Der er gulvvarme på 1 badeværelse.
Multimedier
I ferieboligen er der 1 Smart-TV. Radio. Der er 1-3 danske kanaler. 1-3 tyske kanaler. Der er trådløst internet til rådighed.
Værd at vide
Ingen udlejning til ungdomsgrupper, hvor alle er 15-25 år. Rygning ikke tilladt. Ved overtrædelse af forbuddet opkræves et gebyr på minimum DKK 3.000,-.
Vores gæsteanmeldelser Eksterne anmeldelser
Faciliteter
-
Adgang til ferieboligen
-
Nøgleboks med kode
-
-
Bemærk
-
Ingen håndværkere efter anmodning
-
Ingen ungdomsgrupper efter anmodning
-
Rygning er forbudt
-
-
Indretning
-
2 niveauer
-
Antal børn (0-3 år)1
-
Antal voksne inkl. 4-11 år8
-
Bebygget areal205 m²
-
Byggeår1870
-
Feriebolig
-
Frysekapacitet (antal liter)10
-
Gulvvarme i alle klinkegulve
-
Husdyr1
-
Højstol1
-
Renoveringsår1997
-
Vaskemaskine1
-
-
Køkken
-
Antal elektriske kogeplader4
-
Bageovn1
-
Køleskab1
-
Mikrobølgeovn1
-
Opvaskemaskine1
-
-
Multimedier
-
0-3 danske kanaler
-
0-3 tyske kanaler
-
Antal tv'er1
-
Radio
-
Smart-Tv1
-
Trådløst internet
-
-
Soveforhold
-
Antal soveværelser3
-
Barneseng1
-
Dobbeltseng (antal sovepladser)6
-
Sovesofa, dobbelt (antal sovepladser)2
-
-
Toilet og bad
-
Antal badeværelser2
-
Antal toiletter2
-
Brusekabine
-
Gulvvarme1
-
-
Udenfor
-
Atrium
-
Butik200 m
-
Garage
-
Grill1
-
Hav32 km
-
Natursted
-
Parkeringsplads ved huset
-
Størrelse af grunden276 m²
-
Vadehavet21 km
-
Priser og kalender
Kalender
Ankomst
-
februar 2026
ma ti on to fr lø sø 5 1 6 2 3 4 5 6 7 8 7 9 10 11 12 13 14 15 8 16 17 18 19 20 21 22 9 23 24 25 26 27 28 10 -
marts 2026
ma ti on to fr lø sø 9 1 10 2 3 4 5 6 7 8 11 9 10 11 12 13 14 15 12 16 17 18 19 20 21 22 13 23 24 25 26 27 28 29 14 30 31
Se om emnet er ledigt på den valgte dato
Ledig
Optaget
Ankomst mulig
Varighed
Pris
Periode
- Ankomst
- Afrejse
- Varighed
Personer
Op til 8 personer
Bemærk
Kan ikke bookes på nuværende tidspunkt.