Velholdt sommerhus nær havet med terrasse

Sommerhus - 4 personer - Klitrosevej - 9940 - Læsø

4 personer
Emne nr.: 090-09503
Velholdt sommerhus på stor lynggrund nær havet og indkøb med moderne faciliteter og terrasse.
  • Soverum 2
  • Badeværelser 1
  • Boligareal 77 m²
  • Husdyr Ikke tilladt
  • Tilbyder miniferie Nej
  • Afstand vand 300 m
  • Afstand indkøb 800 m
  • Internet Ja
  • Parabol/kabel TV Ja
  • Brændeovn Ja
  • Vaskemaskine Ja
  • Opvaskemaskine Ja
  • Ikkeryger Ja
  • Energivenligt Ja

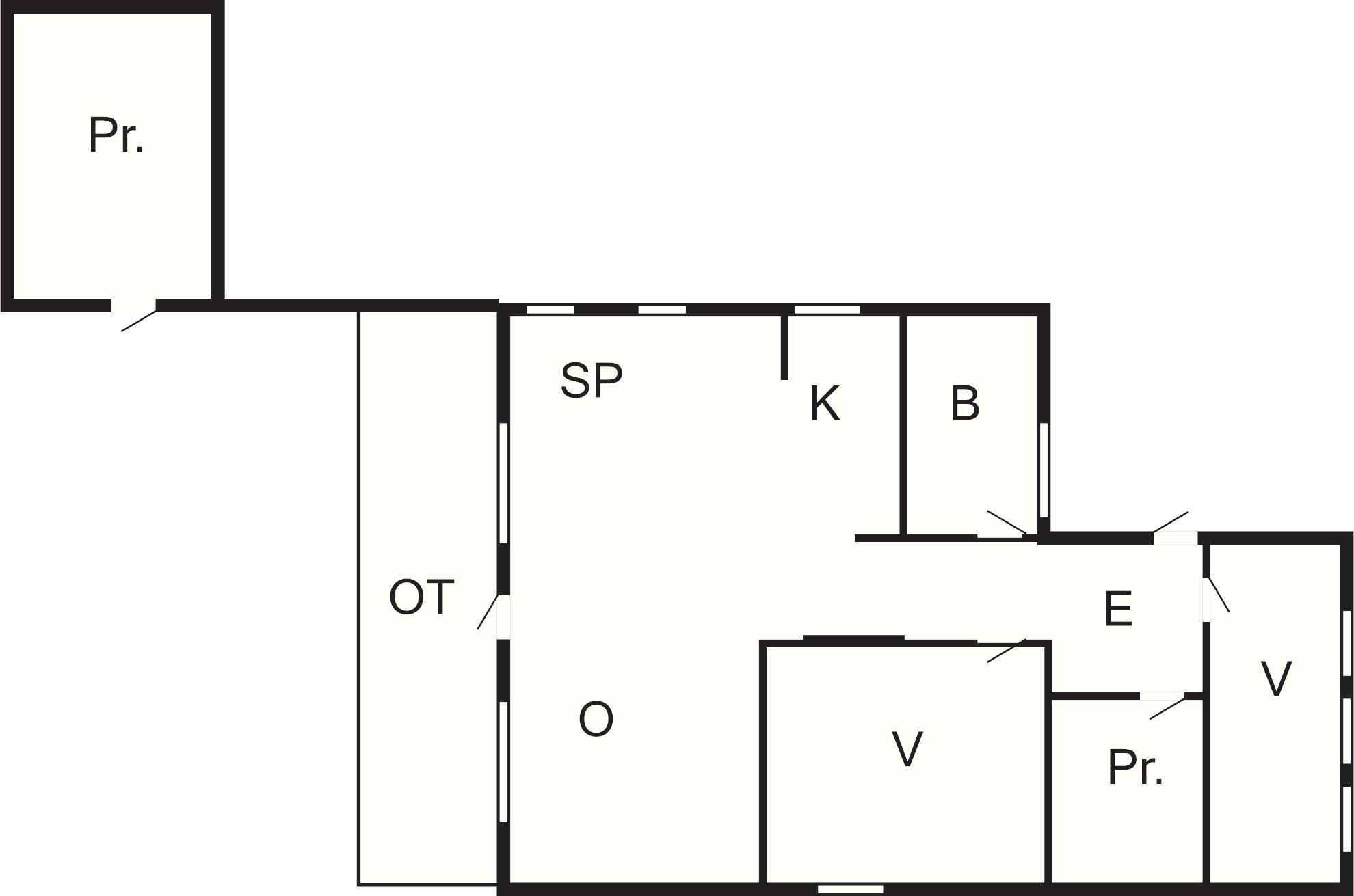
Beskrivelse

Velholdt sommerhus på stor og ugeneret, kuperet lynggrund kun ca. 300 m fra havet og tæt på indkøbsmuligheder. Huset har loft til kip med åbent køkken, stue med brændeovn, varmepumper og direkte udgang til terrassen, hvor der er plads til at nyde den dejlige ro og natur. Der er 2 soverværelser og et rummeligt badeværelse.


1 Opholdsstue: Brændeovn, radio, Chromecast, tv, kabel-tv
2 Soveværelser: (1DS)+(2S)
Køkkenafd.: El-komfur, køleskab m/frostboks, mikroovn, emhætte, kaffemaskine, opvaskemask., vaskemaskine
Bad/wc: Wc, håndvask, bruseniche
Og: Terrasse, el-varme, luft/luft varmepumpe, havegrill, naturgrund med træer 1654 m2, moderne møblering, sommerhusområde, ikke-ryger hus

Vores gæsteanmeldelser Eksterne anmeldelser

3,8
Baseret på 4 vurderinger
Sidste vurdering fra d. 01-09-2022
5
(0)
4
(3)
3
(1)
2
(0)
1
(0)
Kommentarer
1 vurdering har kommentar på dansk.
2 voksne 0 børn 0 husdyr 7 overnatninger 2022 juni
Vides ikke
4,7
Møblering:
4,6
Anbefalelsesværdig:
4,8
Generelt med børn:
5,0
Generelt uden børn:
4,6
Eksterne anmeldelser
Ingen detaljerede eksterne anmeldelser

Faciliteter

  • Afstand

    • Indkøb
      800 m
    • Kyst
      300 m
    • Restaurant
      800 m
  • Bad

    • Bruseniche
    • Håndvask
    • WC
  • Diverse

    • Antal badeværelser
      1
    • Antal soveværelser
      2
    • Boligareal
      77 m²
    • Byggeår
      1984
    • Energihus
    • Ikke ryger
    • Internet
    • Luft/luft varmepumpe
    • Nationalt tv
    • Renoveret
      2021
    • Smart TV
    • Tysk TV
  • Indendørs

    • Chromecast
    • Kabel TV
    • Pejs / brændeovn
    • Radio
    • TV
    • Vaskemaskine
  • Køkken

    • El-komfur
    • Emhætte
    • Kaffemaskine
    • Køleskab m/frostboks
    • Mikroovn
    • Opvaskemask.
  • Udendørs

    • Havegrill

Priser og kalender

Kalender

Ankomst
Næste
  • december 2025
    mationtofr
    491234567
    50891011121314
    5115161718192021
    5222232425262728
    1293031
    2
  • januar 2026
    mationtofr
    11234
    2567891011
    312131415161718
    419202122232425
    5262728293031
    6
   Se om emnet er ledigt på den valgte dato
Ledig
Optaget
   Ankomst mulig
Varighed

Pris

Periode
Ankomst
Afrejse
Varighed
Personer
Op til 4 personer

Bemærk

Kan ikke bookes på nuværende tidspunkt.
Aftale- og lejebetingelser