Sommerhus med spa og stor grund i Kollerup Klit

Sommerhus - 6 personer - Rønnevej - Kollerup - 9690 - Fjerritslev

6 personer
Emne nr.: 049-JB372
7 overnatninger
Fra DKK 3.751,-
Inkl. rengøring og forsikring
6 personer
Charmerende sommerhus med spa, stor grund, shelter og bålplads tæt på natur og Jammerbugtens kyst.
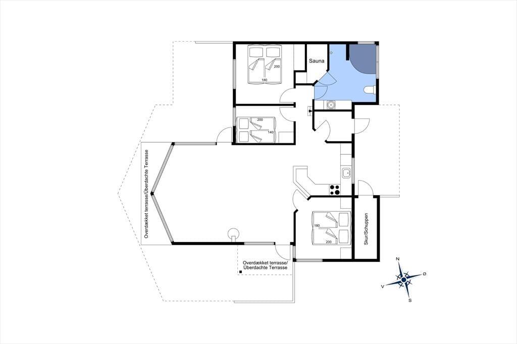
  • Soverum 3
  • Badeværelser 1
  • Boligareal 94 m²
  • Grundareal 1.204 m²
  • Husdyr 2
  • Tilbyder miniferie Ja
  • Afstand vand 4.700 m
  • Afstand indkøb 1.100 m
  • Spa Ja
  • Sauna Ja
  • Internet Ja
  • Parabol/kabel TV Ja
  • Brændeovn Ja
  • Vaskemaskine Ja
  • Tørretumbler Ja
  • Opvaskemaskine Ja
  • Ikkeryger Ja
  • Ladestander til elbil Ja
  • Energivenligt Ja

Beskrivelse

Lej dette charmerende og velholdte sommerhus med spa som giver jer rammerne for en ferie med velvære, hygge og natur tæt på Jammerbugtens unikke landskab. Her får I en stor grund med eget shelter og bålplads, hvor I let kan samles om grill og hygge under åben himmel. Huset ligger i Kollerup Klit med kort afstand til både natur, indkøb og restaurantmuligheder – perfekt til par, familier eller venner, der ønsker både afslapning og oplevelser.

Velkommen indenfor
Indenfor bydes du på en lys og indbydende stue, hvor der er god plads til samvær og afslapning efter en dag fyldt med strand, ture eller wellness. Køkkenet er funktionelt og udstyret til at tilberede feriens måltider, uanset om I vælger at bruge bålpladsen udenfor, eller blot vil lave noget nemt indenfor. Sommerhuset har 3 gode soveværelser, som giver plads til op til 6 voksne, og badeværelset er pænt og praktisk indrettet. Der er selvfølgelig også husdyr tilladt, så hele familien kan være med.

Nyd livet udenfor
Sommerhusets store grund inviterer til udendørs aktiviteter og feriehygge. Her finder I både et hyggeligt shelter – perfekt til spil, grill eller en aften med snobrød – samt en bålplads, hvor der er rig mulighed for at samle familien til snak og hygge i det fri. Har I lyst til wellness, kan I slappe af i husets spa efter en frisk tur i den smukke natur. Afstanden til strand er kort og turen til indkøb og restaurant er lige til at gå eller køre.

Kom tæt på de lokale oplevelser
Kollerup Klit og resten af Jammerbugten byder på varierede oplevelser i både natur og bymiljøer. I området er der rig mulighed for at tage på dejlige gåture i den naturrige klitplantage, besøge lokale hyggelige spisesteder eller tage en tur til Jammerbugtens brede sandstrand for at nyde Vesterhavet. Er I til golf, ligger en bane også inden for kort afstand. Kombiner natur, aktivitet og afslapning på jeres ferie med dette sommerhus som udgangspunkt.

Husk, at du altid kan låne trækvogne, barnestole og barnesenge hos os. Du kan hente dem direkte på bureauet og returnere dem til os igen, når din ferie er vel overstået.


Rumindretning

  • Soveværelse
    • Dobbeltseng - 140x200
  • Soveværelse
    • Dobbeltseng - 180x200
  • Soveværelse
    • Dobbeltseng - 180x200

Faciliteter

  • Hus Info

    • Antal husdyr
      2
    • Antal voksne
      6
    • Bruser
    • Byggeår
      2008
    • Grundareal / Naturgrund
      1204 m²
    • Husareal
      94 m²
    • Indendørs spabad
    • Sauna
    • WC
  • Afstande

    • Afstand fjord
      11 km
    • Afstand golfbane
      1,2 km
    • Afstand indkøb / Helårsbutik
      1,1 km
    • Afstand restaurant
      1,1 km
    • Afstand strand / Sand-/stenstrand
      4,7 km
  • Energi / Opvarmning

    • 3 x Elvarme
    • Brændeovn
    • Varmepumpe
  • Hårde hvidevarer

    • Elkedel
    • Emhætte
    • Kaffemaskine
    • Kogeplader
    • Køleskab med frys
      Køl 202,8 L / Frys 41,5 L
    • Mikroovn
    • Opvaskemaskine
    • Ovn
    • Tørretumbler
    • Vaskemaskine
  • Multimedier

    • Dansk tv
    • Gratis Wi-Fi - Over 500 Mbit
    • Kabel-TV
    • Tysk TV
  • Ekstra

    • Barnestol
    • Børnevenlig
    • Golfferie
    • Vandrevenlig
  • Udenfor

    • Bålsted
      1
    • Grill
      Trækulgrill
    • Havemøbler
    • Liggestole
      2
    • Parasol
      1
    • Parkering på grunden
    • Sandkasse
    • Shelter
    • Terrasse
    • Udendørs vandhane
  • Diverse

    • Afmærkede vandreruter i nærheden
    • Gulvvarme
    • Tørrestativ / Tørresnor
  • Regler

    • Husdyr: alle slags husdyr tilladt
    • Opladning af elbil tilladt / Lader til elbil forefindes (Type 2 stik, inklusiv kabel)
    • Rygning ikke tilladt
  • Pris inklusiv

    • Slutrengøring inkl.

Miniferie

Der er begrænset mulighed for miniferie hele året, typisk uden for højsæsonen.

Priser og kalender

Kalender

Ankomst
Næste
   Se om emnet er ledigt på den valgte dato
Ledig
Optaget
   Ankomst mulig
Varighed
Personer

Pris

Periode
Ankomst
Afrejse
Varighed
1 uge
Personer
Ingen personer er valgt

Bemærk

Ankomst er ikke valgt.
Der er ikke valgt personer.
Aftale- og lejebetingelser