Moderne feriehus med pool og spa nær Vesterhavet

Sommerhus - 8 personer - Fladsbjergvej - Klegod - 6950 - Ringkøbing

8 personer
Emne nr.: 328-969407
Moderne feriehus i Klegod med opvarmet pool, spabad og sauna nær Vesterhavet.
  • Soverum 4
  • Badeværelser 2
  • Boligareal 170 m²
  • Grundareal 1.703 m²
  • Husdyr 2
  • Tilbyder miniferie Nej
  • Afstand vand 700 m
  • Afstand indkøb 5 km
  • Swimmingpool Ja
  • Spa Ja
  • Sauna Ja
  • Highspeed internet Ja
  • Parabol/kabel TV Ja
  • Brændeovn Ja
  • Vaskemaskine Ja
  • Tørretumbler Ja
  • Opvaskemaskine Ja
  • Ikkeryger Ja
  • Energivenligt Ja

Beskrivelse

Huset er velholdt og meget smagfuldt og moderne indrettet , gode møbler og en rigtig hyggelig stue med plads til hele familien. Køkkenet er veludstyret og her er alt hvad der skal bruges til at tilberede et dejligt måltid for hele familien.

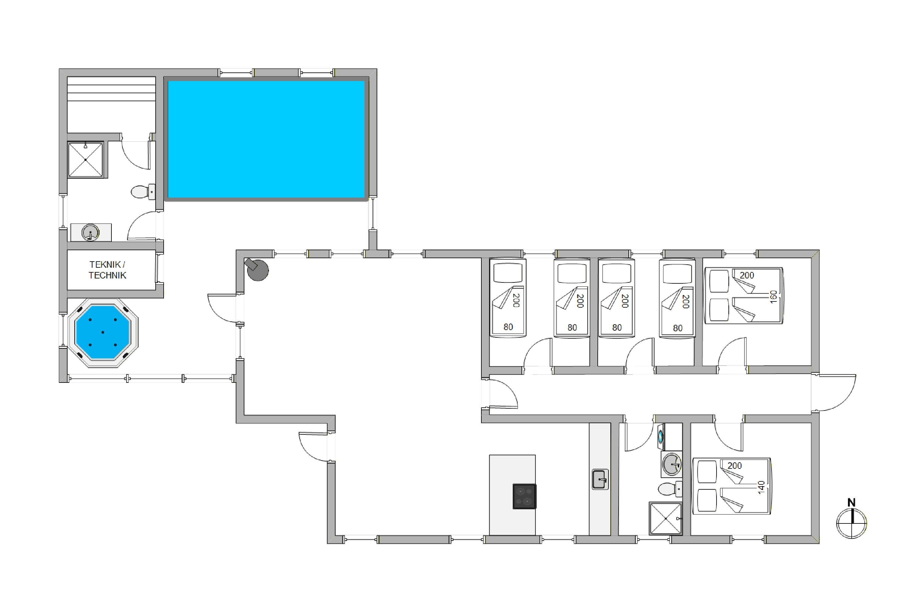
Stor swimmingpool og 5 personers spabad

Huset har en stor dejlig opvarmet swimmingpool der indbyder til sjov og leg for hele familien. Her er de perfekte rammer for timevis af sjov i swimmingpoolen, og husets store 5 personers opvarmede spabad er et hit efter lange spadsereture eller hvis man bare ønsker total afslapning i dejlige varme vand. I poolrummet er der også installeret en luft til vand varmepumpe, som sørger for en energivenlig opvarmning af poolrummet. Derudover er der også 2 energibesparende luft til lift varmepumper.

Huset har også en sauna og to gode badeværelser, så her er wellness for familien. På det ene badeværelse er der også en pusleplads til de små.

Lukket overdækket terrasse og 2 hunde tilladt

Rundt om huset findes flere gode terrasser, helt lukkede , så hund og børn ikke kommer på afveje. Nyd solen på alle tider af dagen, og om aftenen er den overdækkede terrasse det perfekte samlingspunkt når grillen tændes.

Roligt feriehusområde tæt på Vesterhavet

Huset ligger i Klegod, et herligt og roligt feriehusområde, på en stor naturgrund ikke langt fra Vesterhavet. Området indbyder til lange spadsereture i klitterne og ved Vesterhavet og ren hygge for hele familien.

Faciliteter

  • Opholdsrum

    • CD afspiller
    • Gulv: Trælaminat
    • Radio
    • Brændeovn
    • Fladskærms-TV
      1
  • Soverum

    • Gulv: Trælaminat
    • Dobbeltsenge
      2
    • Enkeltsenge
      4
    • Sovepladser
      8
    • Soverum
      4
    • 1. soverum/sengestørrelser
      2x80x200
    • 2. soverum/sengestørrelser
      2x80x200
    • 3. soverum/sengestørrelser
      1x140x200
    • 4. soverum/sengestørrelser
      1x160x200
  • Køkken

    • Komfur: El m. ovn
    • Køleskab
    • Opvaskemaskine
    • Mikroovn
    • Separat fryser /L
      65
  • Baderum

    • Pool
    • M² pool
      21
    • Sauna
    • Gulvvarme bad
    • Antal badeværelser
      2
    • Standspa inde, antal pers.
      5
    • Standvandsspa inde, gæst fylder
    • M3 pool
      23
  • Objektinfo - Inde

    • Areal: Hus m²
      170
    • Byggeår
      1984
    • Husdyr tilladt
    • Husdyr antal, max
      2
    • Ikke ryger hus
    • Personantal
      8
    • Renoveret
      2010
    • Tyske tv-programmer
    • Tørretumbler
    • Varme: Elvarme
    • Varme: Varmepumpe luft til luft
    • Vaskemaskine
    • Satellit (tyske kanaler samt et par danske)
    • Flere hunde ved forespørgsel
    • Gratis fiber Internet
  • Objektinfo - ude

    • Afstand i meter: Hav
      700 m
    • Afstand i meter: Indkøb
      5 km
    • Grundens areal i m2
      1703
    • Gynge
    • Sandkasse
    • Grill
    • Havemøbler
    • Solvogne
    • Parasol
    • Terrasse: Lukket
    • Terrasse: Overdækket
    • Naturgrund
    • Affald hentes:
      Tirsdag
    • Affald: Helårstømning
    • Skraldespand - Liter
      240
    • Gasgrill
  • Koncepter

    • Skiftedag: Fredag
  • Miniferie

    • Ja, tak - tillad miniferie

Priser og kalender

Kalender

Ankomst
Forrige Næste
  • august 2026
    mationtofr
    3112
    323456789
    3310111213141516
    3417181920212223
    3524252627282930
    3631
  • september 2026
    mationtofr
    36123456
    3778910111213
    3814151617181920
    3921222324252627
    40282930
    41
   Se om emnet er ledigt på den valgte dato
Ledig
Optaget
   Ankomst mulig
Varighed

Pris

Periode
Ankomst
Afrejse
Varighed
1 uge
Personer
Op til 8 personer

Bemærk

Ankomst er ikke valgt.
Aftale- og lejebetingelser