Hyggeligt sommerhus med brændeovn og terrasse

Sommerhus - 4 personer - Kræ Degns Vej - Klegod - 6950 - Ringkøbing

4 personer
Emne nr.: 328-336835
Hyggeligt og renoveret sommerhus i Klegod med brændeovn, overdækket terrasse og ladestander til elbil.
  • Soverum 2
  • Badeværelser 1
  • Boligareal 102 m²
  • Grundareal 2.000 m²
  • Husdyr 1
  • Tilbyder miniferie Nej
  • Afstand vand 400 m
  • Afstand indkøb 6 km
  • Highspeed internet Ja
  • Parabol/kabel TV Ja
  • Brændeovn Ja
  • Vaskemaskine Ja
  • Tørretumbler Ja
  • Opvaskemaskine Ja
  • Ikkeryger Ja
  • Ladestander til elbil Ja
  • Energivenligt Ja

Beskrivelse

Sommerferie i Danmark er fyldt med familiehygge og afslapning, smuk natur og oplevelser for store og små. Dette dejlige og hyggelige sommerhus med plads til 4 personer ligger på Kræ Degns Vej 29 i Klegod. Samlingspunktet i sommerhuset er køkken/alrummet – her kan I slappe af i sofaen, imens I nyder de knitrende lyde fra brændeovnen. Sommerhuset ligger samtidig på en delvist afskærmet naturgrund, som er både rolig og skøn.

Hyggelig indretning men brændeovn

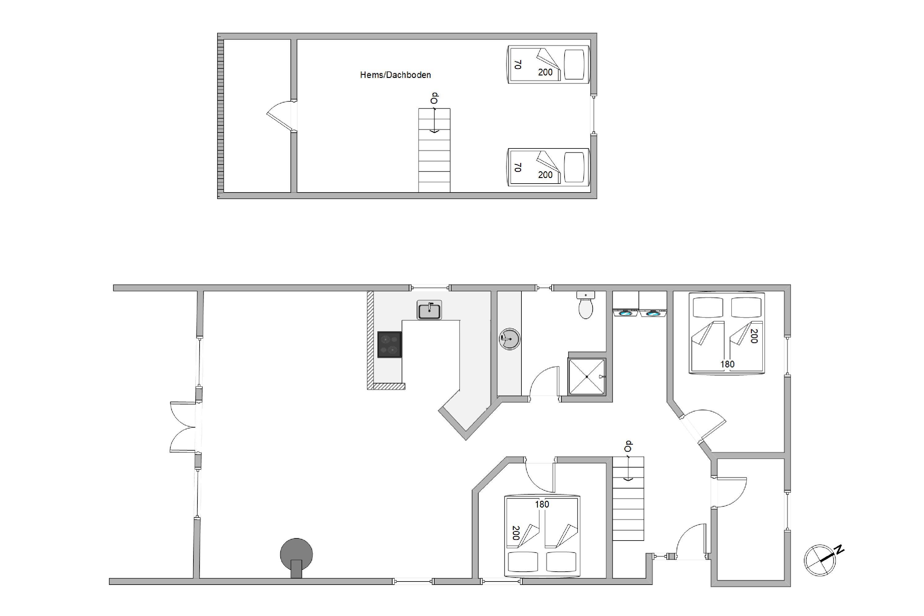
Sommerhuset på Kræ Degns Vej emmer af rigtig sommerhusferie. Det stråtækte sommerhus ligger flot i landskabet og har en hyggelig og personlig indretning, der danner rammerne om en hyggelig sommerferie i Danmark. Det 102 m2 store sommerhus er indrettet med plads til 4 personer - de 4 sovepladser fordeler sig på 2 soveværelser. Derudover er der også en hems.

På de kolde dage kan I tænde op i brændeovnen, som skaber en hyggelig atmosfære. Udover brændeovnen er der også en varmepumpe, så I altid har en dejlig temperatur indenfor.

I sommerhuset finder I også en opvaskemaskine, vaskemaskine og tørretumbler, så I ikke skal bruge lang tid på de praktiske gøremål. Ved sommerhuset er der en ladestander (type 2) til opladning af elbil.

Delvist overdækket terrasse

Til sommerhuset hører desuden en dejlig, delvist overdækket terrasse, som inviterer til afslapning og hygge i solen. Til terrassen hører naturligvis gode havemøbler, liggestole og grill - perfekt til hyggelige grillaftener med gode venner og familie. Den overdækkede terrasse sørger samtidig for at I kan holde på varmen, så I kan sidde ude længere på lune sommeraftener og nyde den dejlige vesterhavsluft.

Oplev den autentiske havneby Hvide Sande

Kun nogle få kilometer fra huset ligger den lille havneby Hvide Sande. Byen er kendt for sit hyggelige og autentiske havnemiljø. I sommermåneder kan i overvære fiskeauktioner og endda selv byde på friske fisk. Byen byder desuden på spændende og sjove aktiviteter for hele familien hele året rundt.

Faciliteter

  • Opholdsrum

    • CD afspiller
    • DVD-afspiller
      1
    • Gulv: Trælaminat
    • Radio
    • Brændeovn
    • Fladskærms-TV
      1
  • Soverum

    • Ekstra sovepl. Hems
      1
    • Gulv: Trælaminat
    • Dobbeltsenge
      2
    • Sovepladser
      6
    • Soverum
      2
    • Antal personer (loft, anneks osv.)
      2
    • 1. soverum/sengestørrelser
      180X200
    • 2. soverum/sengestørrelser
      180X200
    • 3. soverum/sengestørrelser
      2x70x200
  • Køkken

    • Komfur: El m. ovn
    • Køleskab
    • Opvaskemaskine
    • Mikroovn
    • Separat fryser /L
      54
  • Baderum

    • Gulvvarme bad
    • Antal badeværelser
      1
  • Objektinfo - Inde

    • Areal: Hus m²
      102
    • Byggeår
      1975
    • Barneseng
      1
    • Barnestol
      1
    • Husdyr tilladt
    • Husdyr antal, max
      1
    • Ikke ryger hus
    • Personantal
      4
    • Renoveret
      2021
    • Danske TV-kanaler (Betalingskanaler)
    • Tyske tv-programmer
    • Tørretumbler
    • Varme: Elvarme
    • Varme: Varmepumpe luft til luft
    • Vaskemaskine
    • Satellit (tyske kanaler samt et par danske)
    • Gratis fiber Internet
    • Jubilæumsmønt er udleveret
  • Objektinfo - ude

    • Afstand i meter: Hav
      400 m
    • Afstand i meter: Indkøb
      6 km
    • Grundens areal i m2
      2000
    • Grill
    • Havemøbler
    • Solvogne
    • Parasol
    • Parkering: Garage
    • Terrasse: Afskærmet
    • Terrasse: Overdækket
    • Redskabsrum
    • Naturgrund
    • Affald hentes:
      Fredag
    • Affald: Helårstømning
    • Skraldespand - Liter
      240
    • Ladestik til el-bil
  • Koncepter

    • Skiftedag: Fredag
  • Miniferie

    • Ja, tak - tillad miniferie

Priser og kalender

Kalender

Ankomst
Forrige Næste
  • oktober 2026
    mationtofr
    401234
    41567891011
    4212131415161718
    4319202122232425
    44262728293031
    45
  • november 2026
    mationtofr
    441
    452345678
    469101112131415
    4716171819202122
    4823242526272829
    4930
   Se om emnet er ledigt på den valgte dato
Ledig
Optaget
   Ankomst mulig
Varighed

Pris

Periode
Ankomst
Afrejse
Varighed
1 uge
Personer
Op til 4 personer

Bemærk

Ankomst er ikke valgt.
Aftale- og lejebetingelser