Alternative emner
Sommerhus med pool, spa og sauna nær strand
Sommerhus - 8 personer - Sandvejen - Kjul - 9850 - Hirtshals
8 personer
Emne nr.: 121-10-4033
Velbeliggende sommerhus i Kjul med indendørs pool, spa, sauna og tæt på strand og natur.
- Soverum 4
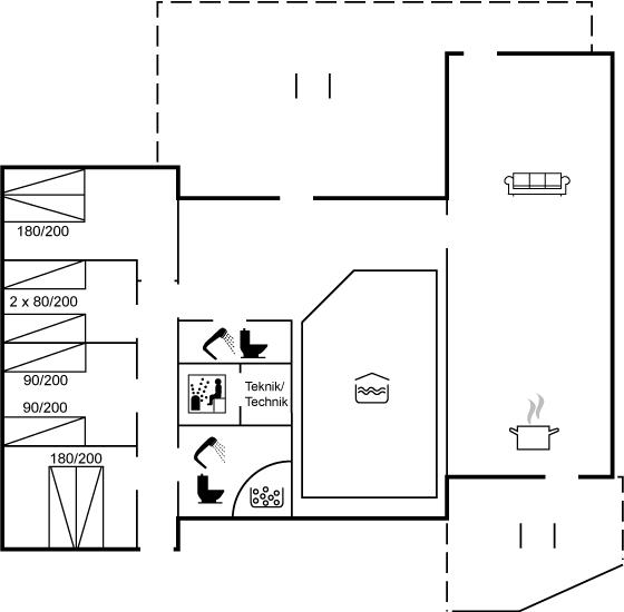
- Badeværelser 2
- Boligareal 132 m²
- Grundareal 1.263 m²
- Husdyr 1
- Tilbyder miniferie Ja
- Afstand vand 240 m
- Afstand indkøb 5 km
- Swimmingpool inde Ja
- Spa Ja
- Sauna Ja
- Internet Ja
- Parabol/kabel TV Ja
- Brændeovn Ja
- Vaskemaskine Ja
- Opvaskemaskine Ja
- Ikkeryger Ja
- Ladestander til elbil Ja
Beskrivelse
Velbeliggende sommerhus i Kjul mellem Hirtshals og Tversted tæt på dejlig badestrand og flot natur med mulighed for gåture med hunden. Færgeforbindelser fra Hirtshals til Norge og til Færøerne. Huset er velegnet til både familier og par.
Indretning
Sommerhuset egner sig til 8 personer samt 1 barn op til 3 år. Ferieboligen er på 132 m² og er bygget i 1989. I 2018 gennemgik ferieboligen en renovering. Det er tilladt at medbringe 1 husdyr. Ferieboligen har vaskemaskine. Frysekapacitet på 30 liter. Der er desuden brændeovn. Til de små er der 1 stk. barnestol.
Udenfor
Ferieboligen er beliggende på en 1263 m² stor naturgrund. Der er 240 m til havet. Nærmeste forretning er beliggende i en afstand af 5000 m. Der er en golfbane i en afstand af 1500 m. Til ferieboligen hører åbent terrasseareal. Der er redskabsrum. Gynge. Sandkasse. Der ligger en legeplads i en afstand af 200 m. Grill til rådighed. Der er installeret stik til opladning af elbil. CEE stik. Med 22 kW ladeeffekt. Parkering ved ferieboligen.
Swimmingpool
I den indendørs swimmingpool er der mulighed for leg og hyggeligt samvær. Swimmingpoolen måler op til 3,5 m i bredden, 7,5 m i længden og den er op til 1,5 m dyb. Vandet er mellem 24 og 28° C varmt.
Soveforhold
Der er i alt 4 soveværelser. Sovepladserne fordeler sig på: 4 sovepladser i dobbeltsenge. 4 sovepladser i enkeltsenge. Derudover er der 1 stk. barneseng.
Køkken
Køkkenet er udstyret med 1 køleskab. Der er 4 keramiske kogeplader, varmluftovn, mikrobølgeovn samt opvaskemaskine.
Toilet og bad
Der er 2 badeværelser med bruser og 2 toiletter I saunaen er der mulighed for afslapning.
Spa
Der er mulighed for afslapning i indendørs spa til 2 personer. Der er mulighed for afslapning i udendørs standvandsspa til 6 personer.
Multimedier
1 Smart-TV.1 Chromecast. TV via internet. Radio.1 Bluetooth-højtaler. Surroundanlæg. Der er mindst 4 danske kanaler. Mindst 4 tyske kanaler. Der er trådløst internet til rådighed.
Værd at vide
Ingen udlejning til ungdomsgrupper, hvor alle er 15-25 år. Rygning ikke tilladt. Ved overtrædelse af forbuddet opkræves et gebyr på minimum DKK 3.000,-.
Indretning
Sommerhuset egner sig til 8 personer samt 1 barn op til 3 år. Ferieboligen er på 132 m² og er bygget i 1989. I 2018 gennemgik ferieboligen en renovering. Det er tilladt at medbringe 1 husdyr. Ferieboligen har vaskemaskine. Frysekapacitet på 30 liter. Der er desuden brændeovn. Til de små er der 1 stk. barnestol.
Udenfor
Ferieboligen er beliggende på en 1263 m² stor naturgrund. Der er 240 m til havet. Nærmeste forretning er beliggende i en afstand af 5000 m. Der er en golfbane i en afstand af 1500 m. Til ferieboligen hører åbent terrasseareal. Der er redskabsrum. Gynge. Sandkasse. Der ligger en legeplads i en afstand af 200 m. Grill til rådighed. Der er installeret stik til opladning af elbil. CEE stik. Med 22 kW ladeeffekt. Parkering ved ferieboligen.
Swimmingpool
I den indendørs swimmingpool er der mulighed for leg og hyggeligt samvær. Swimmingpoolen måler op til 3,5 m i bredden, 7,5 m i længden og den er op til 1,5 m dyb. Vandet er mellem 24 og 28° C varmt.
Soveforhold
Der er i alt 4 soveværelser. Sovepladserne fordeler sig på: 4 sovepladser i dobbeltsenge. 4 sovepladser i enkeltsenge. Derudover er der 1 stk. barneseng.
Køkken
Køkkenet er udstyret med 1 køleskab. Der er 4 keramiske kogeplader, varmluftovn, mikrobølgeovn samt opvaskemaskine.
Toilet og bad
Der er 2 badeværelser med bruser og 2 toiletter I saunaen er der mulighed for afslapning.
Spa
Der er mulighed for afslapning i indendørs spa til 2 personer. Der er mulighed for afslapning i udendørs standvandsspa til 6 personer.
Multimedier
1 Smart-TV.1 Chromecast. TV via internet. Radio.1 Bluetooth-højtaler. Surroundanlæg. Der er mindst 4 danske kanaler. Mindst 4 tyske kanaler. Der er trådløst internet til rådighed.
Værd at vide
Ingen udlejning til ungdomsgrupper, hvor alle er 15-25 år. Rygning ikke tilladt. Ved overtrædelse af forbuddet opkræves et gebyr på minimum DKK 3.000,-.
Vores gæsteanmeldelser Eksterne anmeldelser
Faciliteter
-
Adgang til ferieboligen
-
Nøgleboks med kode
-
-
Bemærk
-
Ingen håndværkere efter anmodning
-
Ingen ungdomsgrupper efter anmodning
-
Rygning er forbudt
-
-
Indretning
-
Antal børn (0-3 år)1
-
Antal voksne inkl. 4-11 år8
-
Bebygget areal132 m²
-
Brændeovn1
-
Byggeår1989
-
Feriebolig
-
Frysekapacitet (antal liter)30
-
Husdyr1
-
Højstol1
-
Renovering2018
-
Vaskemaskine1
-
-
Køkken
-
Antal keramiske kogeplader4
-
Køleskab1
-
Mikrobølgeovn1
-
Opvaskemaskine1
-
Varmluftovn1
-
-
Multimedier
-
> 3 danske kanaler
-
> 3 tyske kanaler
-
Antal tv'er1
-
Bluetooth -højttaler1
-
Chromecast1
-
Radio
-
Smart-Tv1
-
Surround system
-
Trådløst internet
-
TV igennem
-
-
Soveforhold
-
Antal soveværelser4
-
Barneseng1
-
Dobbeltseng (antal sovepladser)4
-
Enkeltseng (antal sovepladser)4
-
-
Spa
-
Indendørs spabad (antal personer)2
-
Udendørs forfyldt spabad (antal personer)6
-
-
Swimmingpool
-
Indendørs swimmingpool
-
Svømmebassinets bredde3,5
-
Svømmebassinets dybde1,5
-
Svømmebassinets længde7,5
-
-
Toilet og bad
-
Antal badeværelser2
-
Antal toiletter2
-
Bruser
-
Sauna
-
-
Udenfor
-
Butik5 km
-
CEE fatning
-
Elbil hjemmeoplader
-
Golfbane1,5 km
-
Grill1
-
gynge
-
Hav240 m
-
KW udgangseffekt22
-
Legeplads200
-
Natursted
-
Parkeringsplads ved huset
-
Redskabsskur
-
Sandkasse
-
Størrelse af grunden1263 m²
-
Terrasse
-
Miniferie
Der er begrænset mulighed for miniferie hele året, typisk uden for højsæsonen.
Priser og kalender
Kalender
Varighed
Pris
Periode
- Ankomst
- Afrejse
- Varighed
- 1 uge
Personer
Op til 8 personer
Bemærk
Ankomst er ikke valgt.