Moderne og familievenligt sommerhus med sauna

Sommerhus - 8 personer - Blomstervangen - Jegum - 6840 - Oksbøl

8 personer
Emne nr.: 328-686479
Moderne sommerhus fra 2023 med sauna, gulvvarme og stor terrasse tæt på indkøb og natur.
  • Soverum 4
  • Badeværelser 2
  • Boligareal 145 m²
  • Grundareal 1.745 m²
  • Husdyr 1
  • Tilbyder miniferie Nej
  • Afstand vand 10 km
  • Afstand indkøb 500 m
  • Spa Ja
  • Sauna Ja
  • Internet Ja
  • Parabol/kabel TV Ja
  • Vaskemaskine Ja
  • Tørretumbler Ja
  • Opvaskemaskine Ja
  • Ikkeryger Ja
  • Ladestander til elbil Ja
  • Energivenligt Ja

Beskrivelse

Ønsker I et smukt og familievenligt sommerhus fra 2023, er dette sted et rigtig godt bud. Det rummelige sommerhus har plads til 8 personer, samt jeres hund er også velkommen. Beliggenheden ud til åbne arealer og med kun 500 m til indkøbsmuligheder betyder, at I her kan slappe af indendørs i det skønne klima med gulvvarme i alle opholdsrum, soverum og badeværelser – eller udendørs på terrassen med terrassevarmer. Ideelt til børnefamilien eller flere hold venner.

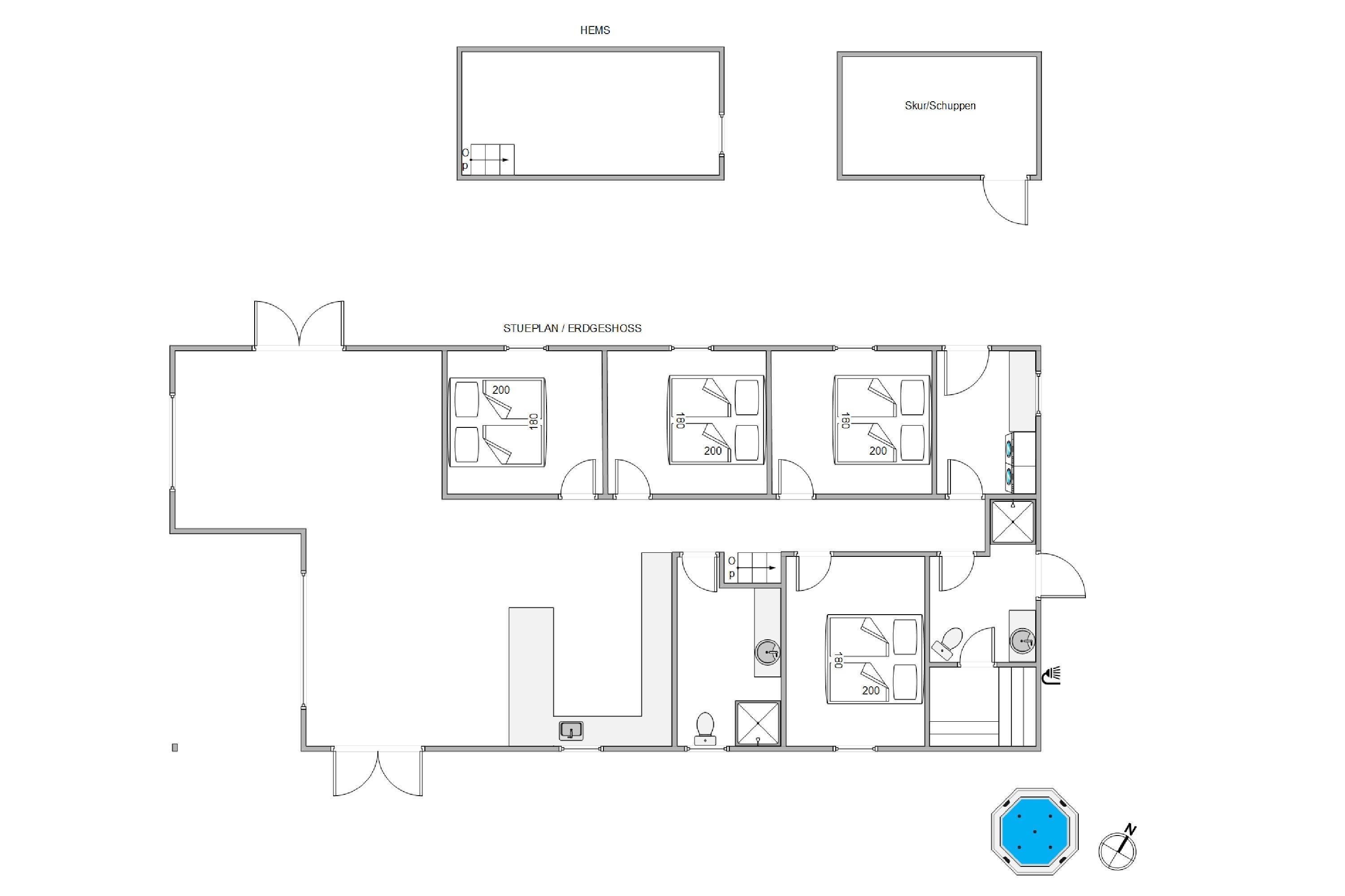
Rummeligt feriehus med plads til hele familien

I det charmerende sommerhus på Blomstervangen 107 er der lagt vægt på kvalitet og samvær. I den rummelige stue kan I hygge jer i sofaen, se TV sammen eller læse en god bog. På hemsen kan I nemt tilkoble jeres spillemaskiner, hvilket giver børnene en sjov mulighed for underholdning, mens de voksne kan nyde en stille stund med et glas vin. Køkkenet indeholder alt, hvad I behøver til at forkæle hinanden med lækre måltider – prøv for eksempel en fiske- eller vildtaften. Har I små børn med, er der barneseng, højstol, gynge og sandkasse til rådighed.

I de 4 soveværelser er der 8 komfortable sovepladser, så I kan hvile godt ud i den friske luft. Alle opholdsrum, soveværelser og også de 2 badeværelser har gulvvarme, så I er sikret en behagelig rumtemperatur. I sommerhuset er alle moderne fornødenheder, som vaskemaskine, tørretumbler, energibesparende varmepumpe samt ladestik til el-bil til rådighed for jer. Der er slutrengøring med i prisen, så den behøver I ikke at bekymre jer om.

Udendørs ferieliv i det fri

På terrassen kan I opholde jer i al slags vejr, da der både er en åben-, en afskærmet- og en overdækket del. Her kan I tage solbad på de komfortable liggestole, eller I kan opholde jer i havemøblerne og lade børnene lege på gyngerne eller i sandkassen imens. Bliver solen for stærk, kan I trække ind under overdækningen med et køligt glas saft.

Tænd op i grillen, og slut dagen af med et lækkert grillmåltid for hele familien. Tænd for den behagelige varme fra terrassevarmeren, hvis aftenen bliver kølig. En gåtur eller et vikingespil på plænen bagefter giver endnu en mundfuld frisk luft før sengetid. Trænger I til noget muskelafslappende, kan en tur i saunaen anbefales som afslutning på dagen.

Blomstervangen - skøn natur og familievenlige omgivelser

Jegum er præget af fred, ro og tæt på naturen. Her er mulighed for at spotte fugle og vildt, som har gode betingelser i Jegum-området. Med sommerhus ud til åbne arealer, kan I være heldige at se vildt fra terrassen eller stuevinduerne. Der er fine naturstier i området, ideelt hvis I har hund med. Nyd de dejlige gåture og lyt til fuglesang og dyrene på markerne.

Faciliteter

  • Opholdsrum

    • DVD-afspiller
      1
    • Gulv: Trælaminat
    • Gulvvarme
    • Radio
    • Fladskærms-TV
      2
    • Dock/Bluetooth enhed
    • Ekstra varmekilder
  • Soverum

    • Gulv: Trælaminat
    • Gulvvarme
    • Dobbeltsenge
      4
    • Sovepladser
      8
    • Soverum
      4
    • 1. soverum/sengestørrelser
      180X200
    • 2. soverum/sengestørrelser
      180X200
    • 3. soverum/sengestørrelser
      2x90x200
    • 4. soverum/sengestørrelser
      2x90x200
  • Køkken

    • Komfur: Induktion m. ovn
    • Køleskab
    • Opvaskemaskine
    • Mikroovn
    • Separat fryser /L
      80
  • Baderum

    • Sauna
    • Gulvvarme bad
    • Antal badeværelser
      2
  • Objektinfo - Inde

    • Areal: Hus m²
      145
    • Byggeår
      2023
    • Barneseng
      1
    • Barnestol
      1
    • Husdyr tilladt
    • Husdyr antal, max
      1
    • Ikke ryger hus
    • Gratis Internet
    • Personantal
      8
    • Tyske tv-programmer
    • Tørretumbler
    • Vaskemaskine
    • Satellit (tyske kanaler samt et par danske)
    • Varmepumpe luft til vand
    • Chromecast
    • Jubilæumsmønt er udleveret
  • Objektinfo - ude

    • Afstand i meter: Hav
      10 km
    • Afstand i meter: Indkøb
      500 m
    • Grundens areal i m2
      1745
    • Gynge
    • Sandkasse
    • Grill
    • Havemøbler
    • Solvogne
    • Parasol
    • Terrasse: åben
    • Terrasse: Afskærmet
    • Terrasse: Overdækket
    • Redskabsrum
    • Naturgrund
    • Plænegrund
    • Affald hentes:
      Onsdag
    • Affald: Helårstømning
    • Skraldespand - Liter
      240
    • Udespa: antal pers.
      6
    • Ladestik til el-bil
    • Udebruser (April - 1. november)
  • Koncepter

    • Skiftedag: Lørdag
    • Vandaflæsning
    • Varme: 48 timer før ankomst
  • Miniferie

    • Ja, tak - tillad miniferie

Priser og kalender

Kalender

Ankomst
Forrige Næste
  • oktober 2026
    mationtofr
    401234
    41567891011
    4212131415161718
    4319202122232425
    44262728293031
    45
  • november 2026
    mationtofr
    441
    452345678
    469101112131415
    4716171819202122
    4823242526272829
    4930
   Se om emnet er ledigt på den valgte dato
Ledig
Optaget
   Ankomst mulig
Varighed

Pris

Periode
Ankomst
Afrejse
Varighed
1 uge
Personer
Op til 8 personer

Bemærk

Ankomst er ikke valgt.
Aftale- og lejebetingelser